




Vente Local d'activité 864 m²
01090 Montmerle-sur-Saône
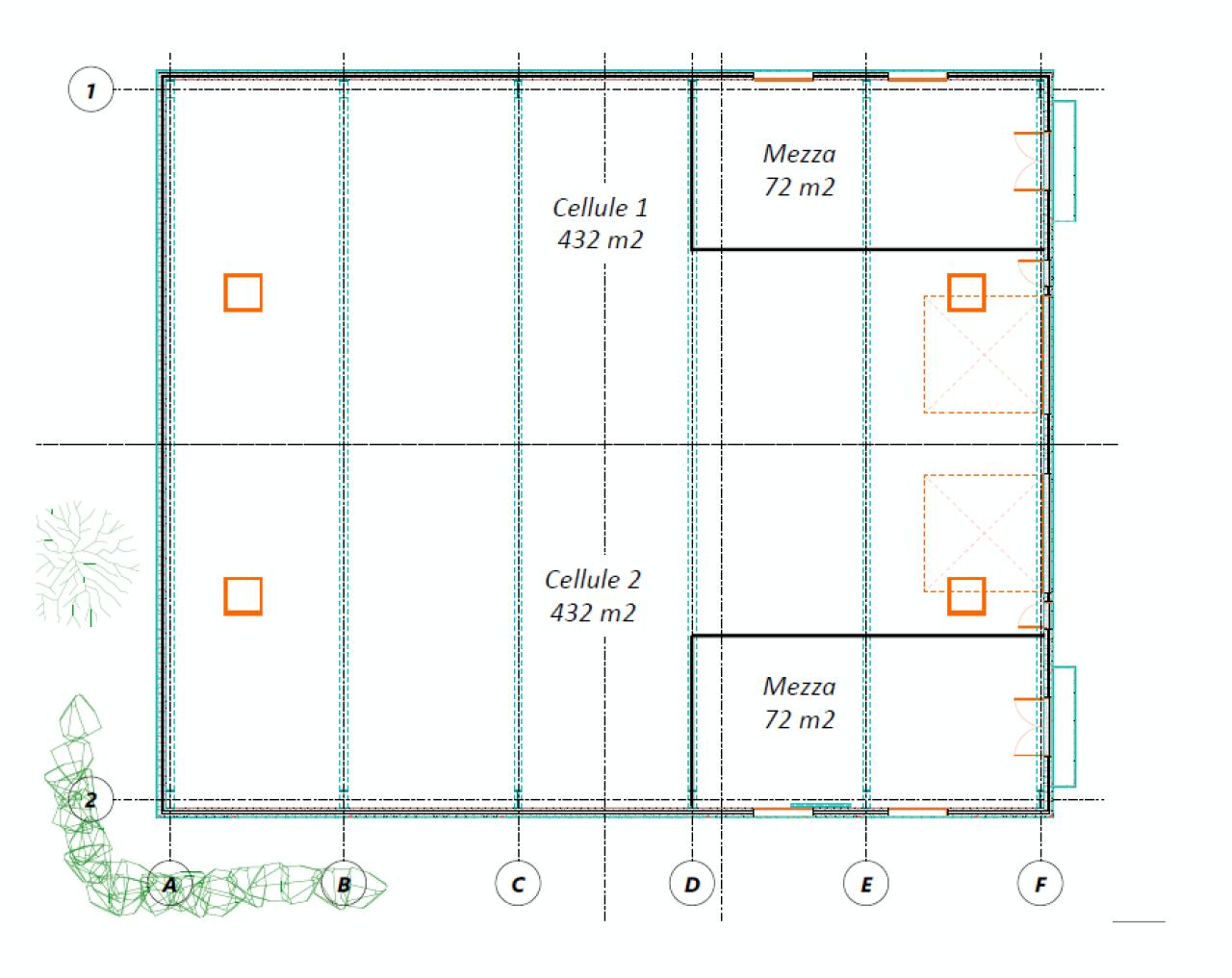
864 m²
Divisible dès 432 m²
1 045 440 €
HT/HD
Disponibilité : 10 mois après accord

Bory THONGDENG
Description
Montmerle-sur-Saône (01)
Nous vous proposons à la vente un bâtiment neuf de 728 m². Situé à proximité, immédiate de l'autoroute A6, ce bien est idéalement adapté à une activité artisanale ou industrielle. Disponible courant 2023.
Située à proximité immédiate du Beaujolais, entre les agglomérations dynamiques de Villefranche-sur-Saône et Mâcon, Montmerle-sur-Saône bénéficie d’un réel essor économique. La commune accueille notamment des parcs d'entreprises extrêmement attractives
Services & prestations
Hauteurs
-
Hauteur libre : 6,00 mètre(s)
Equipements
-
Porte d'accès plain-pied : 2 portes sectionnelles électriques
Structure du bâtiment
-
Charpente : Métallique
-
Murs : Bardage double peau
Informations complémentaires
-
Bureaux, Locaux sociaux, Mezzanine en option, Locaux bruts / fluides en attente
-
Portes en métal, Pré-équipement bornes recharge électrique
-
Porte vitrées pour l'accès piéton, Pré-conception panneaux photovoltaïques










