




Vente Local d'activité 1 668 m²
91160 Ballainvilliers
1 668 m²
Divisible dès 195 m²
à partir de 505 050 €
HT/HD
Disponibilité : 6 mois après accord

Alexis DE SOUSA
Description
A VENDRE (91)
BALLAINVILLIERS
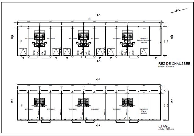
BNP PARIBAS REAL ESTATE vous propose plusieurs cellules d'activité et bureaux, divisibles à partir de 255m² , à vendre dans un parc d'activité neuf
BNP PARIBAS REAL ESTATE vous propose, à la vente, plusieurs cellules d'activité et bureaux d’une surface totale de 1 673 m², et divisible à partir de 255 m². Le bâtiment neuf est situé à Ballainvilliers (91).
Disponibilité : Janvier 2025
Caractéristiques techniques
- Charges au sol étage : 350 kg / m²
- Hauteurs sous poutres : jusqu'à 4 mètres
- Charges au sol RDC : 3 tonnes / m²
- Porte sectionnelle
- Sécurité : site clôturé
- Accessibilité types véhicules : Tous porteurs
- Larges enseignes visibles depuis la route
- Parking : 27 Places
Accessibilité
- Accès routiers : N20 (accès direct)
Pour toute information complémentaire, contactez-nous.
Services & prestations
Hauteurs
-
Hauteur sous poutre : 4,00 mètre(s)
Accès véhicules
-
Accessibilité type véhicules : Tous porteurs
Equipements
-
Charge au sol Etage : 350,00 kg/m²
-
Charge au sol Rdc : 3,00 tonne(s)/m²
-
Sols du bâtiment : Béton
Structure du bâtiment
-
Charpente : Métallique
-
Couverture : Autres végétalisation de 30% de la toiture
Prestations de service
-
Parking : 27 Places
Informations complémentaires
-
Espaces végétalisés, Porte sectionnelle
-
Clôture-portail










