




10 Rue des Artisans
68750 Bergheim
3 000 m²
Divisible dès 100 m²
à partir de 135 000 €
HT/HD
Disponibilité : Immédiate

Josquin PETASSOU
Description
BERGHEIM - HAUT-RHIN (68)
LOCAUX D'ACTIVITE NEUFS A VENDRE - REF OVACT2426360
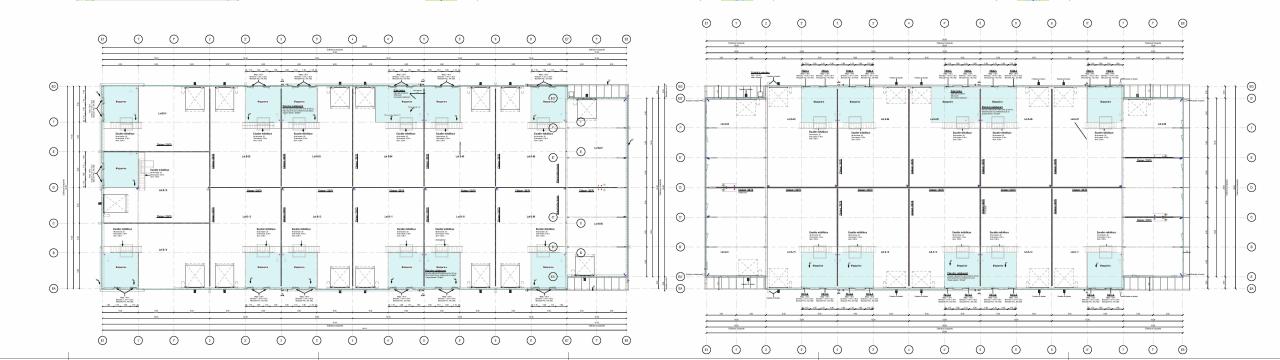
Un programme d'activité neuf d'environ 3000 m² propose 15 cellules : 10 cellules de 240 m², 2 cellules de 150 m², 3 cellules de 100 m².
Chaque cellule est livrée brute, non aménagée, fluides en attente et est équipée d'une porte sectionnelle.
Il y a une Mezzanine dans les cellule de 240 m².
Le site bénéficie d'un large parking de 50 places extérieures.
Idéalement situé sur la route des vins d’Alsace, à proximité de l’A35 (45 min de Strasbourg et 25 min de Colmar), Le Parc du Muehlbach abritera sur 1,48 hectares, 2 bâtiments multiactivité comprenant chacun 15 lots personnalisables à la vente (de 100 m2 à 240 m2 ).
Ces bâtiments dédiés aux TPE et PME accueilleront des activités BtoB, essentiellement des halls d’activité et de stockage. Tous les bâtiments seront équipés de toitures photovoltaïques. La plupart des lots bénéficieront d’une hauteur de stockage de 6m ainsi que de places de stationnements.
Le constructeur alsacien a choisi de laisser une large place à de l’espace vert offrant un environnement de travail agréable et serein.
Le constructeur annonce que cet espace, situé au coeur d’un important bassin économique et à proximité immédiate des grands axes routiers sera générateur de création d’emplois.
Services & prestations
Equipements
-
Charge au sol Etage : 350,00 kg/m² mezzanine
-
Charge au sol Rdc : 2000,00 tonne(s)/m²
-
Porte d'accès plain-pied : Sectionnelle de 3 x 3,50 mètres
Type / Etat du bâtiment
-
Etat de l'immeuble : Neuf
Structure du bâtiment
-
Charpente : Métallique
-
Murs : Bardage double peau





