




Vente Local d'activité 900 m²
92210 Saint-Cloud
900 m²
3 100 000 €
HT/HD
Disponibilité : Immédiate

Francois FOURNIER
Description
Saint-Cloud
Bâtiment Indépendant VENTE
(LOA POSSIBLE NOUS CONSULTER)
BNP PARIBAS Real Estate vous propose à la vente une surface d'activité avec bureaux d'accompagnement. Situé à Saint-Cloud, proche des axes routiers et transports en commun.
Nous proposons à la vente un bâtiment indépendant en excellent état à St Cloud d'une surface totale d'environ 900m² décomposé comme s'en suit :
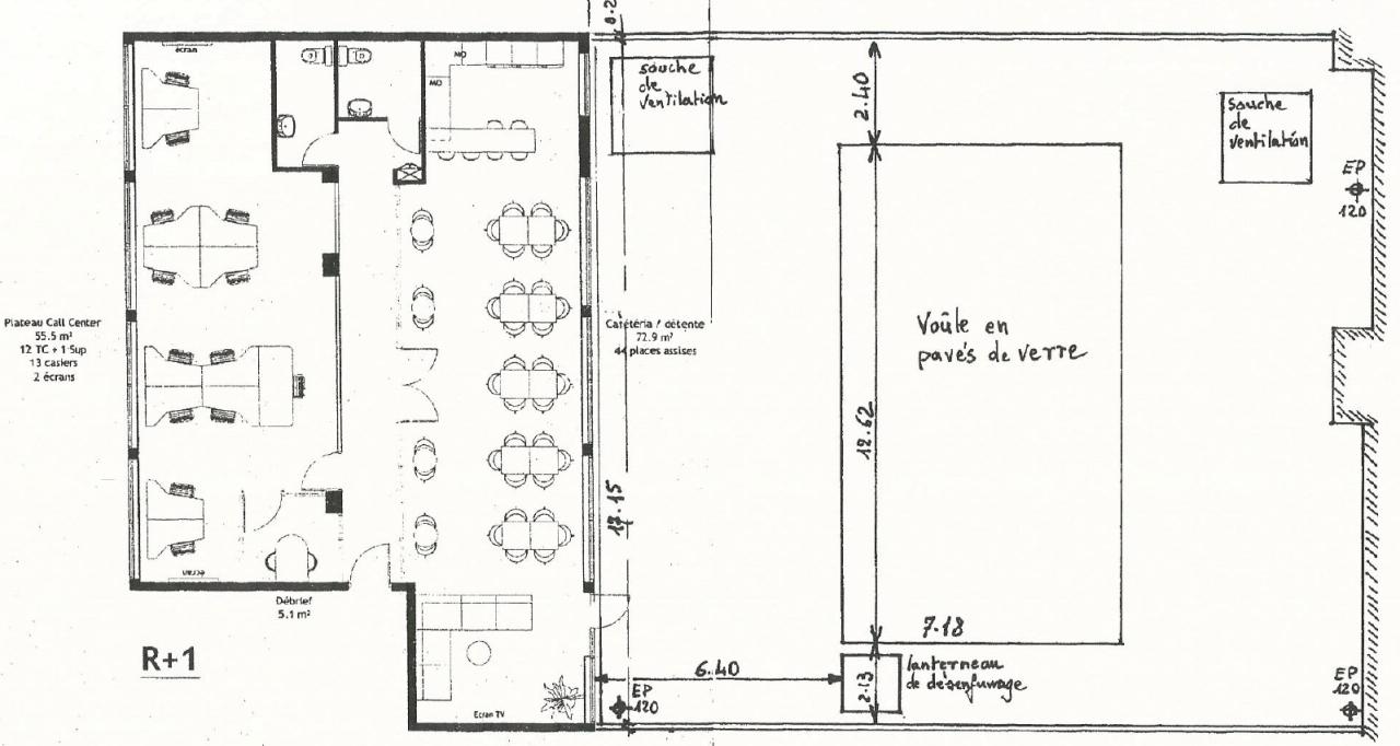
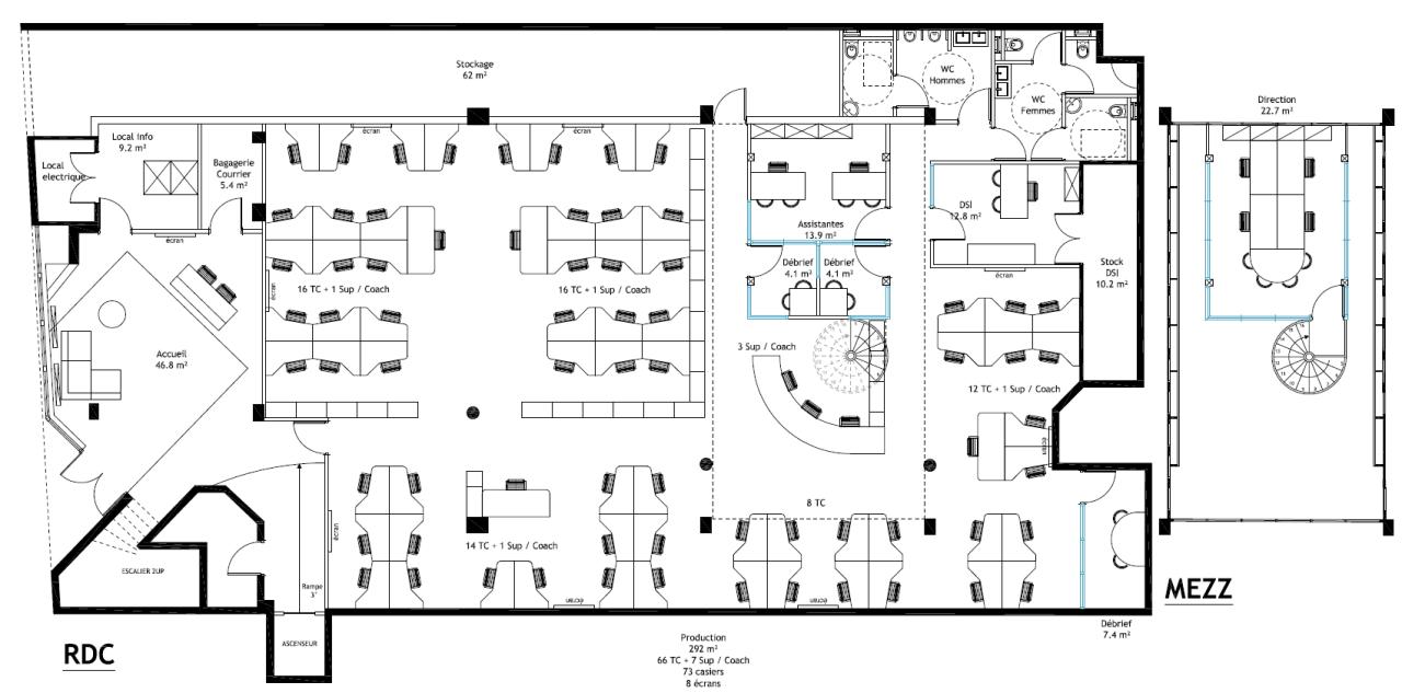
- 552 m² de surface entrepôt/activité légère en rez de chaussée
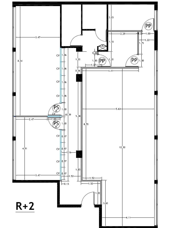
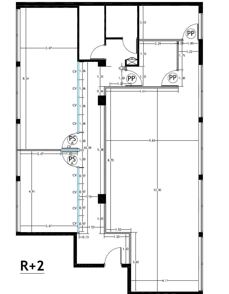
- 348 m² de bureaux sur deux étages pour bureaux, salles de réunion
- accessibilité porteurs possible pour une surface activité légère ou aire de stockage bien proportionnée pour nombreuses activités.
Sanitaires en rez-de-chaussée et en étage avec vestiaires.
Ces locaux en état irréprochable, de construction traditionnelle préservée, répondront parfaitement à vos différents besoins et bénéficient d'une excellente desserte aux portes de Paris
Lieu de villégiature privilégié et dans un cadre arboré (Domaine National), l'environnement économique est qualitatif avec la présence de grands acteurs comme Lafarge et Dassault qui est le 1er employeur de la ville .
Accès direct A13 et D985 , proximité Parc de Longchamp pour agrément verdoyant et paysager complémentaire, le tout dans un environnement tertiaire dynamique
Vous y retrouverez de nombreux avantages comme :
- Source chauffage : gaz
- Arrivée Gaz pour activité
- Portes double accès piéton de plain-pied
- Bâtiment indépendant
- Espace extérieur aménageable pour accès porteurs
- Eclairage naturel : skydomes briques de verre
- Bâtiment fibré et sous alarme
Pour toute information complémentaire, n'hésitez pas à prendre contact avec notre consultant BNP PARIBAS REAL ESTATE
François FOURNIER 06 82 65 23 86
Services & prestations
Hauteurs
-
Hauteur libre : 4,35 mètre(s)
Equipements
-
Distribution chauffage : Central et convecteurs
-
Eclairage naturel : Latéral double-vitrage neufs, anti-effraction
Structure du bâtiment
-
Charpente : Béton
Extérieurs
-
Terrasses - jardins : Terrasse de 150 m²
Informations complémentaires
-
Grande souplesse d’utilisation : stockage, vente, ou bureaux paysagés
-
Possibilité d’aménagement d’un accès livraison










