




Vente Local d'activité 1 080 m²
59810 Lesquin
1 080 m²
Divisible dès 531 m²
à partir de 1 315 750 €
HT/HD
Disponibilité : 01/04/2026

Axel PLOUY
Description
FRETIN / LESQUIN / CRT
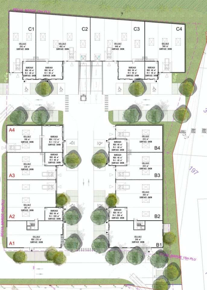
BNP PARIBAS REAL ESTATE Lille vous propose à la vente plusieurs cellules d'activités / stockage à FRETIN à proximité immédiate du CRT de Lesquin .
Reste 2 lots 531 et 549 m².
Le projet, implanté sur une ancienne fiche industrielle, d'une surface de 13 151 m² offre une belle opportunité économique de par sa situation géographique grâce à sa proximité au dynamisme important local et métropolitain. :
- à proximité immédiate du CRT de Lesquin et des accès routiers et autoroutiers (A1, A23, A22, voie rapide urbaine, ...)
- Gare TER de Fretin à 10 min à pied, permettant de rejoindre le centre ville de Lille en moins de 15 min
- Une ligne de bus reliant Fretin à la station de métro "4 Cantons - Stade".
- L'aéroport Lille-Lesquin à 7 min en voiture.
Le projet s’organise autour de 3 bâtiments proposant au sud des commerces et des activités tertiaires formant une façade urbaine d’entrée de ville visible depuis la rue .
Le reste de la programmation (Activité / Bureaux) est située en second rang privilégiant la fonctionnalité d’accès par la voie principale créée.
- 91 places de stationnement dont 14 PMR pour l'ensemble du programme
Cellules commerce de 549 et 531 m² env.
Prix de vente cellule commerce A1 : 1 361 750 € HT/HD
Prix de vente cellule commerce B1 : 1 315 750 € HT/HD
- Cellules Brut de béton - Fluides en attente pour la partie commerce et plateau paysagé pour la partie bureau
- Certification BREEAM
Cellules disponibles à la vente et à la location.
Pour visiter ou connaître nos autres offres à proximité. Contactez votre consultant BNPPARIBAS REAL ESTATE.
À la recherche de locaux ou d’entrepôts à louer ou à vendre dans la métropole lilloise / Lille ? Découvrez nos offres de location et de vente dans les parcs d’activités et zones d’activité du Nord Pas de Calais. Que ce soit pour des cellules de stockage, hangar, industrie, du foncier ou des projets clé en main, nos surfaces sont disponibles pour répondre à vos besoins.
Services & prestations
Equipements
-
Eclairage intérieur : LED
-
Porte d'accès plain-pied
-
Sols du bâtiment : Béton
Structure du bâtiment
-
Charpente : Béton
Prestations de service
-
Parking
Aménagements
-
Locaux sociaux : Sanitaires
-
Mezzanine
Extérieurs
-
Aire de manoeuvre
Normes, Certifications et Labels
-
Certification : BREEAM
Informations complémentaires
-
Toitures végétalisées










