




Vente Local d'activité 1 315 m²
62220 Carvin
1 315 m²
1 417 500 €
HT/HD
Disponibilité : Immédiate

Albane AMOROS
Description
CARVIN
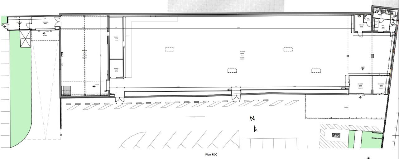
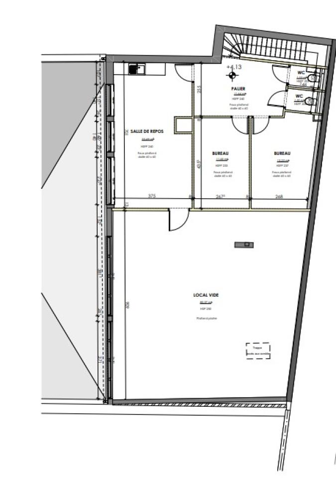
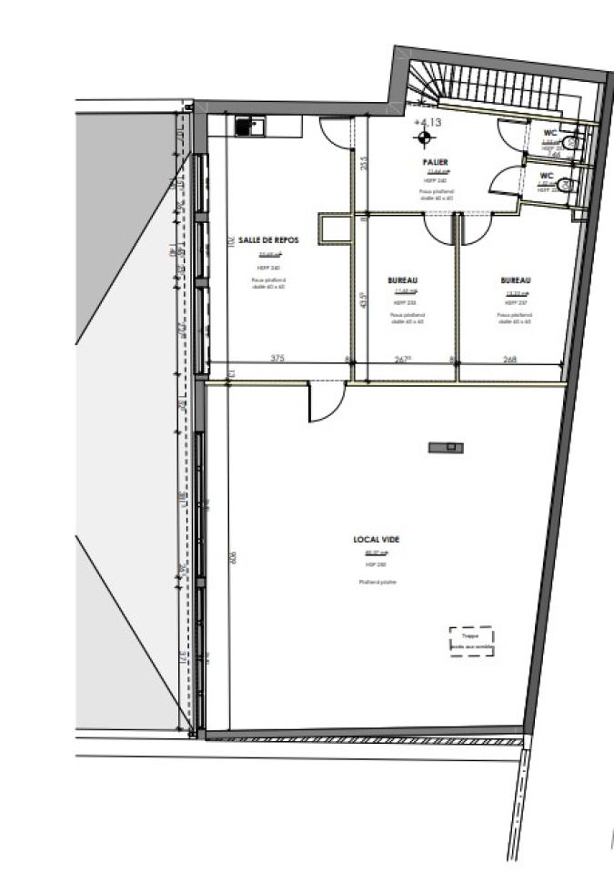
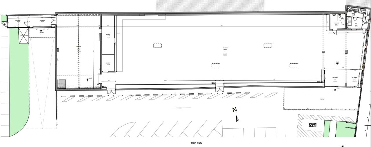
Découvrez cet entrepôt de 1 315 m² à la vente situé sur la commune de CARVIN, proposé par notre équipe BNP PARIBAS REAL ESTATE Lille.
Offre Immobilière Entrepôt de 1 315 m² à vendre - Carvin (62220)
Situé dans une zone stratégique de Carvin, à proximité immédiate des principaux axes routiers (A1 / A21), cet entrepôt de 1 315 m² offre un excellent potentiel pour une activité industrielle, artisanale ou de stockage.
Surface totale : 1 315 m²
Bâtiment fonctionnel, idéal pour le stockage ou la production
Accès poids lourds avec aire de manoeuvre
Portes sectionnelles et accès quai pour le chargement/déchargement
Situé à Carvin, l'entrepôt bénéficie :
d'un environnement dynamique, au coeur d'un tissu économique attractif
d'une bonne visibilité dans la rue
Convient à de nombreuses activités professionnelles
Opportunité rare sur le secteur
Pour plus d'informations, organiser une visite ou recevoir un dossier complet, contactez nous.
Services & prestations
Equipements
-
Porte d'accès plain-pied
-
Sols du bâtiment : Béton
Structure du bâtiment
-
Murs : Briques
Extérieurs
-
Aire de manoeuvre










