




Vente Local d'activité 3 318 m²
69150 Décines-Charpieu
3 318 m²
Prix sur demande
Disponibilité : 01/07/2027

Louis-Martin TANTARO
Description
D-SIDE - Décines-Charpieu
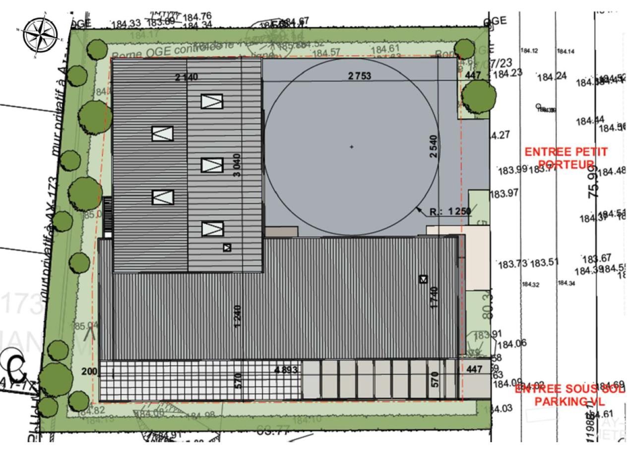
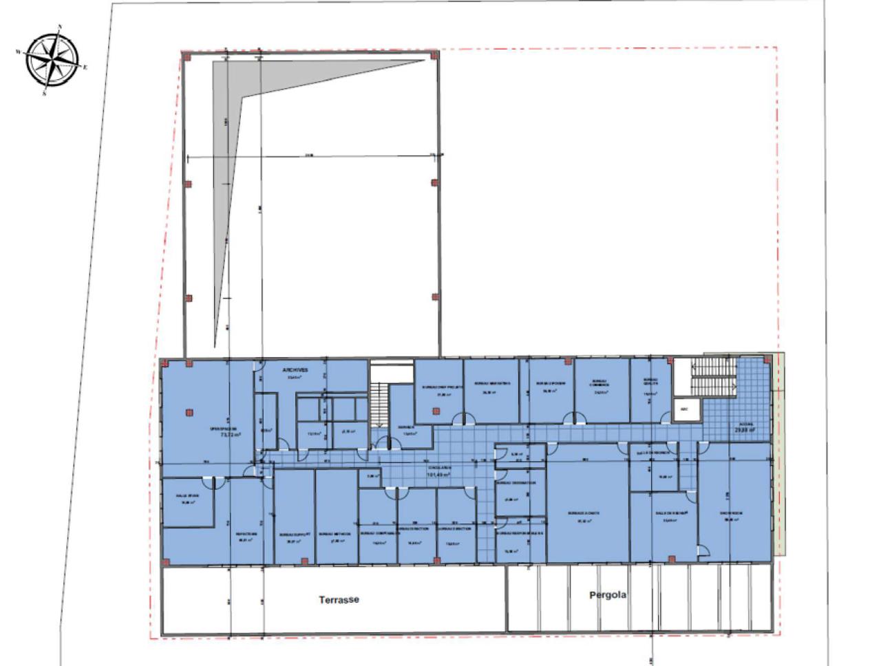
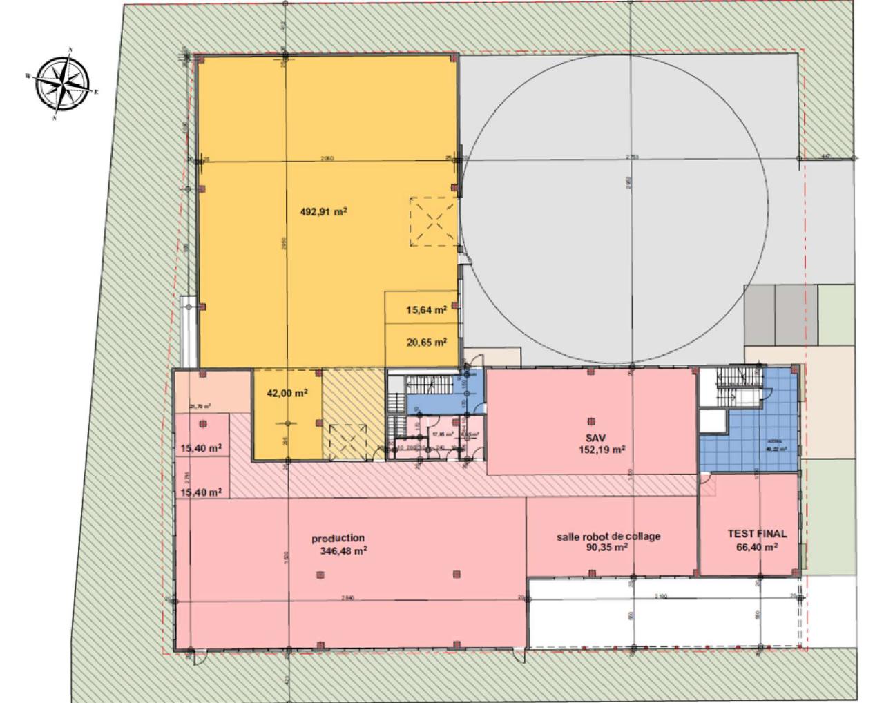
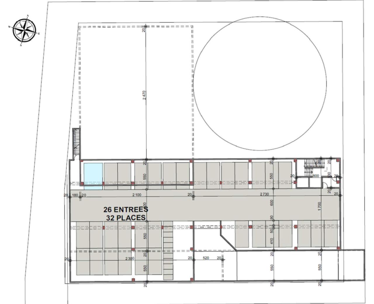
Locaux d'activité à vendre sur Décines (69). BNPPRE vous propose à la vente un bâtiment d'activité de 2 333 m² . Le bâtiment s’élève d’un niveau R-1 à un niveau R+1, avec une terrasse extérieure. Vous trouverez 925 m² de zone de production en RDC, 610 m² de stockage en RDC et 798 m² de bureaux en R+1. Il y aussi 985 m² en sous-sol offrant 32 places de parking. Le bâtiment dispose d' une porte sectionnelle 4x4,50 m. Disponible juillet 2027.
D-SIDE est un projet urbain ambitieux de 11 hectares, situé à l'entrée ouest de Décines-Charpieu.
Ce campus d'activités mixtes propose environ 50 000 m² de surfaces de plancher dédiés à des usages tertiaires, productifs et de services.
L'ensemble vise une certification BREEAM Very Good, gage de performance environnementale.
Le site est très bien desservi : à proximité de grands axes autoroutiers (boulevard urbain, périphérique, rocade) ce qui facilite les accès en voiture.
Transports en commun : a ligne de tram T3 passera à l'entrée du parc, offrant un accès direct à la gare TGV de Lyon Part-Dieu en 15 minutes.
Liaisons bus : plusieurs lignes desservent le parc, renforçant l'accessibilité pour les collaborateurs.
Services & prestations
Hauteurs
-
Hauteur libre : 7,50 mètre(s) 7,5 m libre sous gousset.
-
Hauteur sous-plafond : 2,70 mètre(s) 2,70 m libre sous faux-plafond
Equipements
-
Charge au sol Etage : 250,00 kg/m² + 100 kg/m² admissibles en open space
-
Charge au sol Rdc : 3,00 tonne(s)/m²
-
Eclairage intérieur : LED
-
Faux plafond
-
Sol bureaux : Dalles moquette ou PVC
-
Sols du bâtiment : Dallage quartzée
Prestations de service
-
Parking : 250 kg/m²
-
Sécurité : Contrôles d’accès aux parkings par badge et aux bâtiments par digicode et interphone / visiophonie
Aménagements
-
Locaux sociaux : Sanitaires
-
Sanitaires
Extérieurs
-
Terrasses - jardins : Terrasse extérieure 250 kg/m²
Normes, Certifications et Labels
-
Certification : BREEAM
Informations complémentaires
-
Chauffé, ventilé et rafraîchi via un système de pompes à chaleur, Une porte sectionnelle 4x4,50 m.
-
La zone Activité Stockage sera chauffé par aérothermes électrique a 12°










