




Vente Local d'activité 10 400 m²
69330 Meyzieu
10 400 m²
Divisible dès 2 300 m²
Prix sur demande
Disponibilité : Nous consulter

Florent VAUVERT
Description
ICARE - MEYZIEU
Programme de bureaux, de services et d’activités.
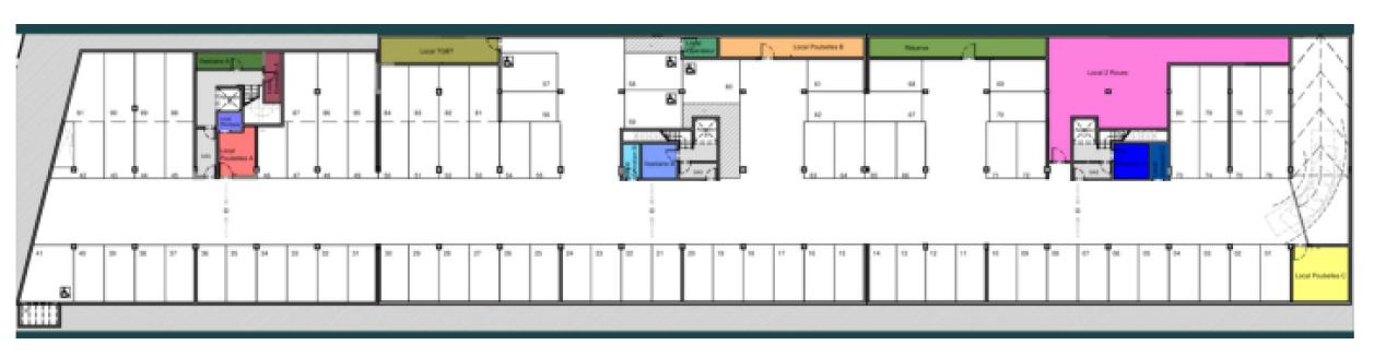
Le projet «I CARE» développera un total de 6 413 m2 de SDP divisibles à partir de 93 m2 situé à Meyzieu, à proximité du Groupama Stadium de Lyon. Ce programme favorable au bien-être et à la santé est composé de 3 immeubles tertiaires, destinés à l’activité productive, aux services, aux professions libérales, aux PME-PMI et aux sièges sociaux. L’ensemble comporte 96 places de stationnement dont 32 places en sous-sol.
Située à seulement 25 minutes du centre de Lyon, Meyzieu bénéficie d'un emplacement stratégique au sein de la Métropole de Lyon, avec un accès direct à la rocade Est (A46), à l'A432, et une excellente connexion aux transports en commun, notamment le tramway T3 et le Rhônexpress vers l'aéroport Lyon-Saint Exupéry.
Avec ses nombreuses zones d'activités modernes et son environnement économique dynamique, Meyzieu attire aussi bien des entreprises industrielles, logistiques, tertiaire que des PME innovantes.
Implanter votre activité à Meyzieu, c'est choisir n territoire connecté, structuré et en pleine croissance, parfaitement adapté aux enjeux économiques d'aujourd'hui.
Services & prestations
Hauteurs
-
Hauteur sous poutre : 4,00 mètre(s) Possibilité zone 200m² augmentée à 6m
-
Hauteur sous-plafond : 2,70 mètre(s)
Accès véhicules
-
Accessibilité type véhicules : Voirie de desserte pour véhicule léger et lourd 19T
Equipements
-
Ascenseurs : 1 Ascenseur par bâtiment
-
Charge au sol Rdc : 350kg/m², 500 kg/m² avec possibilité d’augmenter à 1000 kg/m² selon besoin utilisateur
-
Câblage informatique : Fibre et PC + 4 RJ45 (câblage courants faibles à charge
-
Eclairage Bureaux : Luminaires encastrés LED
-
Faux plafond : Textile acoustique de type Hunter Douglas dans les parties communes
-
Sol bureaux : Moquette/Carrelage
Type / Etat du bâtiment
-
Etat de l'immeuble : Neuf
-
Etat des locaux : Neuf
Prestations de service
-
Parking : 153 Places 70 places de stationnement aérien dont 33 places pré-équipées pour l’installation de borne IRVE et dont 1 place PMR équipée d’une borne IRVE – Puissance dédiée = 119 kva
-
Sécurité : Vidéophone
Aménagements
-
Accueil : 1 hall traversant par bâtiment
-
Accès Pers. Mobilité Réduite : Ascenseur 1 par bâtiment
-
Complexe Salle de réunion : 20% de la surface utile des lots dimensionnés pour des salles de réunions
-
Sanitaires : Espaces de douches et vestiaires
Extérieurs
-
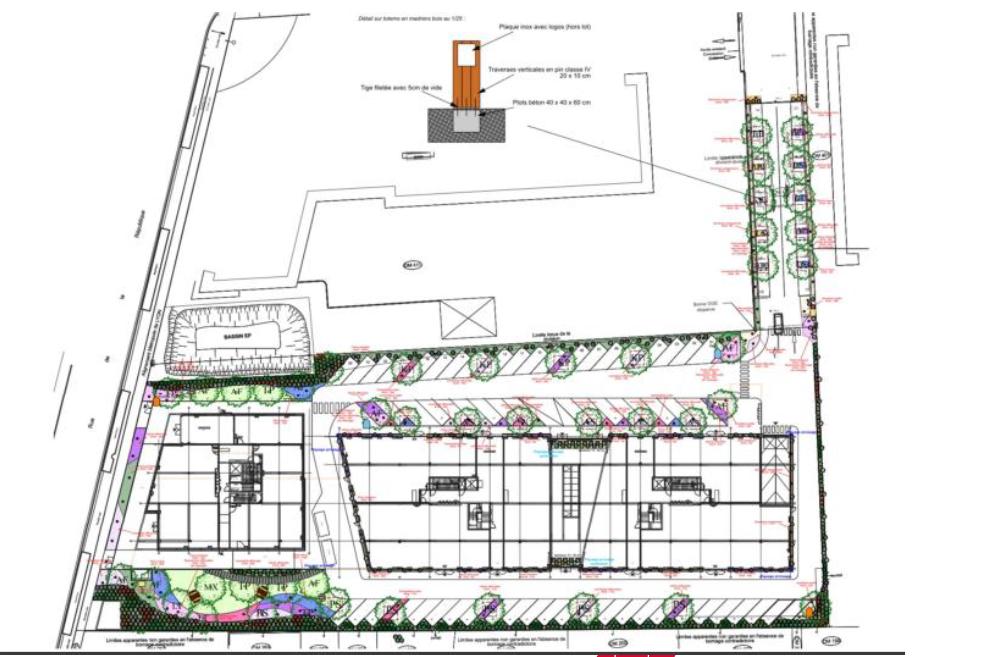
Terrasses - jardins : Terrasse privative de 112 m² en R+1 selon hauteur libre demandée en RDC
Normes, Certifications et Labels
-
Catégorie ERP : 5
-
Certification : BREEAM
Informations complémentaires
-
Dépose minutes • Espaces vélos, Livrés bruts avec fluides en attente, Toitures végétalisées • Façades végétalisées
-
Attentes EF/EU/EV/VMC, Locaux ménages - 1 par bâtiment, Stores extérieurs électriques et stores intérieurs manuels
-
1 porte sectionnelle par lot, Projet paysager










