Aller au contenu principal
Image 1/8
Vente terrain Drémil-Lafage Haute-Garonne OVACT2207565
Vente terrain Drémil-Lafage Haute-Garonne OVACT2207565 1
Vente terrain Drémil-Lafage Haute-Garonne OVACT2207565 2
Vente terrain Drémil-Lafage Haute-Garonne OVACT2207565 3
Vente terrain Drémil-Lafage Haute-Garonne OVACT2207565 4

Vous souhaitez en savoir plus ?

Votre consultant Franck Sanchez est là pour répondre à vos questions.

Référence : OVACT2207565

Vente Terrain 35 266 m²

31280 Drémil-Lafage

35 266 m²

Divisible dès 1 203 m²

à partir de 115 000 €

HT/HD

Informations :

  • HT : Hors taxes
  • HD : Hors droits de notaires
  • Honoraires à la charge de l'acquéreur :

    4% HT du prix HT/HD. à la signature de l'acte

Disponibilité : Nous consulter

Référence : OVACT2207565

Franck SANCHEZ

Description

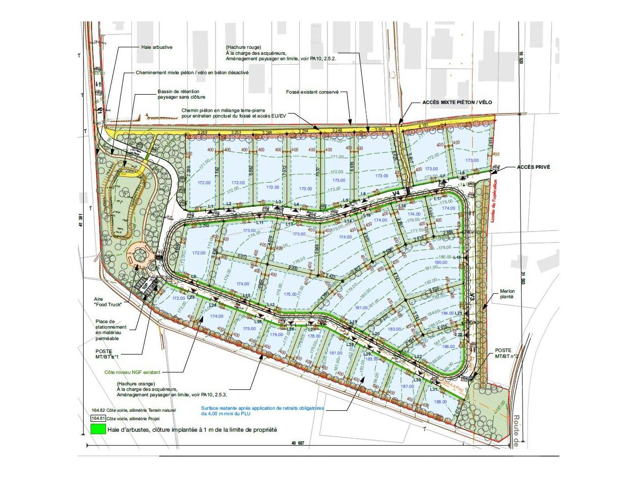
COMMUNE DE DREMIL-LAFAGE


*** Exclusivité - ISATIS PARK ***

Nous vous proposons à la vente des terrains constructibles à usage industriel / activités / stockage / bureaux situés à proximité immédiate de la zone artisanale de Drémil-Lafage. Terrains viabilisés, libres de constructeur situés au coeur d'une ZAC dont les travaux de viabilisation seront finalisés en fin d'année 2023. Surfaces à partir de 1 052 m².


*** Exclusivité - ISATIS PARK ***

 

Ces terrains formeront l'extension de la zone d'activités actuelle de Drémil Lafage.

À seulement 15km de Toulouse, la commune de Drémil-Lafage vit au rythme de la métropole, tout en
offrant un cadre paisible au quotidien, fait de paysages naturels variés. En lisière des coteaux du Lauragais,
cette petite ville fait partie de l'aire d'attraction de Toulouse et est un lieu privilégié par les actifs, tant
pour y vivre que pour y travailler ! Elle offre un environnement naturel plaisant et revigorant à ceux qui y
ont installé leur activité.

Au Sud-Ouest de la commune, s'étendant sur plus de 8,75 hectares, la future zone d'activités Isatis Park propose 31 terrains à bâtir mutualisables allant de 1 052 m² à 3 477 m² propices au développement de multiples activités de bureaux ou de services. Le projet prévoit pour ses occupants des infrastructures de
qualité, dont une aire d'accueil avec coin restauration, dédiés aux moments de détente et de partage entre occupants des différents locaux. Dans un cadre naturel privilégié, entre parc et point d'eau, cette future zone d'activités est la promesse d'un quotidien dynamique, enveloppé dans un écrin de tranquillité. Le projet prévoit l'aménagement de 10 places de stationnement dont 1 PMR.

 

Les terrains seront viabilisés et libres de constructeur. Les travaux de viabilisation sont en cours pour une livraison prévue au T2 2024. 

 

Frais annexes :

Indemnité d'immobilisation du terrain : 2 500 TTC
Plan de vente dû au géomètre : 240 TTC/lot*
Frais de l'architecte coordonnateur : 720 TTC*
Taxe d'aménagement part départementale : 1,30%
(indexée sur la surface taxable du permis de construire)
Taxe d'aménagement part communale : 5%
(indexée sur la surface taxable du permis de construire)
Redevance archéologie préventive : 0,4%
(indexées sur la surface taxable du permis de construire)
Participation au financement de l'assainissement
collectif (PFAC) : Bureau : 17,51 x SDP x 0.66

 

Vous souhaitez en savoir plus ? Contactez-nous au 05 61 23 56 56 !

 

Services & prestations

Energie & diagnostics

Consommations énergétique
? Étiquette énergétique non fournie par le propriétaire
Emissions de gaz à effet de serre
? Étiquette énergétique non fournie par le propriétaire

Tableau de surface

L5
2 323 m² 290 000 € 125 € / m²
Disponibilité : Nous consulter
NatureBâtimentNiveauSurfacePrix m²Prix
Terrain ZAC DE LA MOUYSSAGUESE RDC 2 323 m² 125 € 290 000 €
Disponibilité : Nous consulter
L6
2 570 m² 320 000 € 125 € / m²
Disponibilité : Nous consulter
NatureBâtimentNiveauSurfacePrix m²Prix
Terrain ZAC DE LA MOUYSSAGUESE RDC 2 570 m² 125 € 320 000 €
Disponibilité : Nous consulter
L7
2 146 m² 270 000 € 126 € / m²
Disponibilité : Nous consulter
NatureBâtimentNiveauSurfacePrix m²Prix
Terrain ZAC DE LA MOUYSSAGUESE RDC 2 146 m² 126 € 270 000 €
Disponibilité : Nous consulter
L8
2 127 m² 264 000 € 124 € / m²
Disponibilité : Nous consulter
NatureBâtimentNiveauSurfacePrix m²Prix
Terrain ZAC DE LA MOUYSSAGUESE RDC 2 127 m² 124 € 264 000 €
Disponibilité : Nous consulter
L10
1 807 m² 218 000 € 121 € / m²
Disponibilité : Nous consulter
NatureBâtimentNiveauSurfacePrix m²Prix
Terrain ZAC DE LA MOUYSSAGUESE RDC 1 807 m² 121 € 218 000 €
Disponibilité : Nous consulter
L11
1 978 m² 235 000 € 119 € / m²
Disponibilité : Nous consulter
NatureBâtimentNiveauSurfacePrix m²Prix
Terrain ZAC DE LA MOUYSSAGUESE RDC 1 978 m² 119 € 235 000 €
Disponibilité : Nous consulter
L12
2 482 m² 280 000 € 113 € / m²
Disponibilité : Nous consulter
NatureBâtimentNiveauSurfacePrix m²Prix
Terrain ZAC DE LA MOUYSSAGUESE RDC 2 482 m² 113 € 280 000 €
Disponibilité : Nous consulter
L14
2 456 m² 280 000 € 114 € / m²
Disponibilité : Nous consulter
NatureBâtimentNiveauSurfacePrix m²Prix
Terrain ZAC DE LA MOUYSSAGUESE RDC 2 456 m² 114 € 280 000 €
Disponibilité : Nous consulter
L17
1 269 m² 150 000 € 118 € / m²
Disponibilité : Nous consulter
NatureBâtimentNiveauSurfacePrix m²Prix
Terrain ZAC DE LA MOUYSSAGUESE RDC 1 269 m² 118 € 150 000 €
Disponibilité : Nous consulter
L18
3 477 m² 400 000 € 115 € / m²
Disponibilité : Nous consulter
NatureBâtimentNiveauSurfacePrix m²Prix
Terrain ZAC DE LA MOUYSSAGUESE RDC 3 477 m² 115 € 400 000 €
Disponibilité : Nous consulter
L19
3 337 m² 383 000 € 115 € / m²
Disponibilité : Nous consulter
NatureBâtimentNiveauSurfacePrix m²Prix
Terrain ZAC DE LA MOUYSSAGUESE RDC 3 337 m² 115 € 383 000 €
Disponibilité : Nous consulter
L20
1 483 m² 168 000 € 113 € / m²
Disponibilité : Nous consulter
NatureBâtimentNiveauSurfacePrix m²Prix
Terrain ZAC DE LA MOUYSSAGUESE RDC 1 483 m² 113 € 168 000 €
Disponibilité : Nous consulter
L21
1 836 m² 210 000 € 114 € / m²
Disponibilité : Nous consulter
NatureBâtimentNiveauSurfacePrix m²Prix
Terrain ZAC DE LA MOUYSSAGUESE RDC 1 836 m² 114 € 210 000 €
Disponibilité : Nous consulter
L22
1 922 m² 215 000 € 112 € / m²
Disponibilité : Nous consulter
NatureBâtimentNiveauSurfacePrix m²Prix
Terrain ZAC DE LA MOUYSSAGUESE RDC 1 922 m² 112 € 215 000 €
Disponibilité : Nous consulter
L23
1 413 m² 155 000 € 110 € / m²
Disponibilité : Nous consulter
NatureBâtimentNiveauSurfacePrix m²Prix
Terrain ZAC DE LA MOUYSSAGUESE RDC 1 413 m² 110 € 155 000 €
Disponibilité : Nous consulter
L28
1 437 m² 158 000 € 110 € / m²
Disponibilité : Nous consulter
NatureBâtimentNiveauSurfacePrix m²Prix
Terrain ZAC DE LA MOUYSSAGUESE RDC 1 437 m² 110 € 158 000 €
Disponibilité : Nous consulter
L30
1 203 m² 134 000 € 111 € / m²
Disponibilité : Nous consulter
NatureBâtimentNiveauSurfacePrix m²Prix
Terrain ZAC DE LA MOUYSSAGUESE RDC 1 203 m² 111 € 134 000 €
Disponibilité : Nous consulter

Localisation

31280 Drémil-Lafage

Dessertes & Transports en commun :

  • Bus : 400 m

  • Desserte routière : 400 m

Pour accéder à plus de détails sur les honoraires, consulter notre barème.

Les informations sur les risques auxquels ce bien est exposé sont disponibles sur le site Géorisques : www.georisques.gouv.fr.