


Vente Terrain 32 900 m²
95380 Puiseux-en-France
32 900 m²
Divisible dès 9 400 m²
Prix sur demande
Disponibilité : 30 mois après accord

Laurie BOGAR
Description
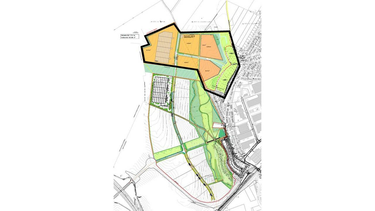
PUISEUX-EN-FRANCE (95)
ZAC DU BOIS DU TEMPLE
Terrain Industriel d'une superficie totale d'environ 21 hectares, divisible et situé à l’ouest des communes de Louvres et Puiseux-en-France. A proximité immédiate de l’aéroport Paris CDG et au coeur de la CA de Roissy Pays de France, initiatrice de ces projets.
Reste à ce jour 2 lots 9B et (10A+B) d'environ 32 900 m².
BNP Paribas Real Estate vous propose à la vente deux lots d'environ 32 900 m² environ.
Services & prestations
Extérieurs
-
Terrain constructible
