




Espace de coworking
69001 Lyon
15 postes
Prix sur demande
Disponibilité : Immédiate

Sandra CLOT-FRONTERI
Description
COWORKING
LYON 1
Immeuble Haussmannien
● Arrêt de bus Hôtel de Ville au pied de l’immeuble : C3, C13, C14, 19, PL3
● Métro Hôtel de Ville et station Vélo’v
● Concentration de restaurants : rue Neuve perpendiculaire (Le Nord, Carmelo)
● Troisième étage avec ascenseur
● Cuisine équipée
● Mobilier 15 postes maximum
● Salle de réunion équipée pour 10 personnes : écran, visioconférence, paperboard.
● Domiciliation incluse
● Accès sécurisé par badge individuel
Hiptown – privatisation du plateau
Modèle de contractualisation Contrat de prestation de service
Date d'entrée cible Septembre 2023
Dépôt de Garantie 2 mois
Engagement 12/24 mois renouvelable
(accompagnement dans la croissance)
Tarif mensuel HT Intégralité privative 130m2:
7500,00€/mois
Aménagement + Equipement et Mobilier
Connexion Internet WIFI haut débit – Fibre
Accès 7j7 sécurisés
Salle de réunion et cuisine équipées
Nettoyage + Consommables hygiène et entretien
Café à discrétion
Domiciliation
Décoration espaces de vie et parties-communes
Toutes charges incluses hors TVA
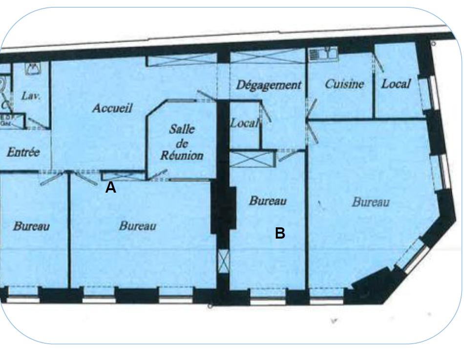
Plateau de 130m² / 15 postes
Agencement:
-Un bureau de 6 postes
-Deux bureaux de 2 postes
-Une salle de réunion pour 10 personnes
(ou un bureau de 6 postes)
-Une cuisine équipée
Etat du plateau: Excellent
Cloisonnement existant conservé
Services & prestations
Aménagements
-
Bureaux cloisonnés
-
Effectif théorique : 11 postes coworking
-
Espaces Co-working : 15 Places
Equipements
-
Ascenseurs
-
Climatisation : Réversible
-
Sol bureaux : Parquet
-
Type de chauffage : Individuel
Hauteurs
-
Hauteur sous-plafond
Prestations de service
-
Parking
-
Restauration : Point d'eau pour kitchenette
Extérieurs
-
Linéaire de façade : 11,00 mètre(s)
Type / Etat du bâtiment
-
Etat de l'immeuble : Etat d'usage
-
Etat des locaux : Très bon état
-
Type d'immeuble : Centre d'Affaires
Informations complémentaires
-
Bureau opéré premium
-
Flexibilité, personnalisation et sérénité
-
Mobilier 15 postes










