




Espace de coworking
69007 Lyon
42 postes
Prix sur demande
Disponibilité : Immédiate

Sandra CLOT-FRONTERI
Description
COWORKING
Lyon, Gerland
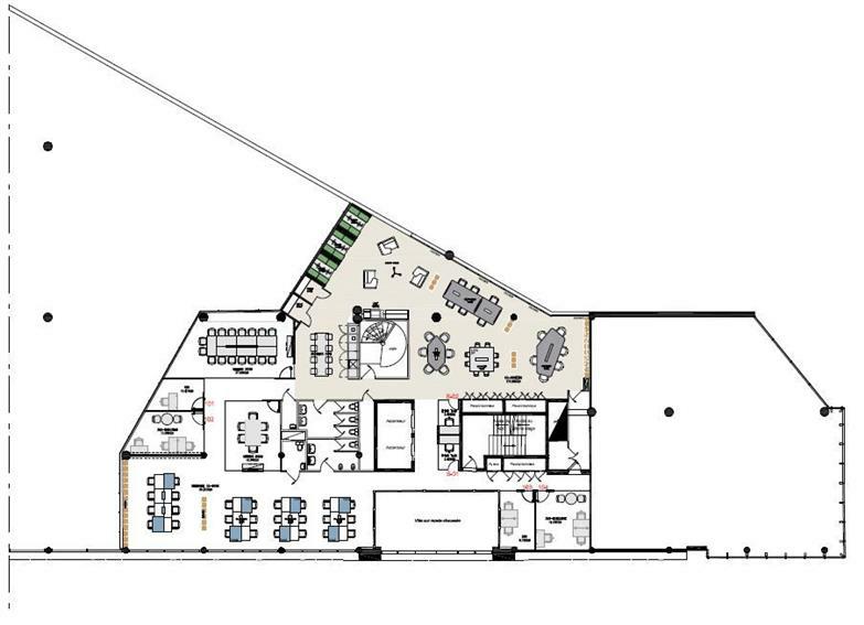
Installez vos bureaux dans notre centre à Gerland, un quartier d'affaires dynamique de Lyon. Ce quartier accueille 2 000 entreprises, c'est donc l'endroit idéal pour développer votre réseau, avec un maximum de 42 postes.
Travaillez dans un cadre stimulant grâce aux grandes baies vitrées qui inondent les bureaux colorés de lumière naturelle. Le centre possède un parking souterrain et se trouve à trois minutes des arrêts de bus et du métro. Le quartier de Gerland compte également de nombreux équipements de loisirs tels que la Halle Tony-Garnier et le stade Matmut Stadium Gerland.
Cet accueillant bâtiment vitré se trouve au cœur du quartier d'affaires très prisé de Lyon. Les bureaux élégants et bien équipés ont été rénovés selon des normes de qualité élevées, avec un espace de coworking contemporain et des salles de réunion flexibles faciles à réserver. Le bâtiment se trouve dans l'aire urbaine de Gerland, qui accueille plus de 2 000 entreprises, c’est donc l'endroit idéal pour dénicher des contacts, des clients et des talents.
En plus d'un parking souterrain, Regus Lyon Gerland est facilement accessible en transports en commun, notamment via l’arrêt de bus Lyon Perrache et la station de métro Place Jean Jaurès. Envie de changer de décor ou de divertir vos clients ? Ce quartier d’affaires animé a beaucoup à offrir, y compris le musée d'histoire militaire et le musée des Confluences, ainsi que la possibilité de se promener tranquillement le long du Rhône.
Services & prestations
Aménagements
-
Effectif théorique : 42 postes coworking
-
Espaces Co-working : 42 Places
Equipements
-
Ascenseurs : 3
-
Climatisation : Réversible
-
Faux plafond
-
Faux plancher
-
Gestion technique centralisée
-
Groupe électrogène
-
Monte-charge : 1
-
Type de chauffage : Collectif
Prestations de service
-
Parking : Parking souterrain sécurisé
-
Sécurité : Contrôle d'accès par badge
Type / Etat du bâtiment
-
Etat de l'immeuble : Etat d'usage
-
Etat des locaux : Neuf
-
Immeuble indépendant
Informations complémentaires
-
84 Bureaux privés, Bureau 215 € par personne par mois
-
6 bureaux de coworking, Coworking 189 € par personne par mois
-
2 Salles de réunion, Bureaux virtuels 35 € Par mois










