




Location Bureau 105 m²
06800 Cagnes-sur-Mer
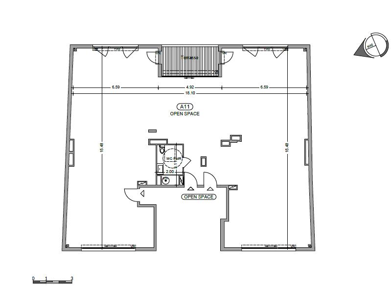
105 m²
172 €
HT/HC/m²/an
Disponibilité : Immédiate

Jeremy LOPES
Description
BIANCA : bâtiment neuf en centre-ville de Cagnes Sur Mer
A louer, un plateau privatif de 105 m² dans un immeuble neuf au cœur du centre-ville de Cagnes sur Mer.
OLBUR2310433
À LOUER - BUREAUX - BIANCA - CAGNES SUR MER
Situé dans la ville dynamique de Cagnes-sur-Mer, ce tout nouveau bâtiment en cours de construction est le lieu idéal pour les entreprises à la recherche d'un environnement de travail moderne et professionnel.
- Immeuble neuf et indépendant
- Livré en 2023
- Classé Code du Travail
- Ascenseur PMR
- Climatissation réversible
- Terrasses et jardins
- Distribution chauffage réversible
Parking privatif
Ces bureaux neufs offrent un espace de travail confortable et lumineux, avec une architecture contemporaine et des installations de haute qualité pour répondre à tous les besoins professionnels. Les espaces de travail sont adaptables à toutes les tailles d'entreprises, des petites start-ups aux grandes entreprises.
En plus d'un environnement de travail de qualité, l'immeuble est situé dans une zone accessible et pratique, avec des commerces, restaurants et autres commodités à proximité. De plus, le plateau bénéficie d'une terrasse privative sans oublier un espace de co-working, une salle de fitness et une crèche à proximité immédiate de l'immeuble favorisant votre bien-être au travail.
À proximité
- Autoroute A8 à 300 m
- Aéroport de Nice Côte d'Azur à 9 mn
- Gare SNCF à 500 m
- Lignes de bus à 60 m
Services & prestations
Aménagements
-
Accès Pers. Mobilité Réduite : Ascenseur
-
Aménagement des bureaux : Espaces Ouverts
-
Espaces Co-working : A 10 minutes
-
Sanitaires : 2 Privatif(s)
Equipements
-
Ascenseurs : 1
-
Climatisation : Réversible
-
Distribution chauffage : Réversible
-
Distribution climatisation : Ventilo convecteur en plafonnier
-
Eclairage Bureaux : Luminaires encastrés
-
Faux plafond : Dal. fibres minéral.
-
Fenêtres
-
Plinthes techniques périphériques
-
Production climatisation : Autonome
-
Sol bureaux : Moquette
Prestations de service
-
Fitness : A proximité
-
Parking : 6 Places
-
Restauration : A proximité
Extérieurs
-
Terrasses - jardins
Type / Etat du bâtiment
-
Etat de l'immeuble : Neuf
-
IGH / Code du travail : Code du travail
-
Immeuble indépendant










