




Avenue Pierre Isnard/ Avenue du Dr Robini
06200 Nice
6 661 m²
Divisible dès 299 m²
240 €
HT/HC/m²/an
Disponibilité : 27 mois après accord

Jeanne-Marie FAUVET
Description
LE LAB
Projet mixte sur Nice Méridia
Ce projet mixte proposera des bureaux et laboratoires au coeur de la technopôle urbaine de Nice Méridia.
L'immeuble sera classé code du travail à l'exception des R+7 et R+8 qui seront classés ERP 5 type W.
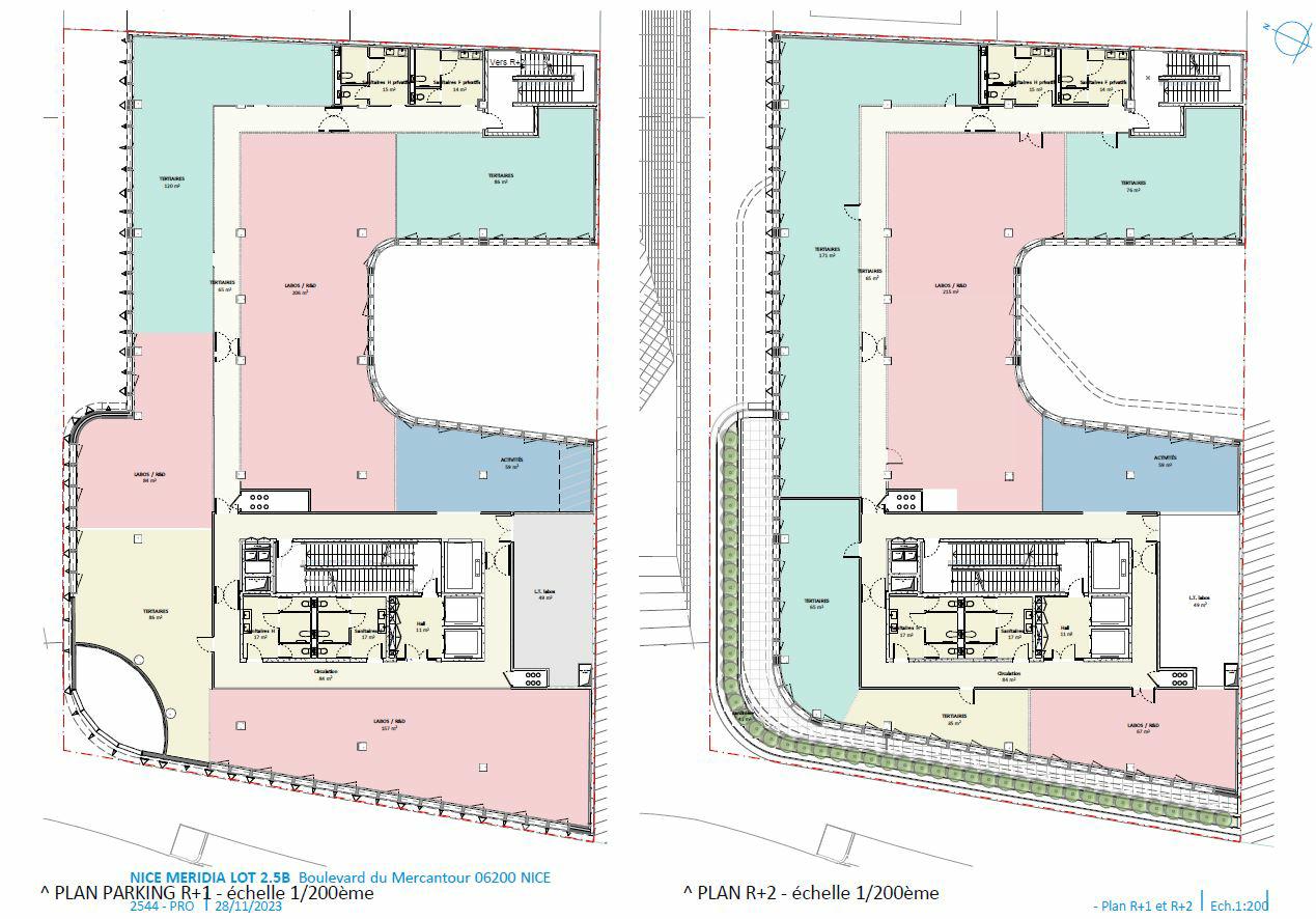
Le volume constitué du RDC, R+1 et R+2 est ERP compatible 4ème catégorie type R ou U ( en consultation de jour).
Terrasse de 102,60 m² au R+3 (lot 32), divisible par lots
Livraison S2 2027
OLBUR2314771
LOCATION BUREAUX NICE LE LAB
BNP Paribas Real Estate vous présente à la location, un projet situé sur Nice Méridia qui proposera des bureaux ainsi que des laboratoires allant du R+1 au R+7.
Loffre disposera de de 6.418 m² de bureaux et laboratoires dont 3 792,30 m² environ de bureaux et disponibles à 240 /m²/an HT HC pour les laboratoires et 220 /m²/an HT HC pour les bureaux.
Loyer terrasses extérieures : 55 /m²/an HT
Les locaux seront proposés en open space et bénéficieront de nombreuses labellisations, un hall d'accueil ainsi qu'un accès totalement sécurisé.
Les équipements et caractéristiques de l'immeuble :
- Bureaux en open space
- Labellisations :
- Breeam Very Good,
- Référentiel environnement Nice Ecovallée niveau excellent
- Smart Grid Ready
- Locaux classés ERP 5 Type W pour les deux derniers étages
- Sanitaires privatifs avec douches
- Faux plafond & faux plancher
- Monte charge
- Ascenseurs aux normes PMR
- Hall d'accueil
- Immeuble sécurisé
- Accès PMR
Vous trouverez aux alentours du bâtiment des points de restauration, un parking public et d'autres services de proximité.
Le Lab est bien desservi par les transports en commun et via les axes routiers, qui assurent un accès direct vers la gare et l'aéroport.
Accessibilité :
- A8 / 6202 Bis
- Gare SNCF Multimodale à proximité
- Aéroport Nice Côte d'Azur à 5 min
- Bus 22, 59, 90, 741, 672,
Conditions financières des parkings HT :
- VL Rglt : 2.300 /u
- VL Rglt pré-équipée IRVE : 2.370 /u
- VL Rglt équipée IRVE : 2.500 /u
- VL DUS Silo : 1.900 /u
- Place 2 RM : 260 /u
- Place 2 RM équipée IRVE : 310 /u
- Stationnement Vélos : 50 /m²
Services & prestations
Aménagements
-
Accueil
-
Accès Pers. Mobilité Réduite
-
Aménagement des bureaux : En open-space
-
Bureaux cloisonnés : Avec prises électriques 220V
-
Hall d'accueil
-
Sanitaires : Parties communes
Equipements
-
Ascenseurs : Aux normes PMR
-
Climatisation
-
Distribution chauffage : De types gainables (réseaux de soufflage et de reprise en faux plafond)
-
Douche : En parties communes
-
Eclairage Bureaux : Spots LED encastrées
-
Faux plafond : En dalles, posées sur ossature apparente laquée blanche
-
Faux plancher : De type dalle champignon
-
Fluides en attente : Eau de ville Raccordement sur le réseau
-
Monte-charge : 1 appareil 2000Kg de charge admissibles / 26 personnes
-
Sol bureaux : De type PVC ou moquette
-
Type de chauffage : Relié au réseau de chaleur et de refroidissement de la ville
Prestations de service
-
Parking : Public Joïa Méridia à proximité
-
Restauration : A proximité
-
Sécurité
Extérieurs
-
Terrasses - jardins
Normes, Certifications et Labels
-
Catégorie ERP : 5 Type W pour les étages 7 et 8
-
Certification : BREEAM
Type / Etat du bâtiment
-
Etat de l'immeuble : A construire - Livraison S2 2027
-
IGH / Code du travail : Code du travail
-
Immeuble indépendant
Informations complémentaires
-
Accès PMR, Parking public Joïa Méridia à proximité
-
Charges d'exploitation 500 KG/m² pour les parties labos et activités, Système de sécurité incendie de type 4
-
Electricité : Tableau général basse tension - Branchement tarif bleu : puissance souscrite <36k VA










