




Vente Bureau 6 750 m²
06200 Nice
6 750 m²
Divisible dès 1 085 m²
Prix sur demande
Disponibilité : 33 mois après accord

Jeanne-Marie FAUVET
Description
NICE LA PLAINE II
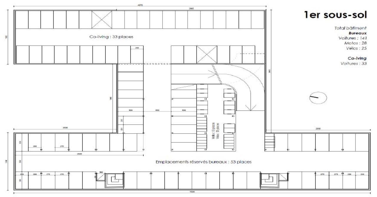
Nous vous proposons à la location ou à la vente en exclusivité une surface de bureaux à construire d'environ 6.750 m² de bureaux et 4.600 m² de coliving au cœur du village d'entreprise de Nice au sein de l'écovallée et du quartier de Nice Méridia.
Prestations attendues haut de gamme avec un généreux cœur d’îlot paysagé accueillant du mobilier urbain viendra agrémenter les espaces communs extérieurs.
OVBUR2424714
NICE – NICE LA PLAINE - BUREAUX A LOUER / A VENDRE
Nous vous proposons à la location ou à la vente des bureaux à construire d’une surface de 6.750 m² divisibles à partir de 1.085 m² en R+5. Une surface de 4.600 m² de coliving est également disponible, le tout au cœur du village d’entreprise de Nice la Plaine au sein de l’éco-vallée et du quartier de Nice Méridia.
Le quartier Nice Méridia est avec l’opération de renouvellement urbain, l’éco-vallée et la plaine des sports, un secteur à enjeu et à fort potentiel de croissance économique, d’emploi et de développement durable.
Il est idéalement situé car il propose au tous les services du quotidien : restaurants, alimentation, commerces, transports etc…
Services de l’immeuble :
- Immeuble indépendant neuf
- Climatisation réversible
- Bureaux en open-space
- Ascenseurs aux normes PMR
- Certification RE 2020 seuil 2025
- Parking sous-sol
- Accès PMR
- Localisée à l’entrée ouest de la ville de Nice et bénéficiant d’une situation privilégiée, à proximité de l’aéroport international et au cœur de la métropole azuréenne, dans un secteur desservi depuis fin 2019 par la ligne 3 du tramway, l’opération Parc Méridia vise à accélérer et amplifier le développement économique et urbain engagé sur l’ensemble de l’EcoVallée ; son développement s’inscrit dans le prolongement du quartier des affaires Grand Arénas et de la technopole urbaine Nice Méridia.
Accessibilité :
- Tramway 3 à proximité
- A8, voie rapide, RD 2022
- Gare SNCF Nice Saint-Augustin à 5 min
- Aéroport de Nice Côte d’Azur à 5 min
- Plusieurs lignes de bus à proximité (17, 20, 50)
Services & prestations
Aménagements
-
Aménagement des bureaux : Espaces Ouverts
-
Sanitaires : Parties communes
Equipements
-
Ascenseurs : Aux normes PMR
-
Climatisation : Réversible
-
Distribution chauffage : Réversible
-
Eclairage Bureaux : Luminaires encastrés dalles LED
-
Faux plafond : Dal. fibres minéral. à confirmer
-
Fenêtres
-
Plinthes techniques périphériques : A définir
-
Production climatisation : Air rafraîchi
-
Revêtement mural : Peinture blanche
-
Sol bureaux : Sol souple
-
Type de chauffage : Collectif
Hauteurs
-
Hauteur sous-plafond : 2,70 mètre(s) à confirmer
Prestations de service
-
Fitness : A proximité
-
Parking
-
Restauration : Restaurants à proximité
Normes, Certifications et Labels
-
Certification : Autre certification
Type / Etat du bâtiment
-
Etat de l'immeuble : Neuf
-
Immeuble indépendant
-
Type d'immeuble : Bureaux et coliving










