




Location Bureau 307 m²
67600 Sélestat
307 m²
Divisible dès 140 m²
à partir de 125 €
HT/HC/m²/an
Disponibilité : immédiate pour les deux

Nalan KOLAT
Description
SELESTAT
CENTRE-VILLE - BÂTIMENT - REF. OLBUR2202021
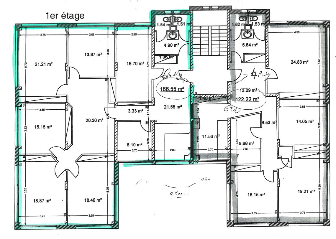
Dans un immeuble situé à proximité du centre-ville de Sélestat, nous vous proposons à la location 1 plateau de bureaux de 160 m² environ, rénovés et climatisés.
Un second plateau d'une surface de 140 m² environ est également disponible. L'ensemble des locaux sont cloisonnés, aménagés et possèdent des places de parking attribuées.
Idéalement situé au sud du Bas-Rhin, Sélestat est à moins d'une heure des grandes villes alsaciennes :30 min de Strasbourg (20 min de l'Aeroport d'Entzheim), 25 min de Colmar et 40 min de Mulhouse.
Les locaux sont facilement accessibles depuis l'A35 (5min) et depuis la gare de Sélestat (5 min également)
Disponibilité immédiate.
Nous sommes à votre disposition pour vous faire visiter les lieux !
Services & prestations
Aménagements
-
Aménagement des bureaux : Cloisonnés
-
Sanitaires : Privatif(s)
Equipements
-
Climatisation
-
Câblage informatique
-
Eclairage Bureaux : Luminaires encastrés et suspendus
-
Faux plafond : Dal. fibres minéral.
-
Fenêtres : Double vitrage
-
Plinthes techniques périphériques
-
Sol bureaux : Moquette/Parquet
Type / Etat du bâtiment
-
Etat de l'immeuble : Etat d'usage
-
Etat des locaux : Etat d'usage
-
IGH / Code du travail : Code du travail
Informations complémentaires
-
Accueil espace d'attente en partie privative, Hôtels et Restaurants à proximité
-
Cabinets médicaux




