




Location Bureau 265 m²
67140 Barr
265 m²
88 €
HT/HC/m²/an
Disponibilité : Nous consulter

Nalan KOLAT
Description
BARR
ZA du Muckenthal - REF. OLBUR2310431
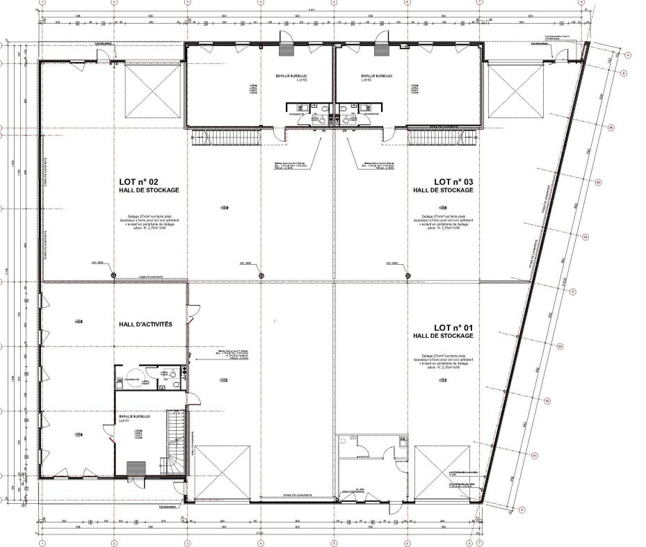
Au sein d'un ensemble immobilier d'environ 1 900 m² récent et situé à Barr, dans la zone d'activités du Muckenthal, un lot de bureaux avec showroom d'une surface d'environ 265 m² est disponible à la location.
Situé dans la zone industrielle du Muckenthal de Barr, la gare TER se trouve à 1,4 km et l'autoroute A35 à moins de 5 minutes. Le parking d'autopartage de Andlau-Barr est situé à 1,8 kilomètres du bâtiment.
Quelques sociétés déjà présentes sur la ZA : Girold Construction Bois, Fortal, Fabar, la déchèterie de Barr, Le Mât de Cocagne, Atelier Rétro Sport, VBI, GEM Matériaux, Taxi Merckling, Vector Soudage...
Contactez-nous si vous envisagez une implantation dans le secteur de Barr !
Services & prestations
Aménagements
-
Aménagement des bureaux : Espaces Ouverts
-
Sanitaires : Privatif(s)
Equipements
-
Climatisation : Réversible
-
Eclairage Bureaux : Luminaires encastrés led
-
Faux plafond
-
Sol bureaux : Moquette/Carrelage
Prestations de service
-
Parking
Type / Etat du bâtiment
-
Etat de l'immeuble : Neuf
-
Etat des locaux : Etat d'usage










