




EMULSION
3 Allée Alice Guy
21000 Dijon
3 037 m²
Divisible dès 402 m²
à partir de 195 €
HT/HC/m²/an
Disponibilité : 24 mois après accord

Charles LUCIANI
Description
DIJON CENTRE-VILLE
CITE INTERNATIONALE DE LA GASTRONOMIE ET DU VIN
Découvrez EMULSION, un immeuble de bureaux d’exception situé au cœur de la Cité de la Gastronomie et du Vin, un lieu emblématique mêlant culture, patrimoine et art de vivre. Idéalement situé à proximité immédiate du centre-ville, des Halles gourmandes, du Pôle de restauration, et des principaux axes de transports en commun, EMULSION offre un cadre de travail unique et inspirant.
Bureaux neufs au coeur de la Cité de la Gastronomie et du Vin à Dijon
Des bureaux modernes et fonctionnels
EMULSION se distingue par une architecture contemporaine et une conception pensée pour répondre aux besoins des entreprises d'aujourd'hui :
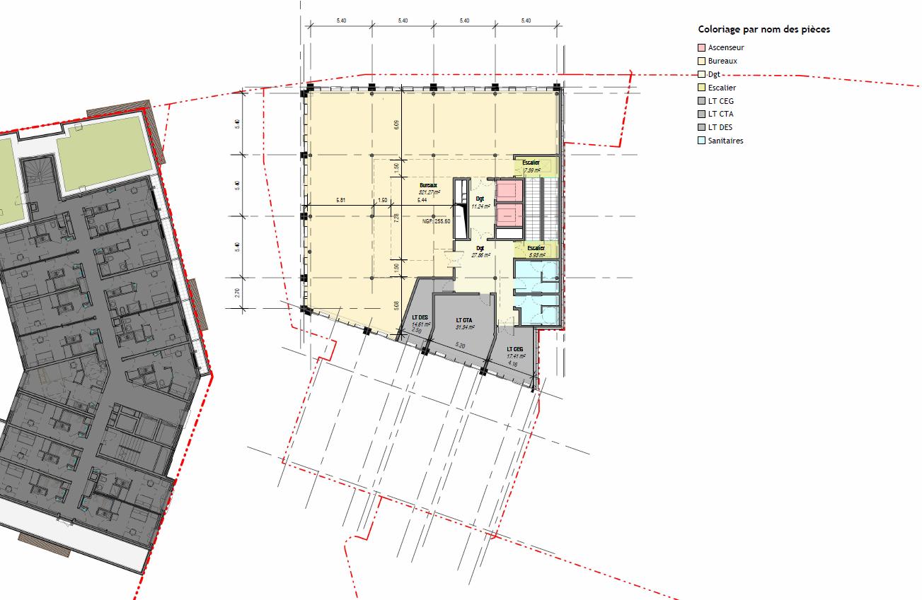
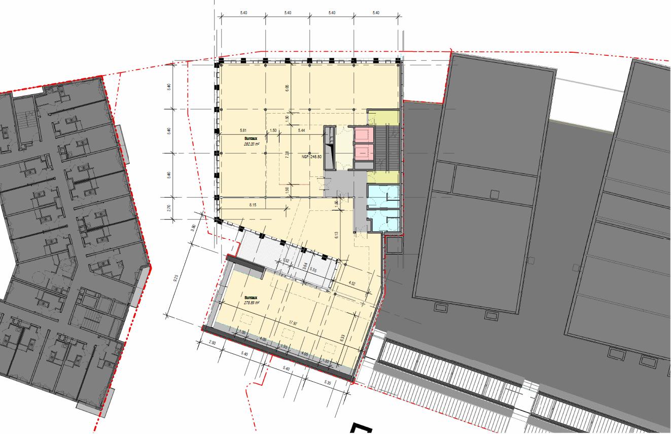
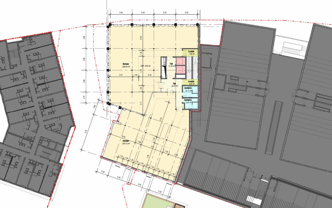
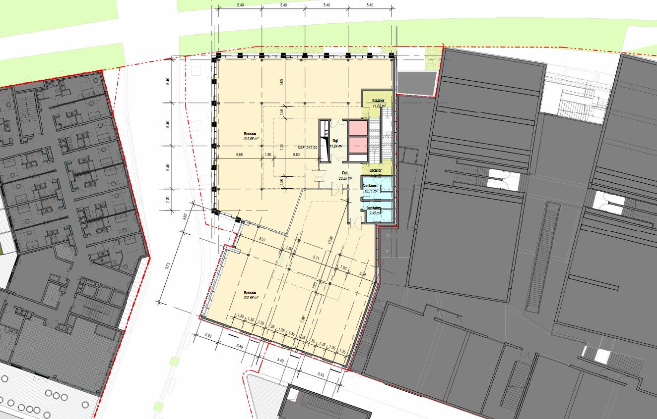
- Surface totale : 3 605 m² répartis sur 5 niveaux (R+5) divisibles à partir de 401m²
- Plateaux aménagés en open space pour une organisation optimale
- Climatisation (air rafraîchi) pour un confort en toutes saisons
- Sanitaires privatifs sur chaque étage
Un emplacement stratégique et prestigieux
Implanté sur le site historique de l'ancien hôpital général de Dijon, EMULSION bénéficie d'un emplacement premium aux portes du centre-ville et du secteur sauvegardé. À quelques pas, le Port du Canal (futur Parc Eiffel) et le Jardin des Plantes apportent des espaces de verdure et de détente, propices à l'équilibre entre vie professionnelle et bien-être.
La Gare SNCF est accessible en moins de 10 minutes à pied, connectant rapidement Dijon aux grandes métropoles. Les infrastructures urbaines, telles que le tramway, les bus et les stations de vélos partagés, renforcent la facilité d'accès au site, parfait pour vos collaborateurs et clients.
Accessibilité optimale
- Tramway : Ligne T2, station Monge à 2 minutes
- Bus DIVIA : Ligne L4, arrêt Hôpital à 2 minutes et Ligne L5, B12, B18 arrêt Monge cité de la gastronomie
- Gare SNCF : Accessible en seulement 5 minutes à pied
- Parking public Monge : Situé à 2 minutes
- Station de vélos partagés : À proximité immédiate
Services et commodités
- Restaurants dans la Cité de la Gastronomie
- Commerces accessibles en 7 minutes à pied au centre-ville
Votre opportunité d'implantation
EMULSION, disponible à la location, représente une opportunité unique pour les entreprises à la recherche d'un emplacement stratégique et prestigieux à Dijon.
Contactez-nous dès maintenant pour plus d'informations.
Services & prestations
Aménagements
-
Accès Pers. Mobilité Réduite
-
Aménagement des bureaux : Open Space
-
Auditorium : Sur site
-
Complexe Salle de réunion : Sur Site
-
Sanitaires : Privatif(s)
Equipements
-
Ascenseurs : 1
-
Climatisation : Air rafraîchi
-
Câblage informatique
-
Eclairage Bureaux : Luminaires encastrés LED
-
Faux plafond : Dal. fibres minéral.
-
Revêtement mural : Toile de verre peinte
-
Sol bureaux : Moquette
-
Type de chauffage : Collectif
Prestations de service
-
Fitness : A proximité
-
Parking : Public Monge à proximité
-
Restauration : Sur site
Type / Etat du bâtiment
-
Etat de l'immeuble : Neuf
-
Etat des locaux : Neuf
Informations complémentaires
-
Bureaux en R+1 et R+2
-
Au coeur de la Cité Internationale de la Gastronomie
-
Environnement : Commerces/Multiplexe/Hôtel










