




5 Avenue de Dallas
21000 Dijon
3 039 m²
Divisible dès 170 m²
à partir de 150 €
HT/HC/m²/an
Disponibilité : 31/12/2028

Charles LUCIANI
Description
DIJON
CAPNORD
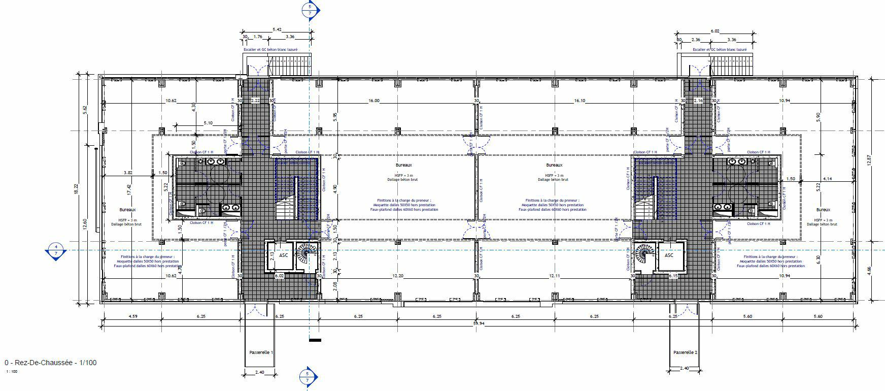
Bâtiment de bureaux à construire de 3.039 m² environ en R+2, divisible à partir de 170 m² environ.
50 places de parking extérieures et 34 places de parking intérieures.
Bâtiment de bureaux en R+2 au coeur de la ZAE CAPNORD à DIJON.
A LOUER / A VENDRE.
Visibilité exceptionnelle sur une avenue pénétrante de Dijon.
A construire, immeuble de bureaux situé au Nord de la métropole dijonnaise sur un axe passant à proximité immédiate des entrée et sortie de la Rocade Est de Dijon, donnant accès aux autoroutes A36, A36, A39 et A38 par la L.I.N.O.
Le réseau de bus urbain DIVIA dessert le quartier avec un arrêt de bus au pied de l'immeuble.
L'immeuble est au normes d'Accès aux Personnes à Mobilité Réduite.
Nombreuses places de parking abritées et extérieures.
Le bien est situé dans un quartier disposant de nombreux atouts, avec des commerces (IKEA, E. LECLERC, ...), également des services en tout genre (restauration, hôtellerie, crèches, écoles, groupes scolaire, )
Services & prestations
Aménagements
-
Accès Pers. Mobilité Réduite
-
Sanitaires : Parties communes
Equipements
-
Ascenseurs : 2
-
Charge au sol Etage : 250 kg/m²
-
Charge au sol Rdc : 2,00 tonne(s)/m²
-
Climatisation : Réglable par bureau
-
Eclairage Bureaux : Luminaires encastrés LED
-
Eclairage intérieur : Industriel 250 lux moyen led
-
Eclairage naturel : Skydomes
-
Faux plafond : Dal. fibres minéral.
-
Porte d'accès plain-pied
-
Puissance électrique : Tarif jaune ou bleu selon cellule
-
Sol bureaux : Dls.thermoplastiques Moquette/PCV/carrelage
-
Sols du bâtiment : Béton
-
Source chauffage : Gaz
-
Type de chauffage : Individuel
Hauteurs
-
Hauteur libre : Mini 6,50 m & sous mezzanine 3,50 m
Prestations de service
-
Fitness : A proximité
-
Parking : Places extérieures pour voitures
-
Restauration : A proximité
-
Sécurité : Site clos et sécurisé
Structure du bâtiment
-
Charpente : Métallique
-
Couverture : Béton
-
Murs : Bardage double peau
Type / Etat du bâtiment
-
Etat de l'immeuble : Neuf
-
Etat des locaux : Neuf
Informations complémentaires
-
Bâtiment de bureaux en R+2, Porte sectionnelle 4 x 4,50 m
-
Locaux brut de béton / fluides en attente pour le rdc
-
ADSL -->12M ; SDSL -->12m
Accès véhicules
-
Accessibilité type véhicules : Tous porteurs










