




2721 Route de Baziege la Lauragaise
31670 Labège
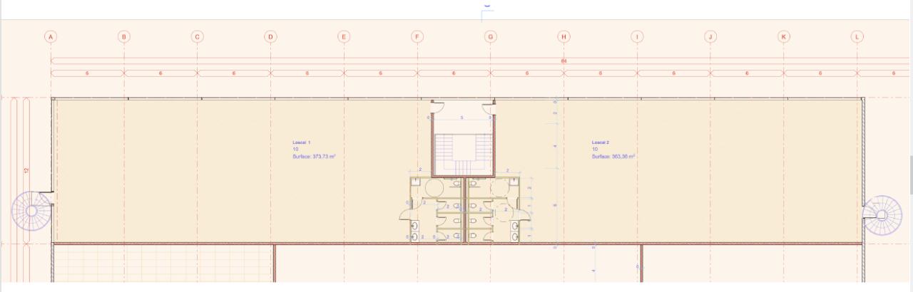
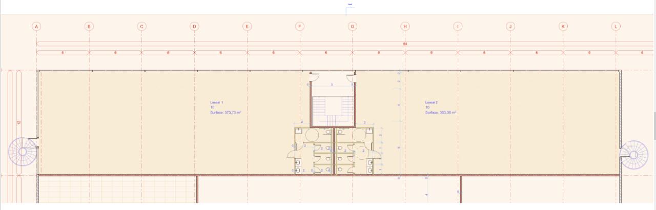
737 m²
Divisible dès 363 m²
145 €
HT/HC/m²/an
Disponibilité : Immédiate

Louise BOURRIERES
Description
*** TOULOUSE SUD-EST / LABEGE ENOVA : BUREAUX RENOVES A LOUER ***
Au cœur de la zone de Labège Enova et à proximité de deux futures stations de métro, découvrez cette opportunité de bureaux rénovés disponibles à la location.
Les bureaux bénéficient d'une belle visibilité, situés en façade de la route de la Lauragaise à Labège, dans un bâtiment mixte à usage de commerces au RDC et de bureaux à l'étage.
Disponibilité : immédiate
Descriptifs et services :
Distribution climatisation : Ventilo convecteur en plafonnier
Climatisation : Réversible
Distribution chauffage : Réversible
IGH / Code du travail : Code du travail
Production climatisation : Autonome
Prestations bureau :
Faux plafonds : Dal fibres minéral
Sanitaire : Parties communes
Plinthes techniques périphériques
Sécurité : Contrôle d'accès
Eclairage Bureaux : Luminaires encastrés
Sol bureaux : Moquette
Dessertes :
Bus à 100 mètres
Futures stations « Innopole et « Diagora » à proximité
Gare "Labège Innopole" à 550 mètres
Aéroport Toulouse Blagnac à 21 km
Desserte routière à 1,7 km
Bail commercial durée : 3/6/9 ans
Zoom sur Labège Enova (ex Labège Innopole) :
La 3ème ligne de métro permettra à terme de relier la ZAC Labège Enova au centre-ville de Toulouse en moins de 15 mn, 3 stations sont prévues pour desservir la zone à horizon 2025.
Le Parc d'Activités de Labège Enova regroupe un ensemble d'environ 700 entreprises, un centre commercial (CARREFOUR LABEGE 2), un cinéma, de nombreux restaurants et un centre des Congrès (DIAGORA).
Depuis 2014, un projet ambitieux de réaménagement du parc d'activité Enova Labège Toulouse (ex Labège-Innopole) en lien avec l'arrivée du métro est en réflexion. Un projet qui entre progressivement en phase opérationnelle.
Le Sicoval pilote actuellement une grande opération urbaine sur le quartier Enova Labège-Toulouse qui vise à développer de nouveaux quartiers économiques, commerciaux et résidentiels.
L'actualité liée au projet de 3ème ligne de métro Toulouse Aerospace Express (TAE), à l'achat d'un terrain de 10 hectares au coeur d'Enova Labège-Toulouse (ex terrain Sanofi) par le Sicoval et à la rénovation du pôle commercial ont amené à faire évoluer le projet d'aménagement initial.
Les évolutions présentés en Conseil permettront :
de répondre aux nouveaux enjeux de mobilité et de déplacements grâce à :
- la création d'un nouvel axe routier Est/Ouest permettant de limiter la circulation au coeur d'Enova Labège-Toulouse et la saturation des RD 16 et 916,
- de nouvelles aires de stationnement au niveau de la connexion entre les lignes B et TAE (secteur de la future station INPT),
- l'étude sur le doublement (passage à 2X2 voies) de la RD 916,
- la modification du tracé de la Diagonale (voie traversant Enova Labège-Toulouse dédiée aux modes doux) afin d'assurer l'accessibilité de l'ensemble du parc d'activité en 5 min à pied ou grâce à une navette électrique sans conducteur depuis les 3 nouvelles stations de métro,
d'intégrer les réflexions en cours entre le Sicoval et Tisséo-SMTC sur l'implantation des nouvelles stations de la 3e ligne de métro ;
de consacrer 100 000 m², situés au coeur d'Enova Labège-Toulouse, à l'émergence d'un futur pôle numérique.
Un changement d'identité pour un nouveau positionnement
Parallèlement, le Sicoval a mené une réflexion auprès des acteurs économiques, des élus du territoire, etc afin d'établir une nouvelle stratégie de valorisation de ce parc d'activité. L'axe de communication stratégique choisi est celui du « circuit court de l'innovation » : ce parc doit devenir le lieu de prédilection où les innovations de demain seront inventées et testées grandeur nature. Il a donc été rebaptisé Enova Labège-Toulouse. Enova fait référence à l'occitan « ennovada » qui signifie « innovation », et permet ainsi de faire le lien entre l'identité régionale de l'Occitanie et l'univers de l'innovation.
Services & prestations
Aménagements
-
Aménagement des bureaux : Espaces Ouverts
-
Sanitaires : Parties communes
Equipements
-
Ascenseurs
-
Climatisation : Réversible
-
Distribution chauffage : Réversible
-
Distribution climatisation : Ventilo convecteur en allège
-
Eclairage Bureaux : Luminaires encastrés
-
Faux plafond : Dal. fibres minéral.
-
Plinthes techniques périphériques
-
Production climatisation : Autonome
-
Sol bureaux : Parquet
Prestations de service
-
Sécurité : Contrôle d'accès
Type / Etat du bâtiment
-
Etat des locaux : Rénové
-
IGH / Code du travail : Code du travail










