

Location Bureau 1 426 m²
92100 Boulogne-Billancourt
1 426 m²
345 €
HT/HC/m²/an
Disponibilité : Immédiate

Melanie COHEN
Description
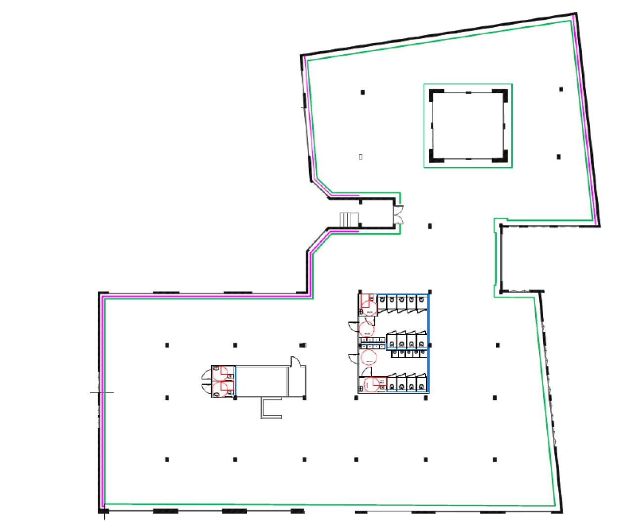
Dans un immeuble récent, BNP PARIBAS REAL ESTATE vous propose une surface de bureaux de 1418 m² qui sera livrée par le bailleur rénovée et entièrement décloisonnée. Le lot dispose d'un patio privatif ainsi que d'une terrasse sur l'arrière et de parkings en sous-sol. La surface est classée ERP 4 et peut accueillir 200 personnes.
Le bien est situé dans un secteur prisé de Boulogne Nord.
Parking
Climatisation
ERP
Jardin et terrasse
Services & prestations
Aménagements
-
Aménagement des bureaux : Espaces Ouverts
-
Complexe Salle de réunion
-
Hall d'accueil
-
Salle informatique
-
Sanitaires : Privatif(s)
Equipements
-
Climatisation
-
Câblage informatique
-
Distribution chauffage : électrique
-
Faux plafond
-
Sol bureaux : PVC
Prestations de service
-
Parking : Accès direct par ascenseur
-
Restauration : Grande cuisine aménagée
-
Sécurité : Gardiennage
Extérieurs
-
Terrasses - jardins : Patio + terrasse privatifs
Normes, Certifications et Labels
-
Catégorie ERP
Informations complémentaires
-
Espace détente aménagé
-
Local reprographie










