




23 - 25 AVENUE DU GENERAL LECLERC 92340 BOURG LA REINE
92340 Bourg-la-Reine
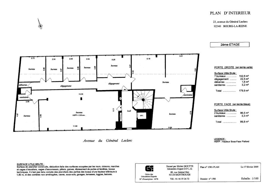
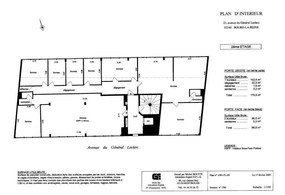
302 m²
Divisible dès 120 m²
160 €
HT/HC/m²/an
Disponibilité : Immédiate

Diego MALMEZAT
Description
BUREAUX LUMINEUX ET RATIONNELS
Au centre ville de Bourg la Reine, à proximité du RER B Bourg la Reine et le long de la N20, BNP PARIBAS vous propose à la location des surfaces de bureaux au sein d'un immeuble de bon standing avec ascenseur, non loin des commerces de proximité. Les surfaces sont en bon état, cloisonnées, pré câblées et prêtes pour y installer vos futurs bureaux. Proche de toutes commodités et facilement accessible, vous bénéficierez en plus d'une belle visibilité depuis la Nationale 20. Des parkings en sous-sol.
Ensemble immobilier de 1302 m² non IGH répartis sur 3 niveaux, restant 434 m². Dominant largement la Nationale 20, l'immeuble est situé le long de l'Avenue Général Leclerc à proximité de la Gare RER B - Bourg la Reine. Un cadre de travail exceptionnel à 12 minutes de la Porte d’Orléans et à 4 minutes de l'A86.
L'immeuble bénéficie d’une visibilité sans égale et d'une localisation exceptionnelle en hyper centre ville. Des plateaux de bureaux courants de 434 m² par niveaux très lumineux, traversants et très fonctionnels avec un capacitaire de 40 personnes par étage. Un grand hall d'accueil sécurisé. Un ascenseur PMR. Des sanitaires privatifs et deux points d'eau par étage.
Plus de 200 m² d'espaces extérieurs et 30 emplacements de parkings en sous-sol.
Services & prestations
Aménagements
-
Accueil : Espace d'attente
-
Aménagement des bureaux : Cloisonnés/Ouverts
-
Sanitaires : Privatif(s)
Equipements
-
Ascenseurs : 1
-
Plinthes techniques périphériques
-
Type de chauffage : Individuel
Prestations de service
-
Sécurité : Contrôle d'accès
Extérieurs
-
Linéaire de façade : SUR RN 20
Normes, Certifications et Labels
-
Catégorie ERP : 5
Type / Etat du bâtiment
-
Etat de l'immeuble : Etat d'usage
-
IGH / Code du travail : Code du travail










