




EMBLEM
7 Allée de l'Arche
92400 Courbevoie
5 940 m²
Divisible dès 694 m²
à partir de 320 €
HT/HC/m²/an
Disponibilité : immédiate

Alexandre SCUOTTO
Description
A 350m du Hub de transports de la Défense (accès direct par le CNIT), dans l'extension du Parvis de la Défense (quartier des Faubourgs de l'Arche), la TOUR EMBLEM a fait l'objet d'une très lourde réhabilitation (changement de façade...). Certification BREEAM RFO niveau Very Good / Label Wiredscore
EMBLEM est un immeuble de bureaux entièrement restructuré d’environ 27 300 m² au Cœur de La Défense.
Certifications: BREEAM Véry Good, Wiredscore, Smart Building ready (BOS)
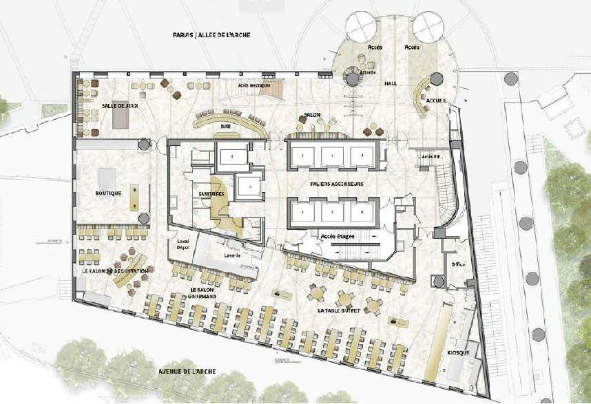
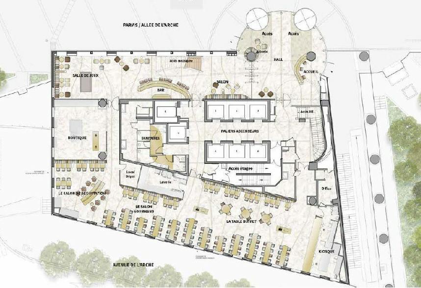
EMBLEM s’élève sur 25 étage et se compose :
- D’un socle de services en rez de dalle 1, rez de dalle et rez de dalle +1 regroupant le hall, l’accueil, la bibliothèque, les bars et restaurants ainsi qu’un espace bien-être et un espace polyvalent.
- De plateaux de bureaux d’environ 1184m² du 2ème au 25ème (Capacitaire de 89 personnes par étage et 2139 personnes au global)
- D’un rooftop exceptionnel de 434m² (effectif autorisé de 200 personnes)
- 429 Emplacements de parking dont 14 électriques
- 50 Emplacements de vélos
Services & prestations
Aménagements
-
Effectif théorique : 2136 personne(s)
-
Espace bien-être
-
Espaces Co-working
Equipements
-
Climatisation
-
Faux plancher : 11,00 cm
-
Monte-charge
Hauteurs
-
Hauteur sous-plafond : 2,90 mètre(s)
Prestations de service
-
Cafétéria
-
Conciergerie
-
Fitness
-
Parking : 429 Places
-
Restauration
-
Sécurité : Contrôle d'accès
Extérieurs
-
Terrasses - jardins : ROOF TOP 434 m²
Normes, Certifications et Labels
-
Certification : BREEAM
Type / Etat du bâtiment
-
Etat de l'immeuble : Rénové
-
Etat des locaux : Restructuré avec PC
-
Immeuble indépendant
Informations complémentaires
-
Gestion technique centralisée










