




HELYS
1 Quai Marcel Dassault
92150 Suresnes
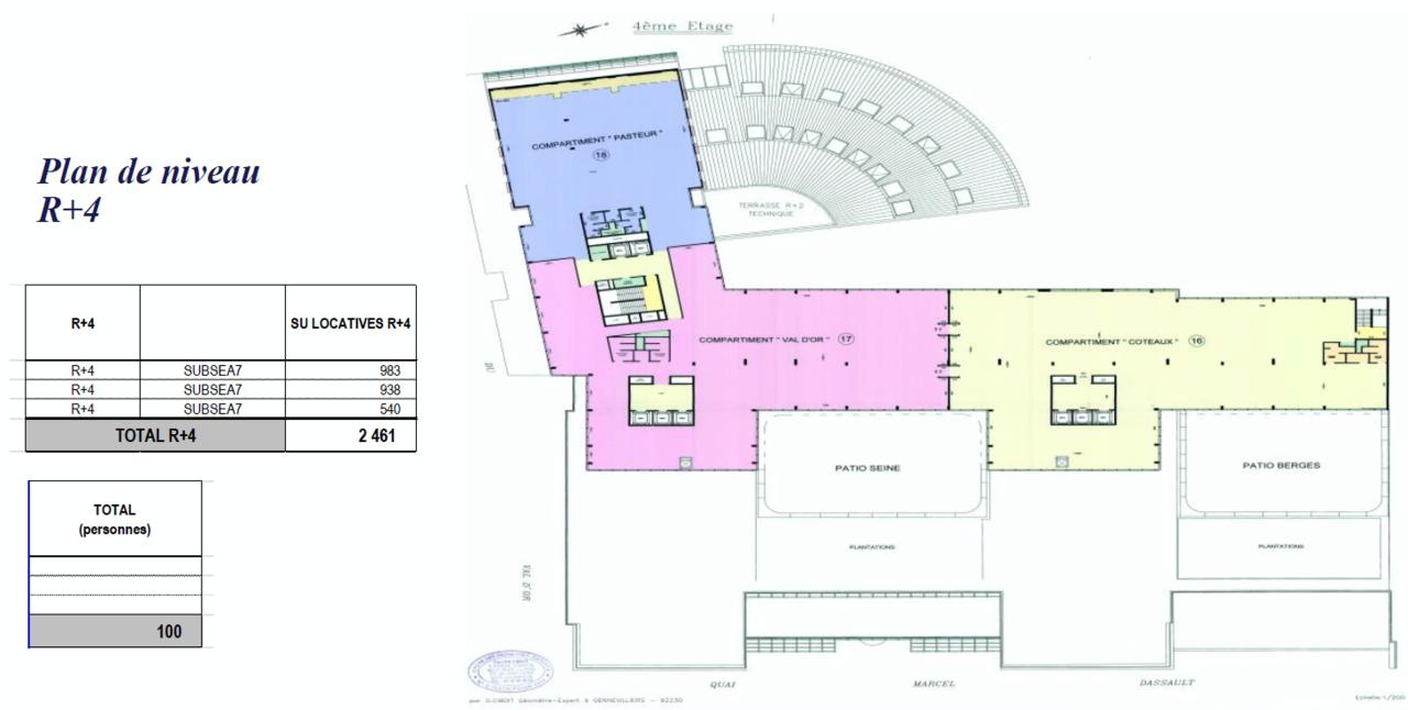
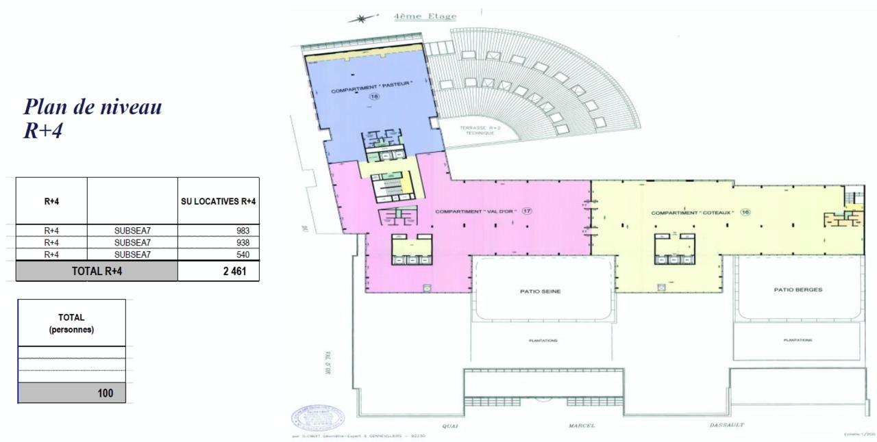
17 949 m²
Divisible dès 620 m²
à partir de 235 €
HT/HC/m²/an
Disponibilité : Immédiate

Nicolas FONTANEL
Description
Situé sur les berges de Seine à Suresnes, sur l’emplacement historique des ateliers de l’aviateur Louis Blériot (créés en 1915), nous vous proposons à la location 20 076 m² divisibles de bureaux.
Signé par l’agence d’Architectes ATELIER 2M et par le cabinet BENOIT, cet immeuble conjugue transparence, fluidité et modularité.
HELYS offre de grands plateaux parfaitement configurés pour des agencements en open-space (18m de profondeur) ou en bureaux cloisonnés.
Les prestations techniques offrent un confort de travail remarquable et dispose d’une offre de services complète et variée.
Hall d’accueil double hauteur lumineux et confortable donnant sur le patio paysager.
Services & prestations
Aménagements
-
Complexe Salle de réunion
Equipements
-
Gestion technique centralisée
Prestations de service
-
Restauration : 400 Places
-
Sécurité : Contrôle d'accès
Extérieurs
-
Aire de livraison
-
Terrasses - jardins
Normes, Certifications et Labels
-
Certification : HQE
Type / Etat du bâtiment
-
Etat de l'immeuble : Rénové










