




15 Quai Gallieni
92150 Suresnes
825 m²
2 000 000 €
HT/HD
Disponibilité : 3 mois après accord

Thomas BUISSON-TOURNIER
Description
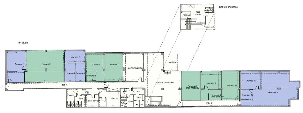
Au sein de l'ensemble Les Rives de Bagatelle, face au Pont de Suresnes, BNP Paribas Real Estate vous propose à la vente un vaste plateau à usage de bureaux situé au 1er étage, avec accès indépendant sur rue au RDC.
Il développe une surface Carrez totale de 824,64 m² (pour une surface utile brute de 831,24 m²). Une terrasse accessible d'environ 12 m² et 20 places de parkings complètent ce bien.
La configuration idéale du plateau permet une grande modularité d'aménagement. Les espaces de travail en mono exposition donnent sur le quai Gallieni, la Seine et le Bois de Boulogne, et bénéficient d'une belle luminosité naturelle.
Ce bien offre ainsi un cadre de travail agréable, aux portes de Paris, et dispose d'une accessibilité efficace avec plusieurs lignes de bus, le tramway et 2 lignes de transilien à moins de 15 minutes à pied.
Services & prestations
Aménagements
-
Accueil
-
Aménagement des bureaux : Cloisonnés/Ouverts
Equipements
-
Climatisation : Réversible partielle
-
Faux plafond
-
Plinthes techniques périphériques
Prestations de service
-
Sécurité : Vidéo-surveillance
Extérieurs
-
Terrasses - jardins : Terrasse accessible
Type / Etat du bâtiment
-
Etat des locaux : Rénové Surface entièrement rénovée
-
Immeuble copropriété
Informations complémentaires
-
Entrée indépendante sur rue, Salle serveur dédiée
-
1 sortie de secours, Coin cuisine / Douche
-
Escalier intérieur privatif










