




24 Rue Gambetta
92150 Suresnes
4 191 m²
26 000 000 €
HT/HD
Disponibilité : Immédiate

Emilie PERRIN
Description
Le Belvédère, une opportunité rare dans un cadre unique à Suresnes
A 200 m environ du Tramway T2 et à toute proximité du Centre Ville de Suresnes, BNP Paribas Real Estate vous propose un bel immeuble indépendant à usage principal de bureaux, entièrement restructuré en 2023 et labellisé : Le Belvédère.
Doté d'une façade vitrée toute hauteur laissant entrer la lumière, de plateaux atypiques avec des hauteurs sous plafond jusqu'à 4,60 m et d'un magnifique rooftop avec une vue dégagée vers La Défense et Paris, cet immeuble permet une modularité des espaces parfaitement adaptée aux nouveaux modes de travail.
Il vous offre une configuration de grande qualité :
- Un bel espace paysager dès votre arrivée
- Un espace d'accueil aux belles proportions
- Un plateau en rez-de-jardin ouvert avec un accès direct au patio paysager
- Des espaces de travail lumineux, accueillants et entièrement modulables selon vos besoins
- De larges circulations et des mezzanines idéales pour des espaces collaboratifs
- Une terrasse au R+1 et un dernier étage bénéficiant d'un rooftop exceptionnel.
Le bien est détenu dans le cadre d'une propriété volumétrique.
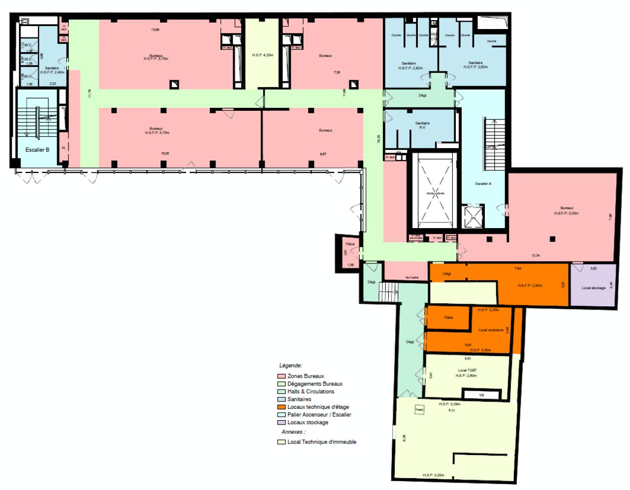
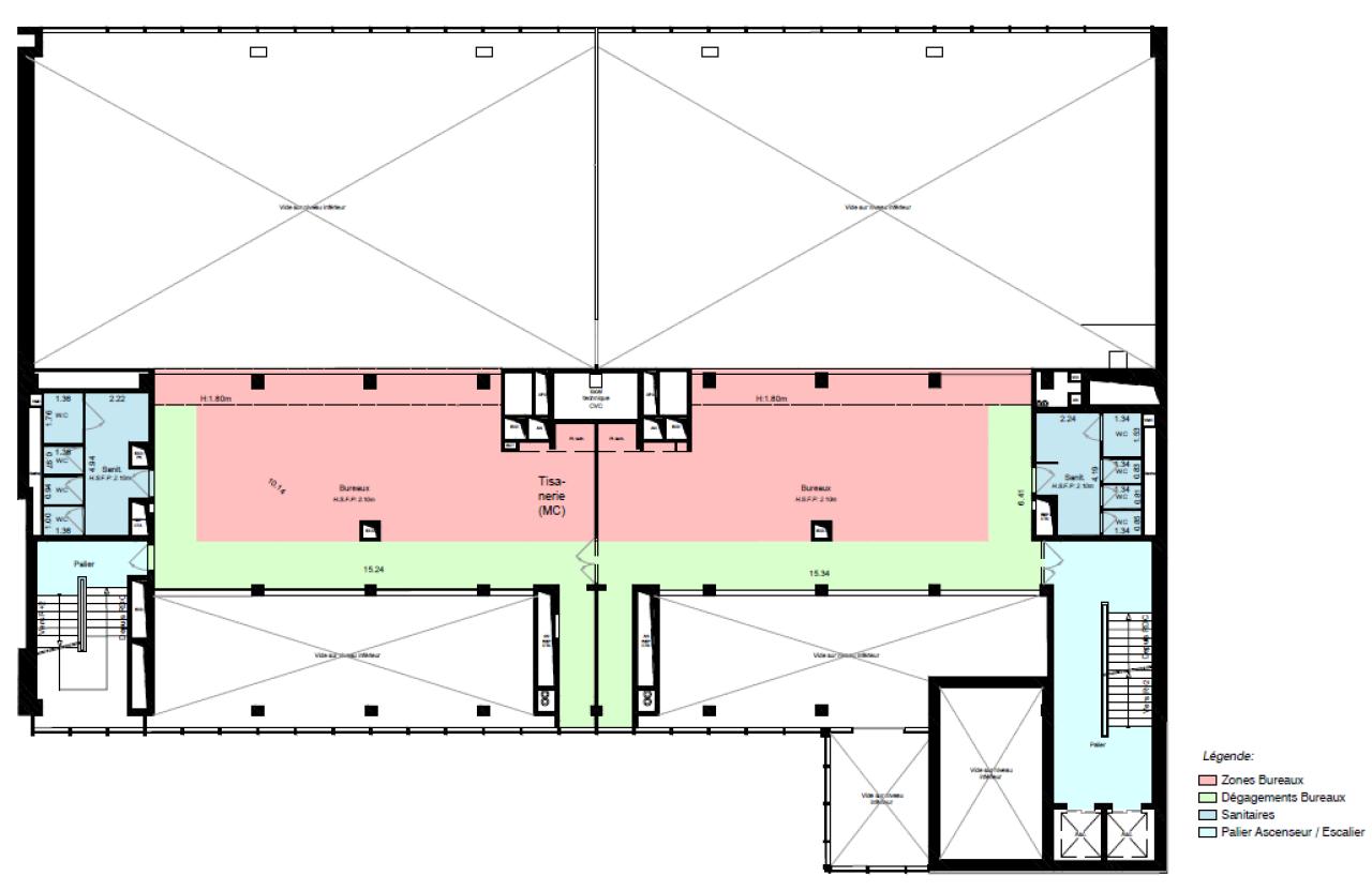
* Tableau des surfaces : "Autres services" = locaux vélos
Services & prestations
Aménagements
-
Accueil
Equipements
-
Ascenseurs : 2
-
Climatisation : Double flux
-
Câblage informatique : Fibre optique
-
Faux plancher : Sauf les mezzanines
Hauteurs
-
Hauteur sous-plafond : Jusqu'à 4,60 m (rdc, R+2 et R+4)
Prestations de service
-
Sécurité : Contrôle d'accès, Vidéo-surveillance + système anti-intrusion
Extérieurs
-
Terrasses - jardins : Rooftop & terrasse au R+1
Normes, Certifications et Labels
-
Certification : HQE
Type / Etat du bâtiment
-
Etat de l'immeuble : Restructuré avec PC
-
Immeuble indépendant
-
Type d'immeuble : Grand Plateau avec mezzanine
Informations complémentaires
-
Tisanerie sur chaque lot, Vestiaires
-
Monte-voitures










