




Location Bureau 3 263 m²
34130 Mauguio
3 263 m²
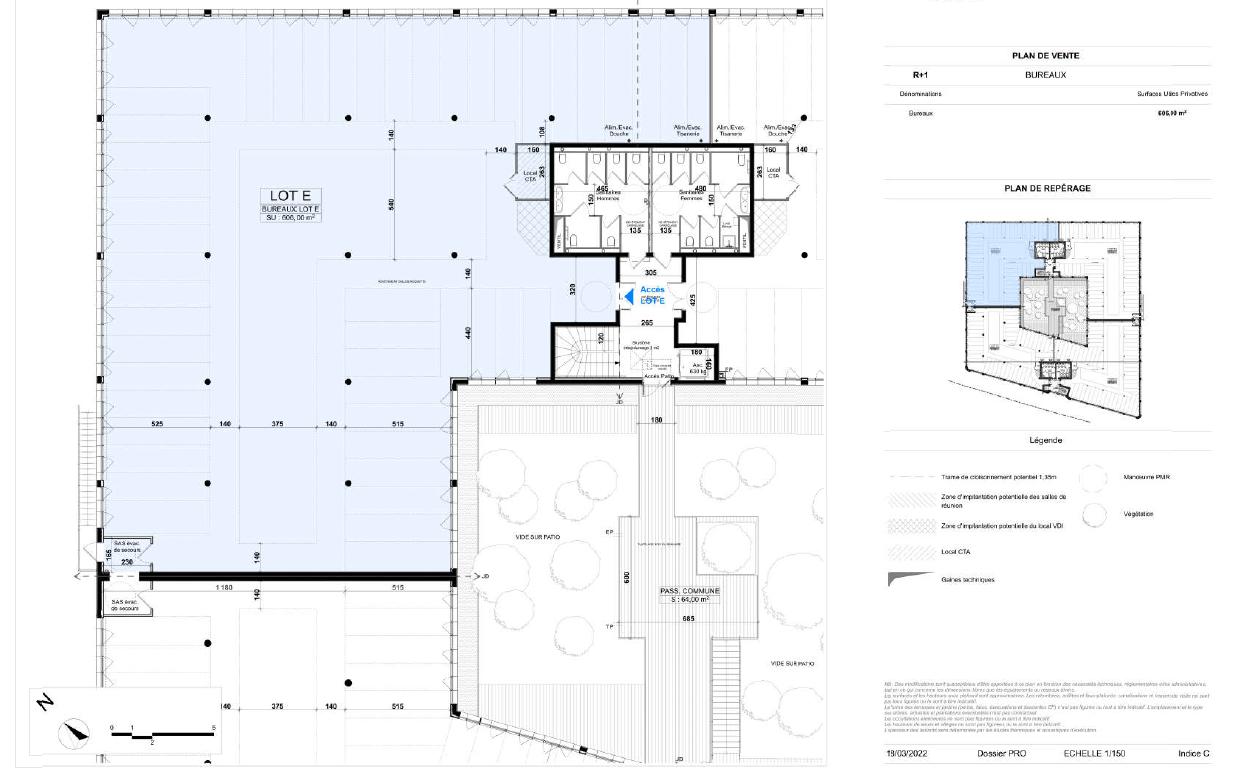
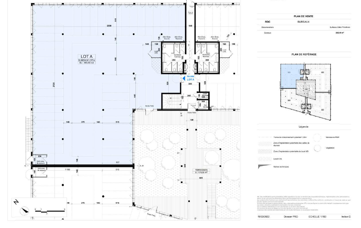
Divisible dès 591 m²
à partir de 170 €
HT/HC/m²/an
Disponibilité : Immédiate

Marie Laure ROLANDO
Description
MONTPELLIER EST - FREJORGUES EST II - LE CUBE - BUREAUX A LOUER
Nous vous proposons à la location des surfaces de bureaux neufs sur le secteur de Fréjorgues Est.
A louer, Surface de 3 263 m² de bureaux neufs divisible par plateaux à partir de 591 m² env. au Nord de la ZAC « Les portes de l'Aéroport », à Fréjorgues Est au sein du bel immeuble récemment livré Le Cube.
Le Cube offre de belles prestations : open-space, faux plafonds, climatisation double flux, ascenseur, éclairage par LED, et son patio central.
Il s'insère dans un ensemble d'immeubles tertiaires riche et varié renforçant l'attractivité et la visibilité du projet. La proximité des noeuds de communication est un atout majeur pour l'accessibilité du projet pour chacun, qu'importe le mode de déplacement.
Le Cube s'inscrit dans un ensemble immobilier de qualité, où se mêlent des architectures originales et ambitieuses.
Immeuble Code du travail avec possibilité de classement ERP selon demande et étude spécifique.
Disponibilité Immédiate !
Véritables vitrines commerciales, les parcs d'activités de Fréjorgues Est et Ouest sont situés sur la commune de Mauguio.
Grâce à sa position stratégique au sein de l'air urbaine montpelliéraine, Fréjorgues attire de nombreuses enseignes nationales et internationales qui viennent y trouver une forte visibilité auprès des habitants des communes limitrophes de Montpellier qui y passent quotidiennement mais également des nombreux salariés présents sur les parcs avoisinants (parc de l'aéroport, Port-Marianne, PIOM)
Ce sont plus de 400 entreprises qui se sont installées sur les 67 hectares qui composent ce parc d'activité.
À quelques minutes de l'autoroute A9, de l'aéroport et de la gare TGV, les parcs de Fréjorgues sont facile d'accès.
Idéalement situé, à quelques minutes de l'autoroute A9, de la nouvelle gare TGV Sud de France et de l'aéroport.
LOTS EGALEMENT DISPONIBLES A LA VENTE
Accessibilité :
Gare Montpellier Sud de France à 8 minutes
Gare Saint Roch à 15 minutes
Autoroute A709 à 6 minutes et A9 à 8 minutes
Aéroport de Montpellier à 6 minutes
Bus n°28
Tramway ligne 3 à 6 minutes (via bus/voiture)
Services :
150 places de stationnement en extérieur
Une entrée unique se connectant facilement au patio préservé, ombragé et végétalisé
Immeuble labelisé BREEAM Very Good
Emplacement stratégique
Services & prestations
Aménagements
-
Accès Pers. Mobilité Réduite
-
Aménagement des bureaux : Espaces Ouverts
-
Effectif théorique : 493 personne(s)
-
Sanitaires : Parties communes
Equipements
-
Ascenseurs : 630 kg
-
Climatisation : Réversible
-
Distribution climatisation : Ventilo convecteur en plafonnier
-
Eclairage Bureaux : Luminaires encastrés LED
-
Faux plafond : Dal. fibres minéral. dalles acoustiques
-
Fenêtres : Aluminium
-
Sol bureaux : Moquette
Hauteurs
-
Hauteur sous-plafond : 2,65 mètre(s) en étage
Prestations de service
-
Fitness : A proximité
-
Parking : 150 Places dont 3 PMR
Extérieurs
-
Terrasses - jardins : Patio centrale + terrasses
Normes, Certifications et Labels
-
Catégorie ERP : Possibilité d'ERP
-
Certification : BREEAM
Type / Etat du bâtiment
-
Etat de l'immeuble : Neuf
-
Etat des locaux : Neuf
-
Immeuble indépendant
Informations complémentaires
-
Fibre optique, Vitrage à contrôle solaire
-
Brise-soleil métallique
-
Ventilation hygiénique par traitement d'air double-flux










