




216 Rue Charles Nungesser
34130 Mauguio
1 912 m²
Divisible dès 110 m²
à partir de 264 264 €
HT/HD
Disponibilité : Immédiate

Caroline DE BOISGELIN-ABECASSIS
Description
MONTPELLIER - L'ARCHARÈS - FREJORGUES OUEST - BUREAUX NEUFS A VENDRE
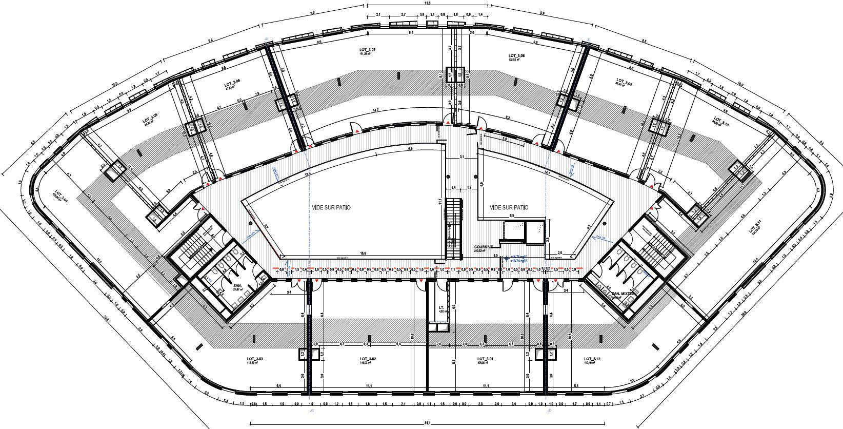
A vendre, dans un immeuble neuf, bureaux de 1 912 m² env. divisibles à partir de 110 m² env.
Idéalement situé aux abords de grandes infrastructures telles que l’aéroport Montpellier Méditerranée, l’A709, l’A9, la gare Sud de France, des lignes de bus et du tramway ligne 3.
Plateaux de bureaux livrés équipés (sol souple grand passage, peinture en périphérie, climatisation, courants forts, courants faibles en attente).
A VENDRE - FREJORGUES OUEST - L'ARCHARÈS
Au sein d'une zone majoritairement commerciale, dans un immeuble neuf, , venez découvrir cet immeuble tertiaire de bureaux avec ossature métallique, totalement clos et verduré.
Ces locaux sont idéalement situés aux abords de grandes infrastructures telles que l'aéroport Montpellier Méditerranée, l'A709, l'A9, la gare Sud de France, des lignes de bus et du tramway ligne 3.
L'Archares est un projet conçu autour de l'idée de souplesse, de flexibilité, tant dans son organisation spatiale intérieure que dans sa façade courbe reprenant le dessin particulier du parcellaire en éventail.
OFFRE COMMERCIALE EXCLUSIVE DE SEPTEMBRE :
- Frais de notaires offerts
- 1 parking sur 3 offert
- 0.5% HT/HT de commission
Possibilité d'aménagement complet d'un niveau de plateaux sous forme d'un montage clés en mains.
Disponibilité immédiate
ACCESSIBILITÉ :
A9 à 5 minutes
Gare Sud de France à 5 minutes
Bus Ligne 107 - Rond Point de la Figuière à 650 mètres qui dessert la station de tramway ligne 3, arrêt Boirargues
A 20 mn à pied de la station de tramway ligne 3, arrêt Boirargues
Aéroport Montpellier Méditerrannée à 5 minutes
Services & prestations
Aménagements
-
Accueil
-
Accès Pers. Mobilité Réduite
-
Effectif théorique : 200 personne(s) 1/16
Equipements
-
Ascenseurs : 2
-
Climatisation
-
Câblage informatique : Courants forts, courants faibles en attente
-
Sol bureaux : Sol souple
Prestations de service
-
Conciergerie
-
Parking
-
Sécurité : Site clos et sécurisé
Extérieurs
-
Terrasses - jardins : Patio
Normes, Certifications et Labels
-
Catégorie ERP : 5
Type / Etat du bâtiment
-
Etat de l'immeuble : Neuf
-
Etat des locaux : Neuf
-
IGH / Code du travail
-
Immeuble indépendant
Informations complémentaires
-
Parc Moto, Salle de conférence
-
Local vélos, Ossature métallique
-
Commerce en RDC livré brut, vitrine posée, Site Clos et verduré










