




Location Bureau 1 383 m²
34000 Montpellier
1 383 m²
Divisible dès 143 m²
à partir de 145 €
HT/HC/m²/an
Disponibilité : Immédiate

Marie Laure ROLANDO
Description
BUREAUX A LOUER - MONTPELLIER EST - PARC EURÊKA - ARCHIMÈDE
A louer, 1 380 divisibles à partir de 143 m² de bureaux dans l'immeuble Archimède situés au cœur du Parc Eurêka à l'Est de Montpellier.
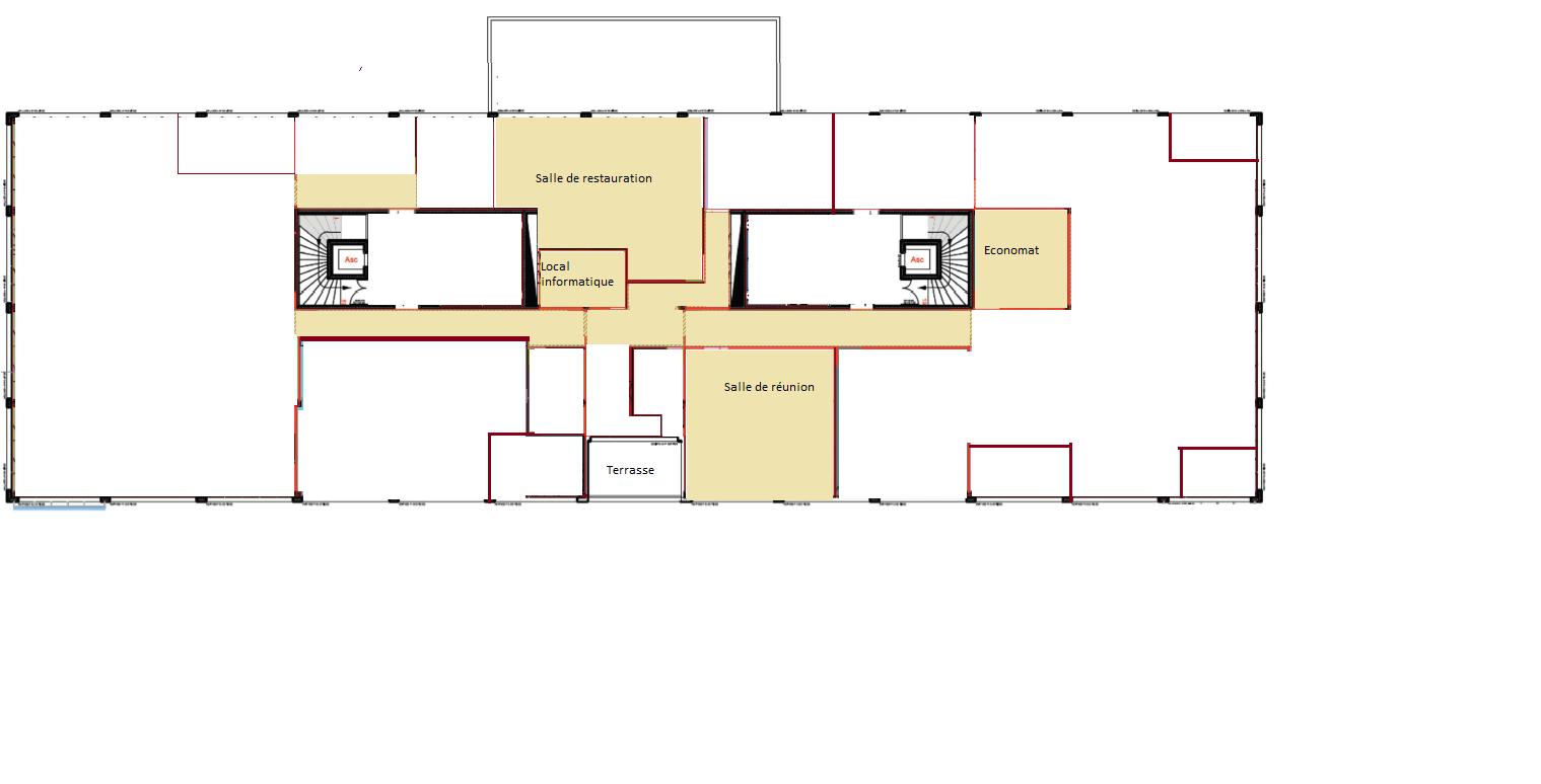
Bureaux aménagés en majorité en open-space bénéficiant de salles de serveurs, de salles d'archives et de 2 espaces cuisine.
Desservi par les transports en commun et disposant de places de parkings privatives intérieures et extérieures.
Espaces verts soignés.
LOCATION BUREAUX - MONTPELLIER EST - PARC EURÊKA - ARCHIMÈDE
À l'Est de Montpellier sur le parc tertiaire Eurêka, découvrez ces bureaux à louer de 1 380 m² divisibles à partir de 143 m², dans l'immeuble indépendant ARCHIMÈDE.
Situés entre le R+1 et le R+3, sur un site clos et sécurisé via un contrôle d'accès, ces locaux bénéficient de prestations de qualité.
Aménagés en majorité en open-space, l'offre est composée de salles de serveurs, de salles d'archives et de 2 espaces cuisine et de bureaux cloisonnés.
Cette offre est accompagnée de places de parking privatives intérieures et extérieures pour ses utilisateurs ainsi que des bornes électriques.
Entièrement climatisés, ces bureaux sont équipés de brise-soleil, de faux plafond type dalles en fibre minérale et de luminaires encastrés. Ces prestations sont complétées par la présence de parties communes soignées et d'un accès direct à l'ascenseur.
L'environnement du bâtiment est soigné et verdoyant, vous pourrez ainsi profiter d'une vue dégagée et arborée.
Ces bureaux sont situés au coeur du parc Eurêka, secteur dynamique économiquement et architecturalement. Situé à l'Est de Montpellier, le Parc Eurêka bénéficie d'une image innovante et internationale.
Il jouit de sa proximité avec le parc du Millénaire, de ses services et infrastructures. Les immeubles sont en très grand nombre signé par des architectes de renom.
L'innovation est au coeur des entreprises présentes avec notamment la présence d'incubateurs tels que Cap Oméga, MIBI et BIC Par ailleurs ce dernier se place dans le top 5 mondial Ubi Global).
La zone est équipée de la fibre optique et des télécommunications haut débit et de nombreuses infrastructures y sont présentes : crèche, restaurants, commerces de proximité, fitness, piscine ou encore le centre commercial Odysseum à quelques minutes.
Desservi par les transports en commun, ARCHIMÈDE est situé à quelques minutes de l'A 709.
ACCESSIBILITÉS :
- Gare Montpellier Saint-Roch à 13 minutes
- Gare TGV Sud de France à 9 minutes
- Aéroport Montpellier Méditerranée à 9 minutes
- Bus n°9, 16 et 51 arrêts « Apollo » et « Eurêka » à 3 minutes
- Autoroute A 709 Sortie 29 à 5 minutes
Services & prestations
Aménagements
-
Accès Pers. Mobilité Réduite : Rampe d'accès et ascenseur
-
Aménagement des bureaux : Openspace et 2 bureaux cloisonnés
Equipements
-
Ascenseurs
-
Climatisation : Réversible 2 zones, Réversible 2 zones
-
Câblage informatique : Plinthes techniques en périphérie
-
Eclairage Bureaux : Luminaires encastrés
-
Faux plafond : Dal. fibres minéral.
-
Sol bureaux : Moquette
Prestations de service
-
Restauration : A proximité, A proximité
Extérieurs
-
Terrasses - jardins : Espaces verts entretenus, Espaces verts entretenus
Type / Etat du bâtiment
-
Etat de l'immeuble : Etat d'usage, Etat d'usage
-
Immeuble indépendant : Oui, Oui
Informations complémentaires
-
Brises soleil, Local à vélos sécurisé, Local à vélos sécurisé
-
Bornes électriques, Bornes électriques
-
Terrasse et Kitchenette au R+3










