




Location Bureau 152 m²
34000 Montpellier
152 m²
170 €
HT/HC/m²/an
Disponibilité : Immédiate

Rodolphe CHEVALLIER
Description
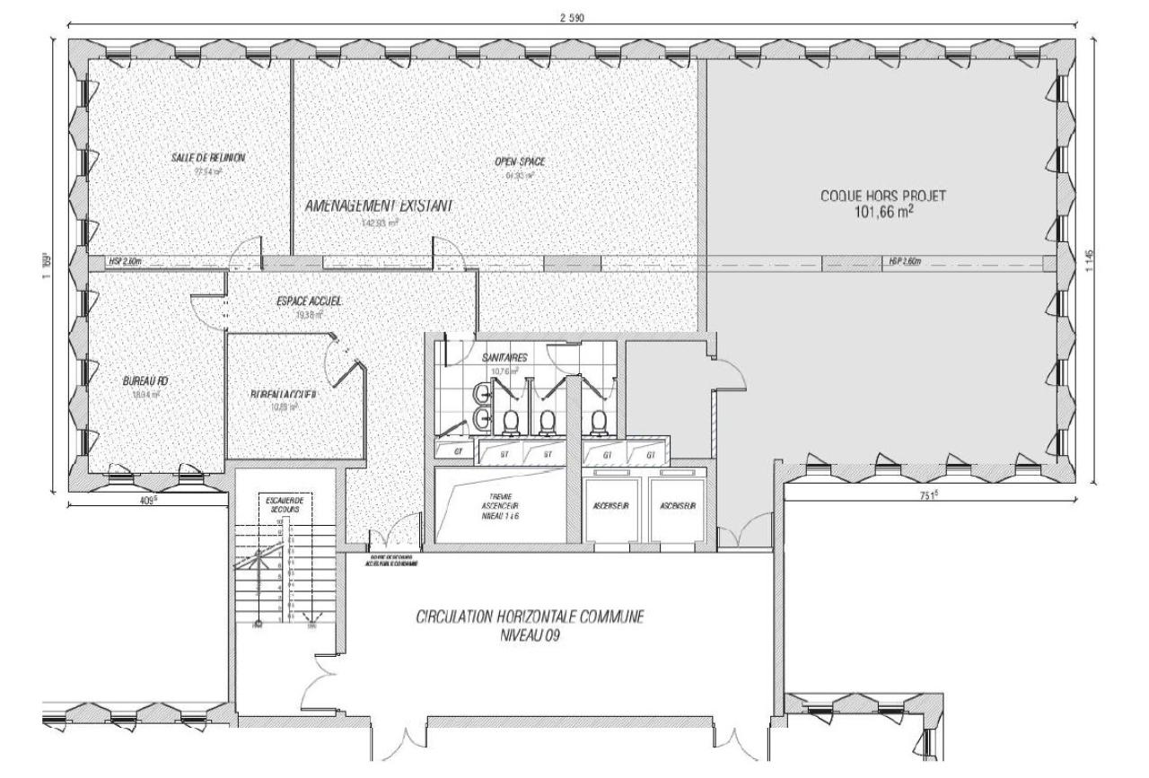
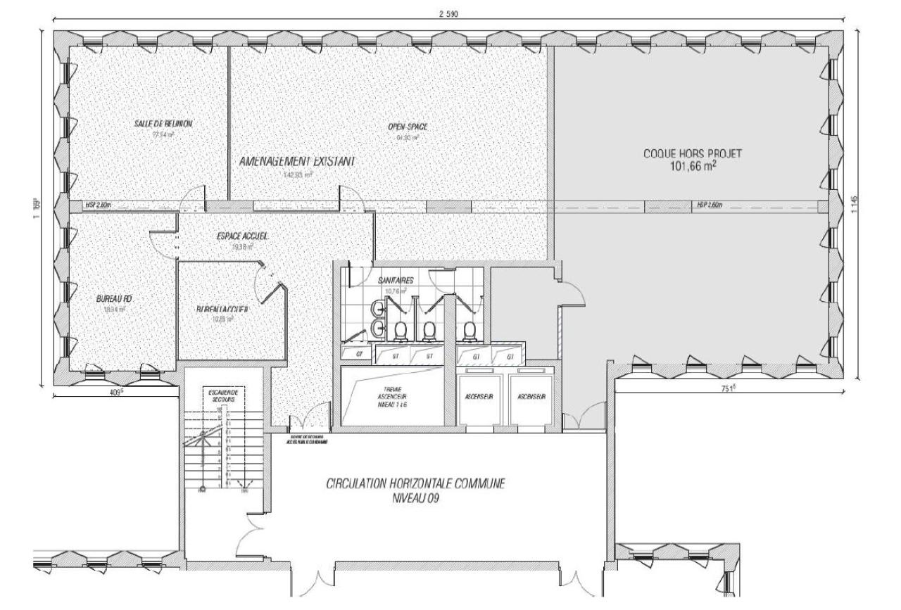
MONTPELLIER CENTRE - TOUR DU POLYGONE - BUREAUX A LOUER
Nous vous proposons cet espace de bureaux à louer, situés au 9ème étage de la Tour du Polygone, immeuble du centre-ville de Montpellier
A louer au centre-ville de Montpellier, espace de bureaux d'une surface de 151 m² au R+9 de la Tour du Polygone.
Situés à quelques pas du Centre Commercial Polygone, de la Place de la Comédie et du quartier Antigone, ce lot de bureaux bénéficient d'une excellente visibilité et d'un emplacement prime, au coeur du centre-ville de Montpellier.
Ces bureaux climatisés sont équipés des prestations suivantes :
Salles de réunion
Open space (65 m²)
Espace tisanerie / bureau d'accueil
Un bureau
Faux plafond en dalles de fibre minérale
Luminaires encastrés
Sanitaires privatifs
Ascenseur
PC Sécurité en bas de l'immeuble
Disponibilité : immédiate !
Le centre-ville de Montpellier, surnommé « Ecusson », est un quartier mixte entièrement piéton et plein de charme. Des lieux emblématiques tels que la Place de la Comédie, l'église Saint Roch ainsi que les nombreux commerces et restaurants en font un cadre de travail très agréable. Le centre-ville est un emplacement stratégique desservi par la Gare Saint
Roch et les 4 lignes de tramway. En plein réaménagement, le coeur de ville a vocation à devenir plus arboré grâce notamment aux travaux de réfection de la Place de la Comédie et de l'esplanade. C'est le quartier de prédilection des notaires, avocats et médecins grâce au
palais de justice et à la faculté de médecine, la plus ancienne d'Europe (800
ans).
Services & prestations
Aménagements
-
Accueil
-
Accès Pers. Mobilité Réduite
-
Aménagement des bureaux : Cloisonnés/Ouverts
-
Sanitaires : Privatif(s)
Equipements
-
Ascenseurs
-
Climatisation : Simple flux froid
-
Câblage informatique
-
Eclairage Bureaux : Luminaires encastrés Néons
-
Faux plafond
-
Faux plancher
-
Plinthes techniques périphériques
-
Revêtement mural : Peinture
-
Sol bureaux : Moquette
-
Type de chauffage : Collectif
Normes, Certifications et Labels
-
Catégorie ERP
Type / Etat du bâtiment
-
Etat de l'immeuble : Etat d'usage
-
Immeuble copropriété
Informations complémentaires
-
Bureau d'accueil et espace tisanerie
-
Salle de réunion










