




Location Bureau 808 m²
34000 Montpellier
808 m²
Divisible dès 391 m²
à partir de 180 €
HT/HC/m²/an
Disponibilité : Immédiate

Helene DEHORS
Description
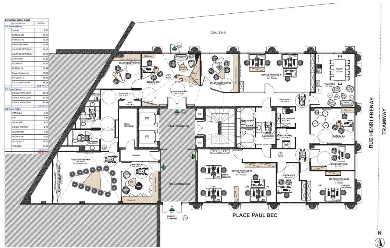
MONTPELLIER CENTRE - ANTIGONE - LES ECHELLES DE LA VILLE - BUREAUX A LOUER
Au centre de Montpellier au sein du quartier Antigone, découvrez ces bureaux de 390 et 417 m² à la location en rez-de-chaussée et R+1 de l'immeuble sécurisé "Les Echelles de la Ville".
MONTPELLIER CENTRE - ANTIGONE - LES ECHELLES DE LA VILLE - BUREAUX A LOUER
Au centre de Montpellier au sein du quartier Antigone, découvrez ces bureaux de 390 et 417 m² à la location au rez-de-chaussée et R+1 de l'immeuble sécurisé "Les Echelles de la Ville".
Les futurs collaborateurs pourront bénéficier d'une rénovation de qualité dans ses locaux de bureaux cloisonnées.
L'immeuble dispose de la fibre optique et les bureaux bénéficient de la climatisation connectée au réseau urbain, d'une belle salle de réunion, d'un espace détente et d'une cuisine propice aux échanges conviviaux entre collaborateurs.
8 parkings intérieurs complètent chacun des lots et sont dotés de bornes électriques.
Ces locaux ERP5 offrent un environnement moderne et flexible, parfait pour répondre aux besoins des entreprises.
L'immeuble, bénéficiant de l'accès PMR, est doté d'une grande visibilité en plein centre-ville et d'un environnement de travail de qualité grâce à ses nombreux services à proximité : centre commercial Polygone, restauration, tertiaire, services, etc...
Très bien desservi par les transports en commun, la ligne 1 du Tramway passe au pied de l'immeuble.
DISPONIBILITES :
Lot RDC : Immédiate
Lot R+1 : Fin avril 2026
N'hésitez pas à nous contacter pour plus de renseignements ou pour convenir d'une visite.
LE SECTEUR ANTIGONE
Conçu par l'architecte catalan Ricardo Bofill en 1978, la majorité des immeubles sont inspirés du style architectural de la Grèce antique.
L'aménagement du quartier s'est achevé au début des années 2000 avec 3 grands équipements : la piscine olympique, la médiathèque centrale Émile Zola et le passage de la ligne 1 du tramway.
Antigone a été la 1ère grande étape dans l'urbanisation du sud-est de la ville près du Lez suivie par l'aménagement du quartier Richter, lui-même suivi vers l'est par le complexe commercial et ludique d'Odysseum et Port-Marianne.
Antigone abrite de des sociétés tertiaires et services d'administrations. Le quartier est vivant et accueille de nombreux commerces de proximité.
ACCESSIBILITE :
Tramway Ligne 1 arrêt "Antigone" au pied de l'immeuble
Gare de Montpellier Saint Roch à 3 min à pied
Gare de Montpellier Sud de France à 12 min
Autoroute A9 à 8 min
Aéroport de Montpellier Méditerannée à 11 min
Services & prestations
Aménagements
-
Accès Pers. Mobilité Réduite
-
Aménagement des bureaux : Cloisonnés
Equipements
-
Climatisation : Réseau urbain
-
Eclairage Bureaux : Leds/luminaire encastrés LED
-
Faux plafond
-
Sol bureaux : Moquette/Parquet
-
Source chauffage : Urbain
Normes, Certifications et Labels
-
Catégorie ERP : 5
Type / Etat du bâtiment
-
Etat des locaux : Rénové
Informations complémentaires
-
Environnement tertiaire, habitat et commerce
-
Bornes de recharges électriques en 2025 sur places de parking
-
Espace cuisine










