




Location Bureau 369 m²
34000 Montpellier
369 m²
163 €
HT/HC/m²/an
Disponibilité : Immédiate

Marie Laure ROLANDO
Description
MONTPELLIER EST - MILLENAIRE II - ODYSSEUM - BUREAUX A LOUER
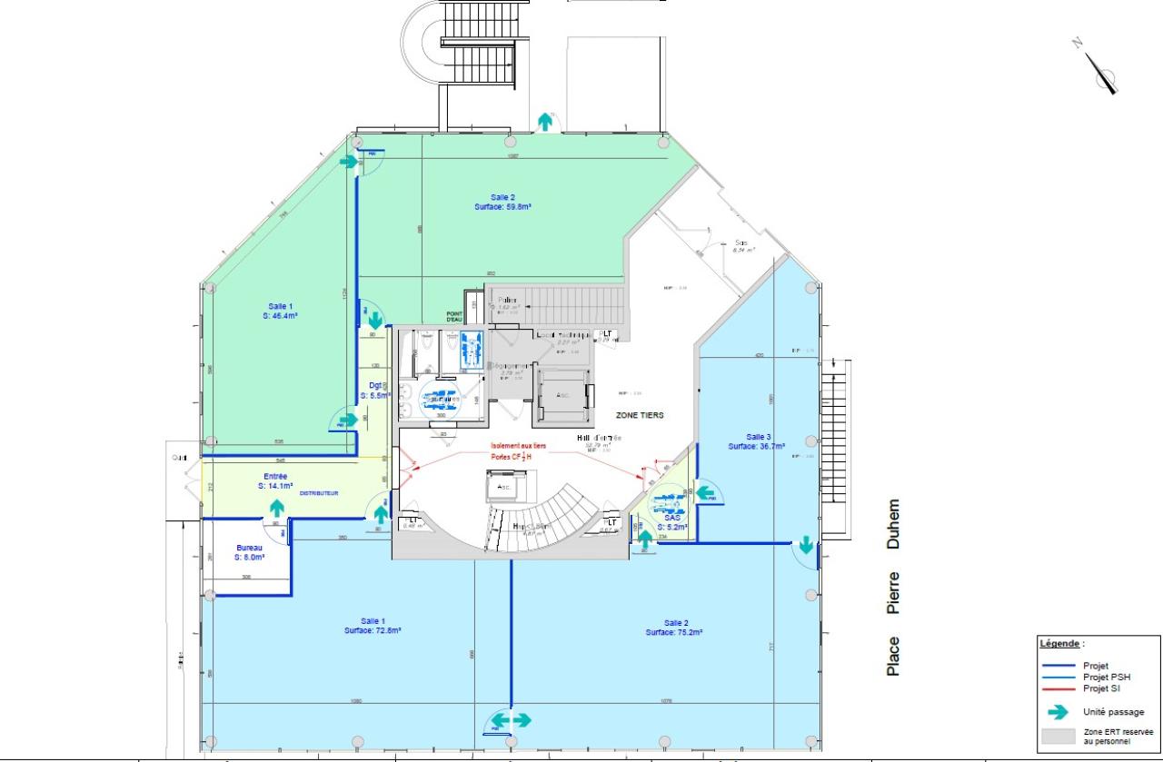
Nous vous proposons à la location ce lot de bureaux d'une surface de 369 m² au RDC de l'immeuble LES CENTURIES I, à proximité immédiate du centre commercial Odysseum, au sein du quartier Millénaire II.
A l'Est de Montpellier, au sein du quartier Millénaire II - Odysseum, nous vous proposons à la location une surface de locaux à usage de bureaux d'une surface de 369 m² en rez-de-chaussée de l'immeuble Les Centuries I.
L'espace, actuellement aménagé en 5 grandes salles de formations cloisonnées, permet une grande modularité et une flexibilité optimum.
LES PRESTATIONS
- Cloisons semi vitrées et sèches
- Climatisation réversible
- Salles de formation
- Faux plafond dalles en fibre minérale
- Pavé led
- Sanitaires en parties communes
- Accessibilité PMR
- Ascenseur
- Sol moquette
Le bien bénéficie également de 13 places de stationnement en extérieur et est catégorisé ERP 5.
DISPONIBILITE : Immédiate !
LE SECTEUR MILLENAIRE II
Plus grand pôle tertiaire de Montpellier, le Parc du Millénaire regroupe 1 125 entreprises et 7 000 salariés sur une surface de plus de 110 hectares. Très dynamique, il accueille toutes typologies d'entreprises (sièges sociaux, TPE, PME, start-ups) et bénéficie de sa proximité avec les parcs Eurêka et Mermoz qui renforce l'activité économique et favorise les partenariats professionnels. Les salariés du parc profitent de nombreux services tels que des restaurants, commerces, fitness, piscine ou encore le Centre Commercial Odysseum à quelques minutes. À proximité immédiate de l'A9, le quartier est desservi par plusieurs lignes de bus et la ligne 1 du tramway.
ACCESSIBILITÉ :
Autoroutes A9/A709 à 5 minutes
Tramway ligne T1 arrêt "Place de France" à 10 minutes à pied
Bus lignes 14 arrêt "Samuel Morse" à 4 minutes à pied, 15 arrêt "Place de France" à 10 minutes à pied
Gare Montpellier Sud de France à 8 minutes
Gare Montpellier Saint Roch à 20 minutes à pied
Aéroport Montpellier Méditerranée à 10 minutes
Services & prestations
Aménagements
-
Accès Pers. Mobilité Réduite
-
Aménagement des bureaux : Cloisonnés 5 grandes salles de formation
-
Sanitaires : Parties communes
Equipements
-
Ascenseurs
-
Climatisation : Réversible
-
Câblage informatique : Salle informatique
-
Distribution climatisation : Autonome
-
Eclairage Bureaux : Luminaires encastrés
-
Faux plafond
-
Sol bureaux : Moquette
Normes, Certifications et Labels
-
Catégorie ERP : 5 Type R










