




Location Bureau 826 m²
35510 Cesson-Sévigné
826 m²
Divisible dès 36 m²
Loyer sur demande
Disponibilité : Immédiate

Geoffroy JOSSEAUME
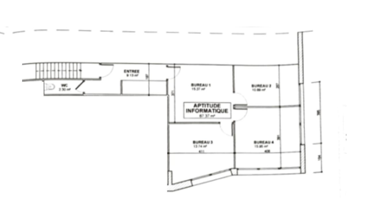
Description
CESSON SEVIGNE
BNP Paribas Real Estate vous propose plusieurs surfaces de bureaux à louer au cœur de l'Ecopole Sud-Est.
Au coeur de l'écopole sud-est, nous vous présentons plusieurs plateaux de bureaux à la location.
Ces locaux, disponibles immédiatement, commencent à partir de 36m² jusqu'à 403m² avec une partie stockage.
Principalement en espace ouvert, il est possible de recloisonner ou de totalement rendre les surfaces ouvertes.
Bon ratio de parkings inclus dans le loyer.
Services & prestations
Aménagements
-
Aménagement des bureaux : Cloisonnés/Ouverts
-
Bureaux cloisonnés
-
Locaux sociaux
-
Sanitaires : Privatif(s)
Equipements
-
Eclairage Bureaux : Luminaires encastrés
-
Faux plafond : Dal. fibres minéral.
-
Plinthes techniques périphériques : RJ45
-
Porte d'accès plain-pied : 1
-
Sol bureaux : PVC / Moquette
-
Sols du bâtiment : Béton
-
Source chauffage : Electrique
-
Type de chauffage : Individuel
Hauteurs
-
Hauteur libre : 3,60 mètre(s)
-
Hauteur sous porte plain-pied : 3,00 mètre(s) x 2.60m
Prestations de service
-
Parking : 11 Places
Extérieurs
-
Aire de livraison
-
Aire de manoeuvre
Structure du bâtiment
-
Couverture : Ardoises
-
Murs : Parpaings
Type / Etat du bâtiment
-
Etat de l'immeuble : Etat d'usage
-
Etat des locaux : Etat d'usage
Informations complémentaires
-
Restaurants, Restaurants, Volets roulants
-
Lignes de bus n°11, 34 et 42ex, Oui
Accès véhicules
-
Accessibilité type véhicules : Tous porteurs










