




Location Bureau 2 400 m²
35760 Saint-Grégoire
2 400 m²
175 €
HT/HC/m²/an
Disponibilité : Immédiate

Geoffroy JOSSEAUME
Description
BUREAUX À LOUER - SAINT GRÉGOIRE
BNP Paribas Real Estate vous propose à la location un très bel immeuble indépendant de bureaux au sein du parc tertiaire Edonia.
Un emplacement valorisant :
BNP Paribas Real Estate vous présente un bel immeuble de bureaux à la location à Saint Grégoire, dans un environnement stratégique à seulement quelques minutes de Rennes.
Le parc Edonia regroupe déjà de nombreuses entreprises de différents secteurs. C'est un pôle tertiaire moderne et reconnu.
Des bureaux pensés pour le confort des occupants:
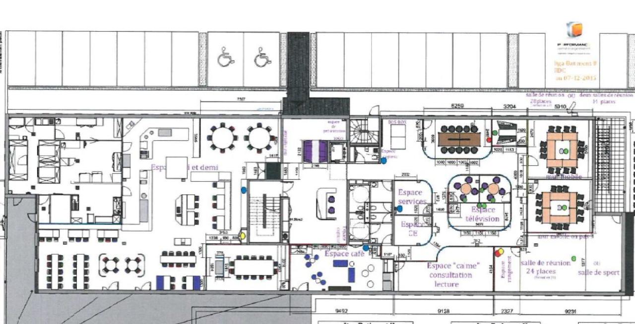
L'immeuble, livré en 2016, développe une surface de 2 400 m² sur trois niveaux en excellent état. Les bureaux sont aménagés en espaces ouverts et fermés ; avec bureaux, open space et salles de réunion. Au RDC, une cafétéria d'une grande capacité.
L'immeuble offre des prestations de qualité : un grand accueil cathédrale au RDC, des escaliers terrasses aux extrémités des surfaces, une climatisation réversible et le câblage informatique.
Accessibilité et dessertes :
L'immeuble possède un parking vélo sécurisé, des emplacements de parkings privatifs en extérieur et en sous sol offrant un excellent ratio parking de 1place/30 m².
Accès immédiat à la rocade permettant de rejoindre facilement le centre de Rennes.
Lignes de bus régulières du réseau STAR : ligne 36 / 78 arrêt Kerguelen. Les bus permettent de relier rapidement les 2 métros.
Services & prestations
Aménagements
-
Accueil : Espace d'attente
-
Accès Pers. Mobilité Réduite
-
Aménagement des bureaux : Cloisonnés/Ouverts
-
Bureaux cloisonnés : Au 1er et 2e étages
-
Sanitaires : Privatif(s) à chaque étage
Equipements
-
Ascenseurs
-
Climatisation : Réversible
-
Distribution chauffage : Réversible
-
Distribution climatisation : Ventilo convecteur en plafonnier
-
Eclairage Bureaux : Luminaires encastrés
-
Faux plafond : Dal. fibres minéral.
-
Fenêtres : Double vitrage
-
Plinthes techniques périphériques
-
Sol bureaux : Moquette
Prestations de service
-
Capacité de restauration : Une grande céfétéria au RDC
-
Parking : En extérieur et en sous-sol
-
Sécurité : Contrôle d'accès
Extérieurs
-
Terrasses - jardins : A l'arrière du bâtiment et à chaque étage
Type / Etat du bâtiment
-
Etat de l'immeuble : Récent
-
Immeuble indépendant
Informations complémentaires
-
Salle de réunion










