




Vente Bureau 82 m²
35760 Saint-Grégoire
82 m²
189 000 €
HT/HD
Disponibilité : Immédiate

Geoffroy JOSSEAUME
Description
SAINT GREGOIRE
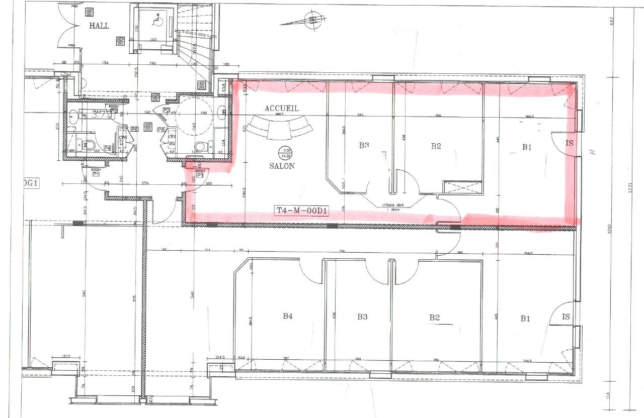
BNP Paribas Real Estate vous propose des bureaux à la vente d'une surface de 82m² en très bon état général.
Le local se compose de la manière suivante : 3 bureaux fermés individuels dont un grand, un espace accueil. Vous avez la possibilité d'installer une cuisine à l'entrée.
Vous bénéficiez une sortie de secours et de plusieurs parkings inclus dans le loyer.
Au coeur d'une zone tertiaire, à proximité immédiate de transport en bus, de services de restauration, de l'axe Rennes - Saint Malo et de la rocade Nord.
Conçu pour répondre aux besoins des entreprises à la recherche d'un parc d'affaires dynamique et innovant, Saint Grégoire offre un réel confort de travail aux entreprises et à leurs collaborateurs.
Bénéficiant d'une excellente visibilité en bordure de la voie express Rennes Saint-Malo, d'un accès rapide au centre-ville et aux différents axes desservant Rennes, vous profiterez de nombreux services : nombreux parkings, restaurants, food trucks, hôtels, salle de spectacle
Services & prestations
Aménagements
-
Bureaux cloisonnés
-
Hall d'accueil
-
Sanitaires : 2 Parties communes
Equipements
-
Climatisation
-
Câblage informatique
-
Faux plafond : Dal. fibres minéral.
-
Fenêtres : Double vitrage
-
Sol bureaux : Parquet
Prestations de service
-
Parking
Type / Etat du bâtiment
-
Immeuble copropriété
Informations complémentaires
-
Ascenseur, Locaux en très bon état
-
Grands bureaux










