




Location Bureau 750 m²
44340 Bouguenais
750 m²
Divisible dès 250 m²
à partir de 120 €
HT/HC/m²/an
Disponibilité : Immédiate

Damien ROBERT
Description
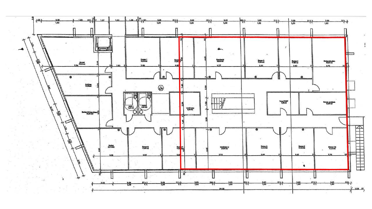
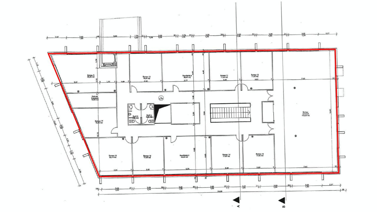
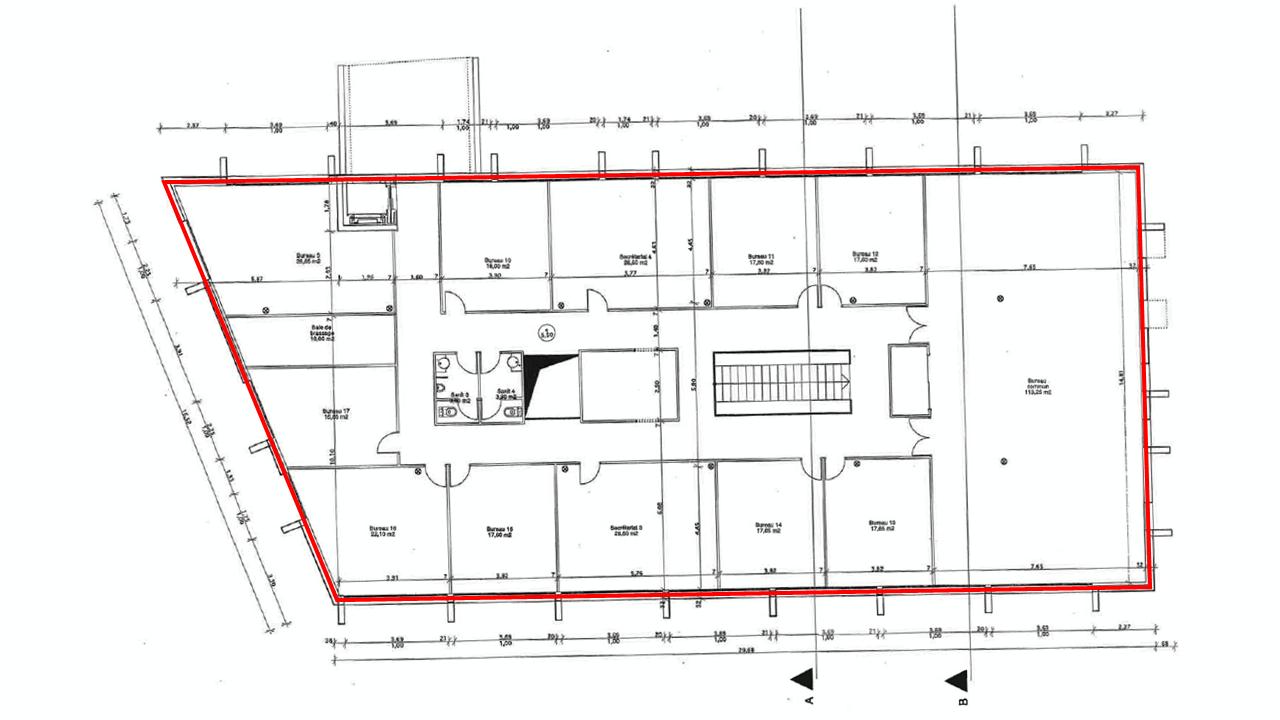
BOUGUENAIS - LA BOUVRE :
BUREAUX REFAITS A NEUF
Très belle surface à louer, lumineuse, entièrement rénovée, bénéficiant d'un aménagement de qualité. L'ensemble est composé d'open spaces, de bureaux cloisonnés et salles de réunion, ainsi qu'une vaste cuisine équipée.
Le plateau R+1, PMR, est accessible par ascenseur.
Nombreuses places de parking privatives.
Au pied du périphérique Sud et proche des bus 78 et 88.
De nombreux services à proximité :
- Restaurants (Courte paille, boulangeries, pizzeria)
- Salle de sport (Orange bleue)
- Grande surface (Lidl)
Services & prestations
Aménagements
-
Accès Pers. Mobilité Réduite
-
Aménagement des bureaux : Open spaces + bureaux fermés
-
Salle informatique : + baie de brassage
-
Sanitaires : Privatif(s)
Equipements
-
Ascenseurs : Pour le plateau du R+1
-
Climatisation : Réversible
-
Câblage informatique
-
Eclairage Bureaux : Pavés LED
-
Faux plafond : Dal. fibres minéral.
-
Plinthes techniques périphériques
-
Sol bureaux : PVC imitation parquet
Prestations de service
-
Sécurité
Type / Etat du bâtiment
-
Etat de l'immeuble : Seconde main
-
Etat des locaux : Très bon état
Informations complémentaires
-
Surface fibrée
-
Grande cuisine / salle de pause










