




Location Bureau 1 891 m²
44000 Nantes
1 891 m²
Divisible dès 945 m²
à partir de 220 €
HT/HC/m²/an
Disponibilité : Immédiate

Anne-Charlotte ZABEL
Description
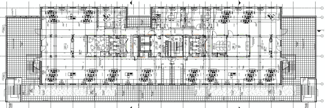
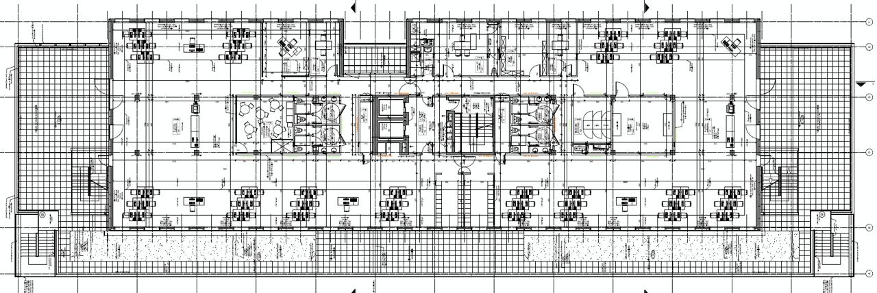
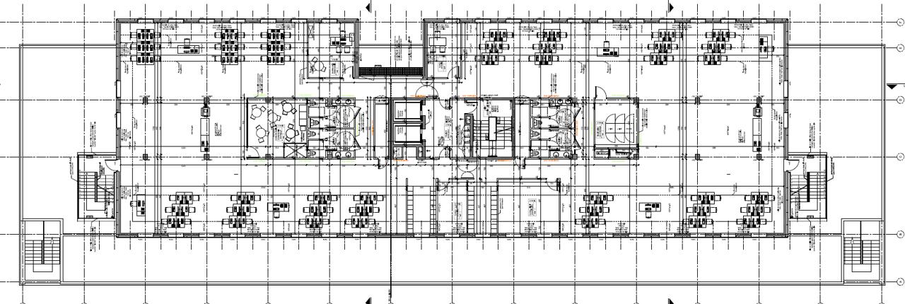
Proche Gare ! 2 grands plateaux de bureaux à louer
À 2 pas de la Gare, accès Sud, BNP PARIBAS REAL ESTATE vous propose à la location 2 grands plateaux de bureaux en étages élevés. Les plateaux sont livrés rénovés : moquette, faux-plafond, éclairage pavés LED, décloisonnement, paliers rénovés / aménagés. La climatisation réversible a été remise à neuf en 2022.
2 belles terrasses privatives au 5è étage pour un total de 258 m² (loyer : 50 HT HC /m²/an).
Ratio parking élevé : 1 place / 30 m².
Capacitaire : 86 personnes par plateau.
Très recherché sur le secteur ! Cet immeuble en prise directe avec le Centre-Ville et la Gare TGV bénéficie d'un environnement privilégié :
- desserte transports en commun haute fréquence, busway, tramway, chronobus ...
- environnement de restauration commerce et services idéal pour les collaborateurs.
- parking public à proximité, pratique pour recevoir vos clients.
Services & prestations
Aménagements
-
Sanitaires
Equipements
-
Ascenseurs
-
Climatisation : Réversible
-
Câblage informatique
-
Douche
-
Eclairage Bureaux : Luminaires encastrés pavés LED
-
Faux plafond : Dal. fibres minéral.
-
Plinthes techniques périphériques : Oui, Oui
-
Sol bureaux : Moquette










