




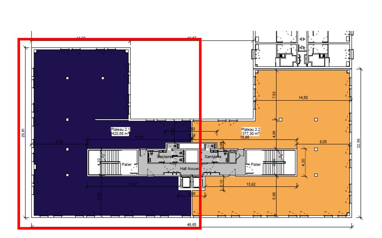
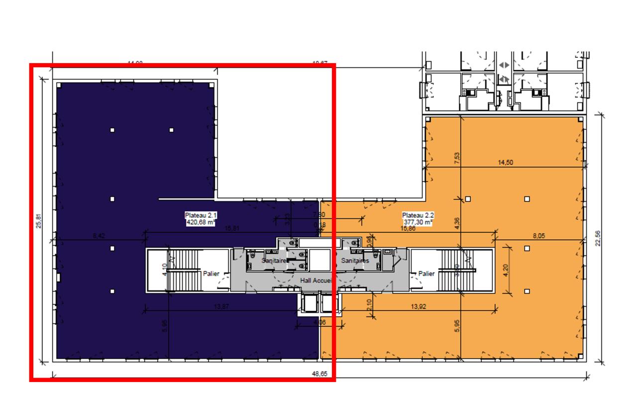
Location Bureau 1 511 m²
49100 Angers
1 511 m²
Divisible dès 161 m²
à partir de 150 €
HT/HC/m²/an
Disponibilité : Immédiate

Christine SERRA
Description
QUAI SAINT SERGE - DERNIERS PLATEAUX NEUFS A LOUER
Très beau programme de bureaux labellisé BREEAM "Very Good". Les bureaux se répartissent sur 6 niveaux, et sont livrés aménagés non-cloisonnés. Chauffage urbain, double flux rafraîchi, parking privatif, local à vélo et douches.
Le quartier SAINT-SERGE, en plein développement tertiaire, bénéficie d'une excellente accessibilité par les transports ou réseaux haute fréquence. Sa proximité des quais ou de la station de tramway Ligne A est un atout majeur pour le relier rapidement à l'ensemble de l'agglomération angevine.
Services & prestations
Aménagements
-
Aménagement des bureaux : Aménagé non cloisonné
-
Sanitaires : Parties communes
Equipements
-
Faux plafond : Pavés LED
-
Sol bureaux : Moquette
Prestations de service
-
Sécurité
Type / Etat du bâtiment
-
Etat de l'immeuble : Neuf
-
Etat des locaux : Neuf


