




180 Rue Joseph-Louis Lagrange
59300 Famars
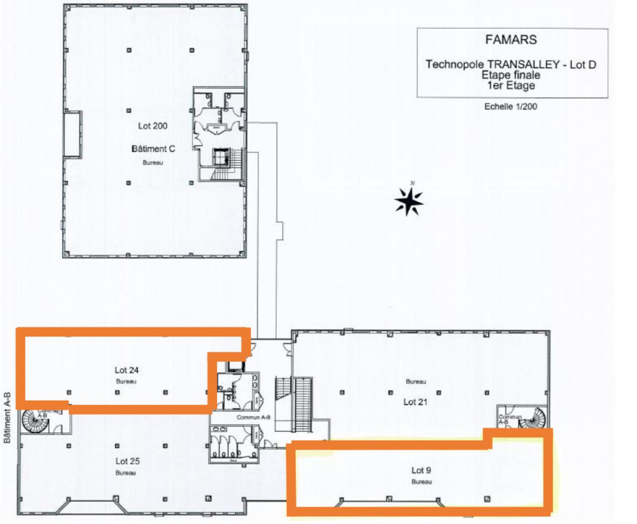
772 m²
Divisible dès 139 m²
130 €
HT/HC/m²/an
Disponibilité : Immédiate

Annabelle KOZIELSKI
Description
Bureaux à louer à Famars
Situé au cœur du Technopole International dans la commune de Famars dans les Hauts De France, Transalley est un lieu stratégique de 34 hectares où nous retrouvons une multitude d’entreprises issues du monde de la recherche et du développement.
Nous vous proposons à la location des espaces de bureaux cloisonnés et câblés divisible à partir de 139 m².
TRANSALLEY, un écosystème pour le développement des mobilités.
Aménagé par Valenciennes Métropole, Transalley est un parc d'activités de 34 hectares adossé au campus universitaire du Mont-Houy de l'Université Polytechnique Hauts-de-France.
Ce technopôle à vocation scientifique et technologique favorise les synergies en réunissant en un même lieu :
des activités d'enseignement supérieur, spécialisé dans les mobilités et transports,
des activités de recherche et d'innovation, avec des laboratoires publics et privés, pour de la recherche fondamentale et appliquée,
des entreprises innovantes (start-up, PME, grands groupes),
les opérateurs et partenaires du Technopôle Transalley : Pôle de Compétitivité i-Trans, AIF Hauts-de-France (Association des Industries Ferroviaires), ARIA Hauts-de-France (Association Régionale de l'Industrie Automobile), IRT Railenium, l'Association Technopôle du Valenciennois, la SPL Transalley.
Près de 70 entités ont aujourd'hui fait le choix de s'implanter à Transalley : plus de 40 entreprises, 6 laboratoires, 10 associations/institutions et une dizaine de projets en incubation.
Une accessiblité premium :
Tram T1 arrêt « Université » à 350m à pied soit 5 minutes
D958 à 3km en voiture soit 5 minutes
Valenciennes gare : 6km en voiture soit 12 minutes
Autoroute A2 : 10km en voiture soit 11 minutes
Toutes nos offres de bureaux sur https://www.bnppre.fr/bureau/nord-59/
Services & prestations
Prestations de service
-
Parking
Type / Etat du bâtiment
-
Etat des locaux : Très bon état








