




9 Rue du Maréchal Juin
59400 Cambrai
449 m²
400 000 €
HT/HD
Disponibilité : Immédiate

Annabelle KOZIELSKI
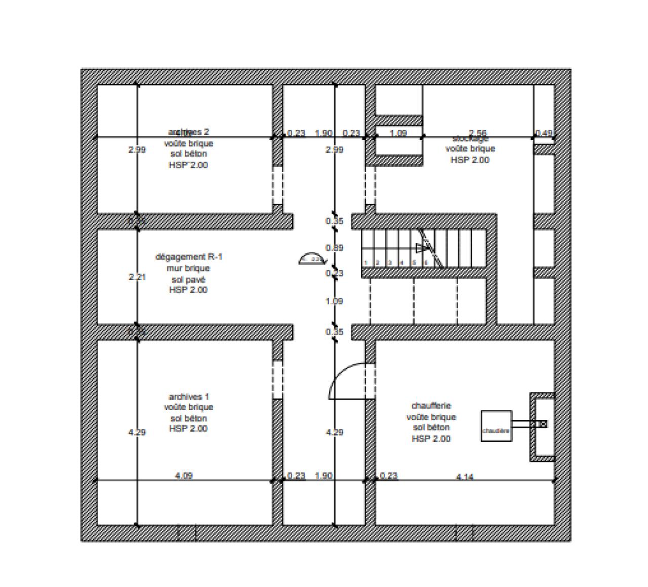
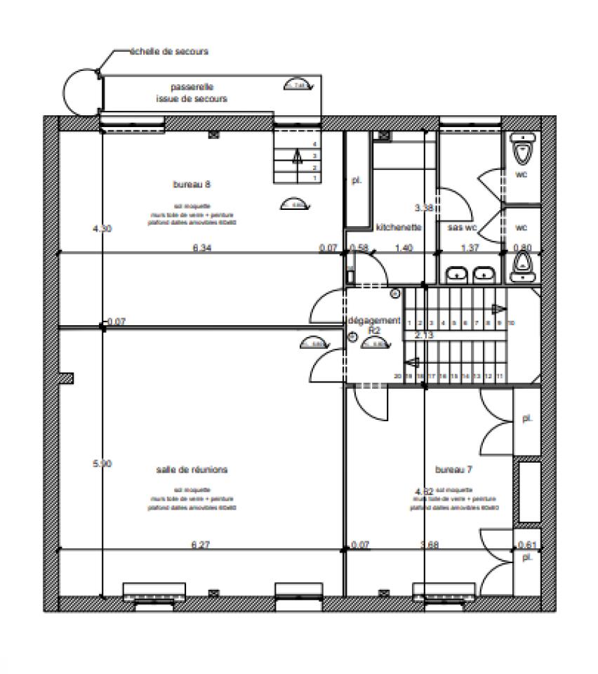
Description
Surfaces de bureaux à la vente - Cambrai - au pied de la gare
BNP Paribas Real Estate vous propose à la vente, ces surfaces de bureaux dans un charmant immeuble à Cambrai centre.
Découvrez cet hôtel particulier au pied de la gare de Cambrai.
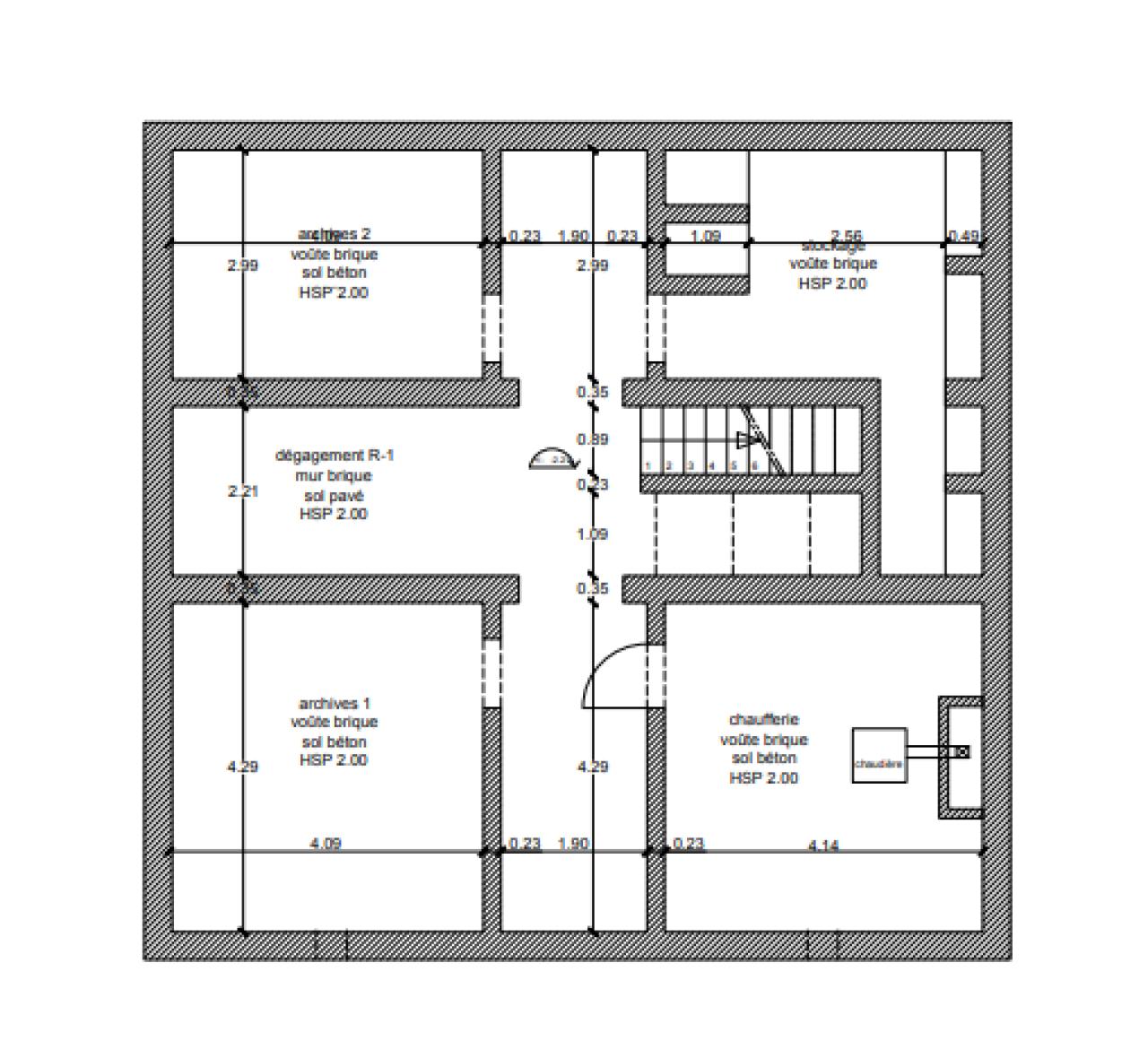
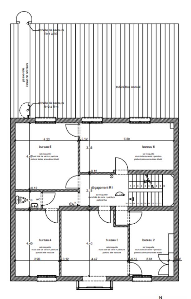
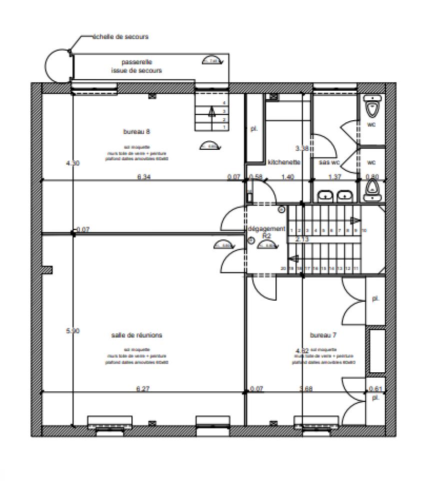
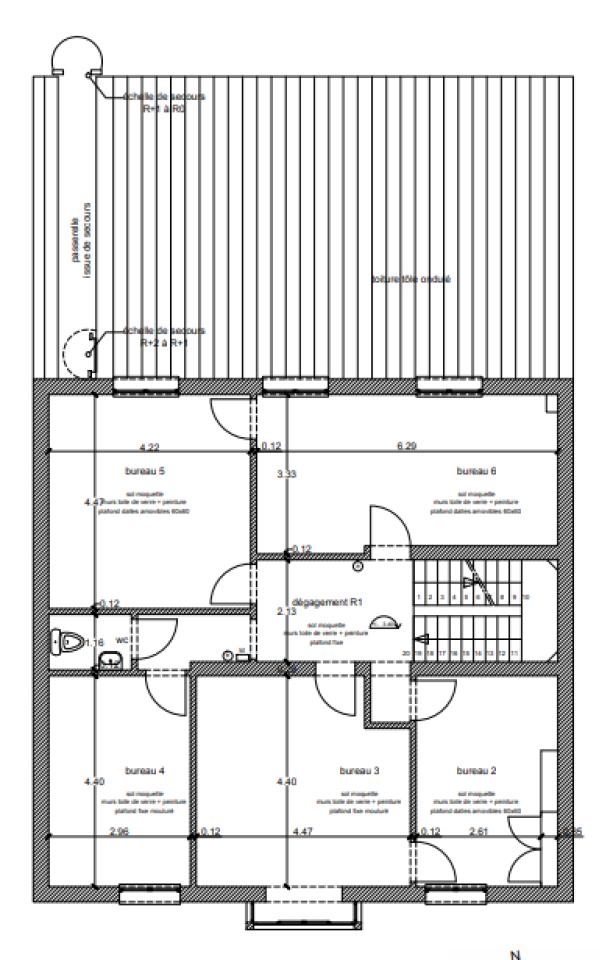
Ce bien vous propose de belles surfaces de bureaux sur 3 étages, un sous-sol spacieux ainsi qu'une agréable terrasse. De nombreux services de restauration sont proposés à proximité.
Accessibilité :
Gare de Cambrai à 100m
Arrêt de bus Cambrai Alsace Lorraine à 200m








