




ART CITY
125 Rue d'Athènes
59000 Lille
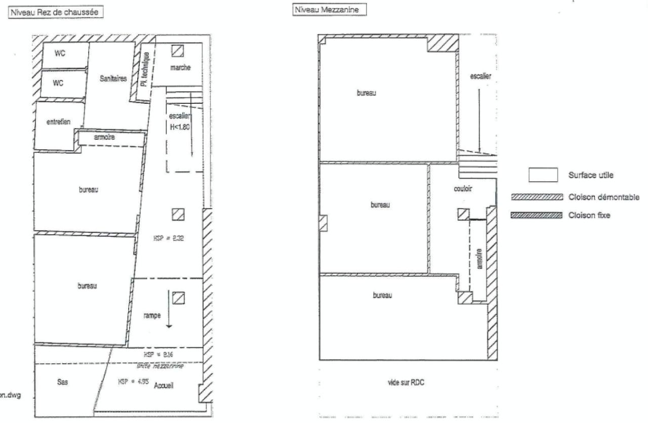
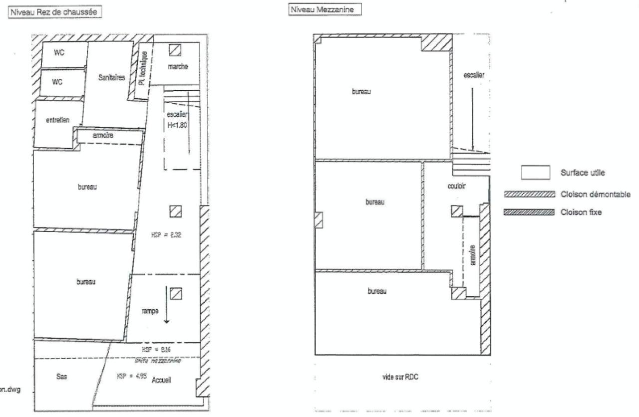
129 m²
190 €
HT/HC/m²/an
Disponibilité : 01/07/2026

Etienne DARTOIS
Description
ART CITY - bureaux à louer à Lille.
Cet immeuble de bureaux offre une visibilité remarquable au cœur d'Euralille, près des deux gares et de leur hub de transports.
Son emplacement privilégié lui confère un effet d'enseigne exceptionnel.
De plus, il est directement connecté aux services et parkings d'Euralille, ce qui facilite l'accès et le stationnement pour vos collaborateurs et visiteurs
Il est desservi par de nombreux moyens de transports (bus, gare TER, TGV) et à proximité de nombreux restaurants et services (Centre commercial Eurallile)
Accessibilité :
TGV « Lille Europe » à 160m
Gare « Lille Flandres » à 610 m
Station tramway « Lille Europe " (Vers Gare Lille Flandres ou Eurotéléport)
Station métro « Lille Europe » (M2)
Accès routiers à proximité immédiate (VRU, A1, A22, A23, A25, A27)
Arrêt de bus « Lille Europe » - (Lignes : L5, L90, L91, L91E, 16, 50, 86, 88)
Aéroport « Lille-Lesquin » à 8,8 kms
Prestations :
Entrée indépendante
Effet d'enseigne
Climatisation réversible
Ensemble immobilier réparti sur 2 niveaux (RDC et R+1)
Aménagement : accueil, bureaux, salle de réunion, open-space
Disponibilité : 01/01/2026
Toutes nos offres de bureaux sur https://www.bnppre.fr/bureau/nord-59/










