




Location Bureau 510 m²
59000 Lille
510 m²
155 €
HT/HC/m²/an
Disponibilité : Immédiate

Etienne DARTOIS
Description
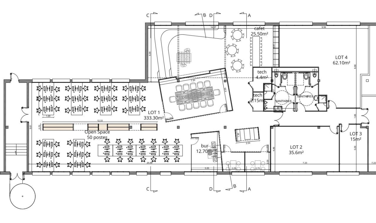
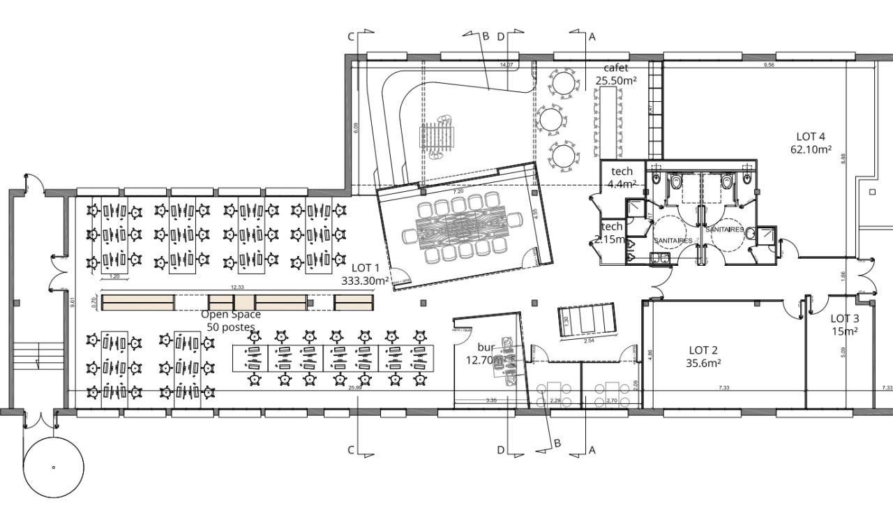
A louer - Espace de bureaux de 510 m² au cœur du Parc EURATECHNOLOGIE.
BNP PARIBAS REAL ESTATE vous propose à la location une surface de 510 m² de bureaux, située au 1er étage d'un immeuble avec terrasse privative de 100 m². Cet espace offre un cadre idéal pour développer son activité dans un environnement innovant.
Venez découvrir cette opportunité au coeur coeur de l'écosystème d'Euratechnologies de Lille.
Pôle d'excellence de la filière numérique de la Métropole Lilloise, le parc Euratechnologie constitue une référence tertiaire incontournable.
Idéalement positionné, en bordure du canal de la Deûle, à quelques minutes du centre ville de Lille, aux pieds des axes de la métropole, le Parc Euratechnologie a su se doter également de nombreux services et équipements.
Il est en effet possible d'y travailler, de s'y loger et de s'y restaurer.
Prestations :
- Plateau aménagé : open space, salle de réunion, espace cuisine, bureaux, etc
- Terrasse privative de 100 m²
- Entrée indépendante
- Interphone
- Climatisation réversible
- Dalle moquette/sol pvc
- Plafond apparent
Accessibilité :
- Les gares TER et TGV de Lille à quelques minutes en métro
- Les accès routiers et autoroutiers de la métropole à proximité
- Proches des stations de métro, V'Lille et arrêts de bus
- L'aéroport de « Lille-Lesquin » à 18 min en voiture
Disponbilité : Immédiate
Services & prestations
Equipements
-
Climatisation : Réversible
-
Sol bureaux : Dalle moquette/sol pvc










