




82 Rue Winston Churchill
59160 Lille
445 m²
Divisible dès 221 m²
à partir de 573 560 €
HT/HD
Disponibilité : Immédiate

Etienne DARTOIS
Description
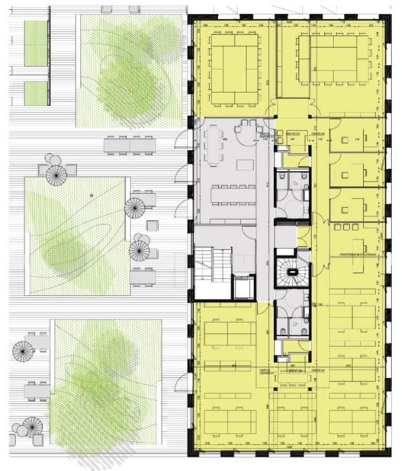
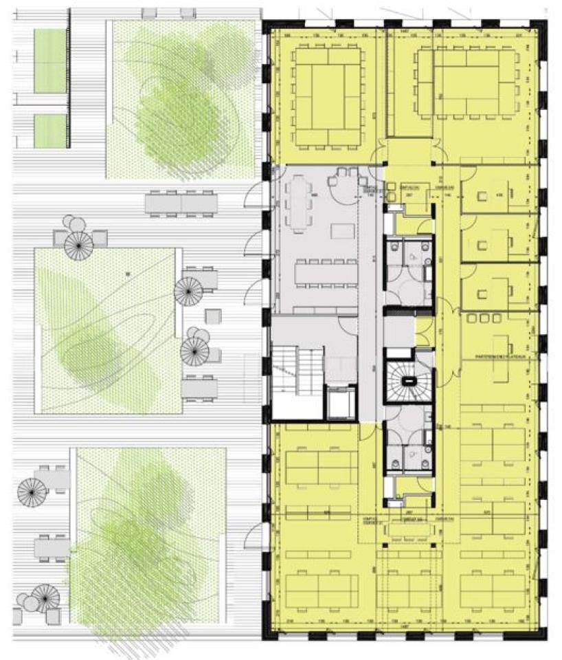
Vente de bureaux à Lille Euratechnologies - Espaces modernes au cœur du parc Euratechnologies, pôle d'excellence de la Métropole Lilloise
Pôle d'excellence de la filière numérique de la Métropole Lilloise, le parc Euratechnologies constitue une référence tertiaire incontournable.
Idéalement positionné, en bordure du canal de la Deûle, à quelques minutes du centre ville de Lille, aux pieds des axes majeurs de la métropole, le parc Euratechnologies a su se doter également de nombreux services et équipements. Il est en effet possible d'y travailler, de s'y loger et de s'y restaurer.
Nous vous proposons à la vente des bureaux situé sur un Pôle d'excellence de la filière numérique de la métropole Lilloise, le parc Euratechnologies constitue une référence tertiaire incontournable.
Ces immeubles de bureaux sont inscrits au sein d'un ensemble immobilier comprenant trois immeubles de bureaux bénéficiant d'un généreux jardin privatif au coeur des bâtiments.
Accessibilité :
Gare « Lille Flandres » à 14 min en métro (11 stations)
Gare TGV « Lille Europe » à 15 min en métro (12 stations)
Station métro « Canteleu » à 10 min à pied
Accès routiers et autoroutiers à proximité immédiate (VRU, A1, A22, A23, A25, A27)
Arrêt de bus « Euratechnologies » à 2 min à pied (Lignes : 18, 76 et 88)
Station V'Lille « Euratechnologies » à 4 min à pied
Aéroport « Lille-Lesquin » à 18 min en voiture
Prestations :
Accès sécurisé avec visiophone
Ascenseur
Accès PMR
Vitrage toute hauteur optimisant la luminosité des plateaux
Plancher technique
Labellisation énergétique Breeam Very Good
Création d'une terrase partagé au coeur du projet implanté sur le socle commun des 3 immeubles
Disponibilité : Immédiate
Toutes nos offres de bureaux à vendre sur https://www.bnppre.fr/a-vendre/bureau/nord-59/lille-59000/
Services & prestations
Aménagements
-
Hall d'accueil : Soigné avec services aux occupants (mur digitalisé, conciergerie…)
Equipements
-
Faux plancher : Technique
-
Fenêtres : Vitrage toute hauteur optimisant la luminosité
-
Plinthes techniques périphériques
Prestations de service
-
Cafétéria
-
Conciergerie
-
Restauration : (Le Switch, Class Croute, Envie de Saison, So Good…)
Normes, Certifications et Labels
-
Certification : BREEAM
Type / Etat du bâtiment
-
Etat des locaux : Neuf
Informations complémentaires
-
Vitrage toute hauteur










