



25 Rue Corneille
59100 Roubaix
1 115 m²
Divisible dès 194 m²
110 €
HT/HC/m²/an
Disponibilité : Immédiate

Annabelle KOZIELSKI
Description
Situé au cœur de Roubaix, l'Immeuble Le Jacquard, offre un cadre professionnel idéal pour toutes entreprises. Cet immeuble de bureaux disponible à la location bénéficie d'une localisation stratégique, à proximité des commodités et des axes routiers (A22), facilitant ainsi l'accès pour les collaborateurs et les clients.
Implantée sur une ancienne usine industrielle à l’architecture exceptionnelle sur 5 hectares, la Plaine Image est un site d'excellence économique consacré à l'image et aux industries créatives.
Cet écosystème complet rassemble 140 entreprises, 1 800 actifs, 3 écoles internationales (ArtFX, Pôle 3D et le Fresnoy), un incubateur, un accélérateur, des studios de tournage et de son, un laboratoire de playtest…
La force de ce hug européen ? Créer des synergies et favoriser le développement des entreprises.
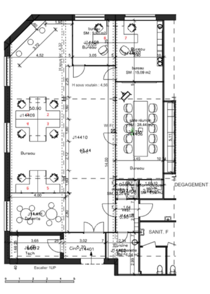
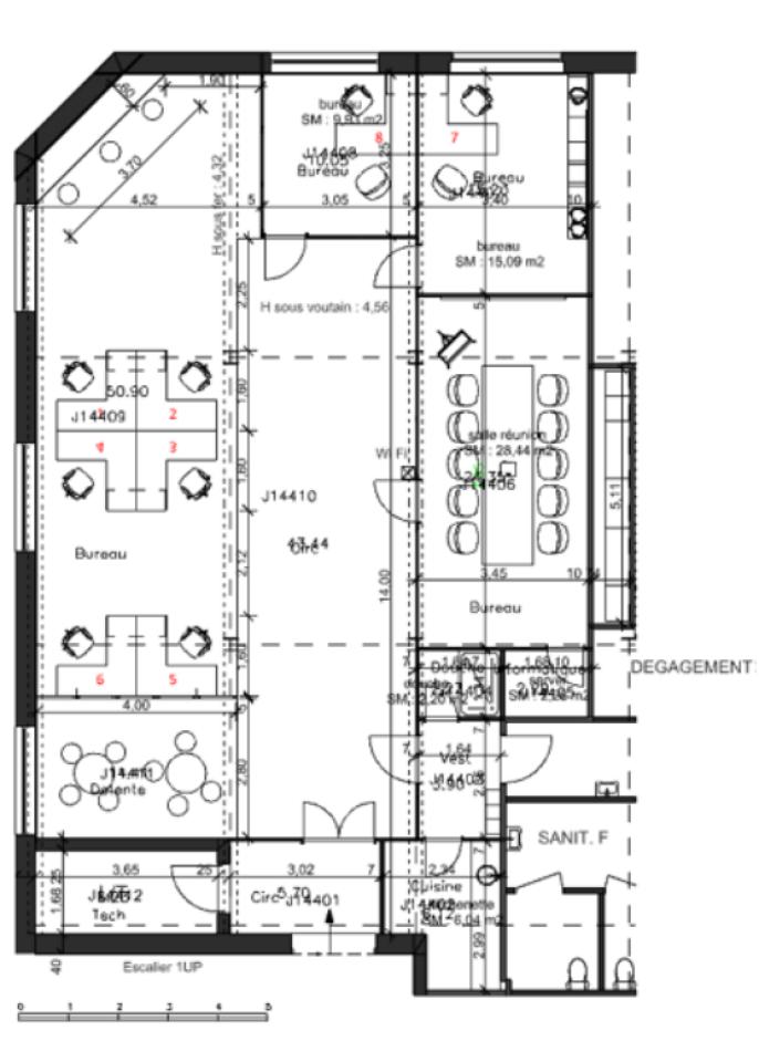
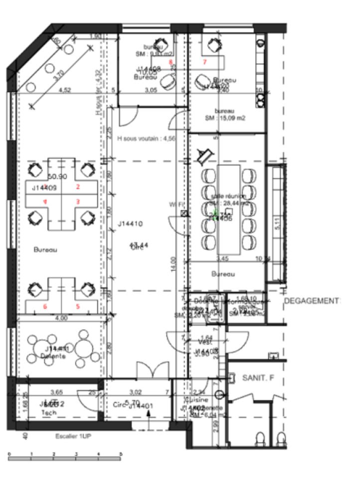
Au sein du pôle d'excellence de la Plaine Image à Roubaix, nous vous proposons, à la location un très beau plateau de bureaux en R+1 de type « loft » divisible dès 194 m².
L'Immeuble Le Jacquard, offre un cadre professionnel idéal pour toutes entreprises.
Cet immeuble de bureaux bénéficie d'une localisation stratégique, à proximité des commodités et des axes routiers (A22), facilitant ainsi l'accès pour les collaborateurs et les clients.
Accessibilité :
Gare « Lille Flandres » à 23 min en métro (17 stations)
TGV « Lille Europe » à 22 min en métro (16 stations)
Stations « Alsace » à 150 mètres / 2 min à pied)
Gare de Roubaix à 900 m / 12 min à pied
Accès routiers et autoroutiers rapides (VRU, A1, A22, A23, A25, A27)
Prestations :
Plafond brut
Éclairage suspendu
Climatisation
Courant fort et faible en périphérie
Cloisonnement vitré
Kitchenette
Interphone
Blocs sanitaires privatifs
Disponibilité : Immédiate
Toutes nos offres sur https://www.bnppre.fr/bureau/nord-59/
Services & prestations
Aménagements
-
Aménagement des bureaux : Cloisonnement vitré
-
Sanitaires : Privatif(s)
Equipements
-
Ascenseurs
-
Faux plafond : Plafond brut
-
Plinthes techniques périphériques : Courant fort/faible
-
Sol bureaux : Béton lissé
-
Type de chauffage : Urbain
Type / Etat du bâtiment
-
Etat de l'immeuble : Etat d'usage
-
Etat des locaux : Etat d'usage, Etat d'usage
Informations complémentaires
-
Kitchenette, Menuiseries aluminium










