




2/4 Rue Duflot
59100 Roubaix
1 549 m²
Divisible dès 250 m²
120 €
HT/HC/m²/an
Disponibilité : Immédiate

Etienne DARTOIS
Description
Location bureaux à Roubaix - à proximité immédiate de Lille et des transports (métro, gares, bus, axes autoroutiers)
Offrez à vos équipes un cadre de travail moderne, accessible et performant, au cœur de Roubaix. Cet immeuble de Bureaux vous propose des espaces aménagés et pensés pour le bien-être des collaborateurs, dans un environnement dynamique et en pleine mutation.
Accessibilité :
Gare « Lille Flandres » à 23 min en métro (17 stations)
TGV « Lille Europe » à 22 min en métro (16 stations)
Station de métro « Alsace » à 1 100 m / 15 min à pied
Gare Jean Lebas à 1 200 m / 16 min à pied
Arrêt de bus Guinguette (L4) en pied d'immeuble
Accès routiers et autoroutiers rapides (VRU, A1, A22, A23, A25, A27)
Prestations :
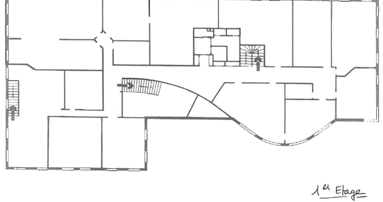
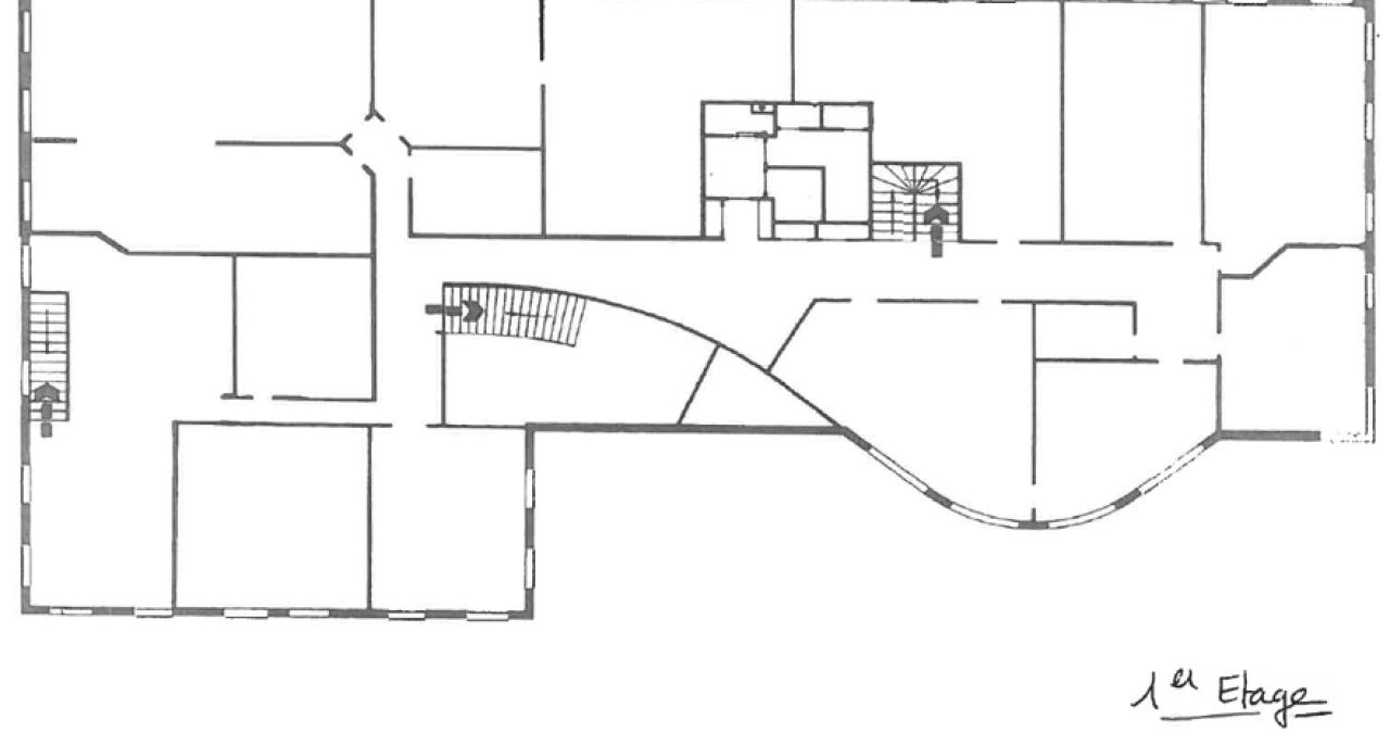
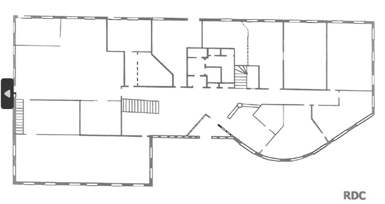
Locaux aménagés : accueil, open-space, bureaux, espace cuisine/salle de pause, salle de réunion, salle blanche, etc
Faux plafond
Luminaires LED
Climatisation réversible
Sol PVC
Terrasse extérieure
Disponibilité : Immédiate
Toutes nos offres de bureaux sur https://www.bnppre.fr/bureau/nord-59/
Services & prestations
Equipements
-
Climatisation : Réversible
-
Faux plafond : Oui avec luminaires LED encastrés
-
Sol bureaux : Carrelage et PVC










