




Location Bureau 3 202 m²
69570 Dardilly
3 202 m²
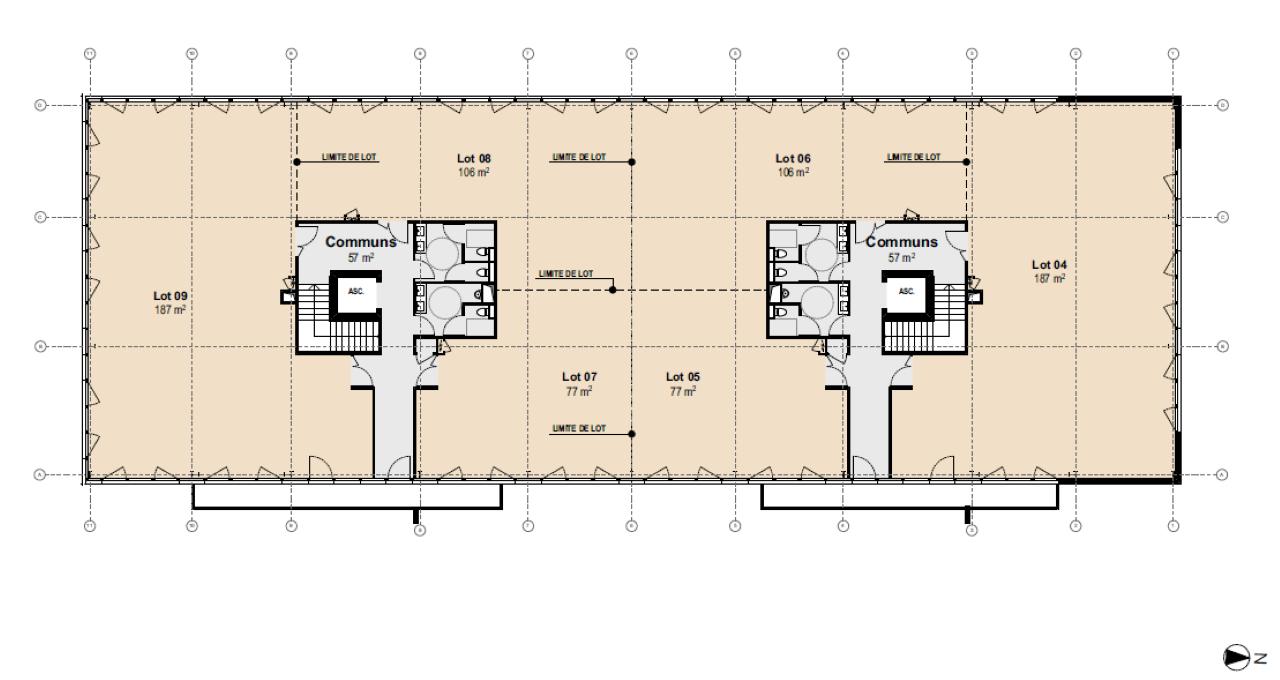
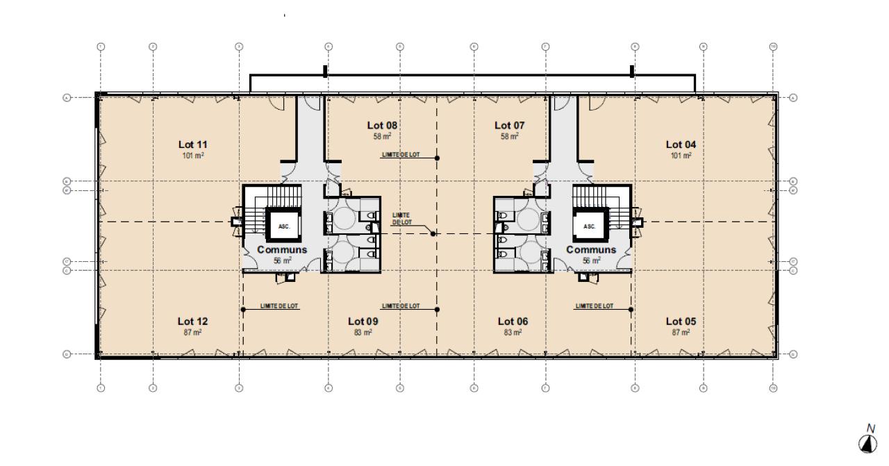
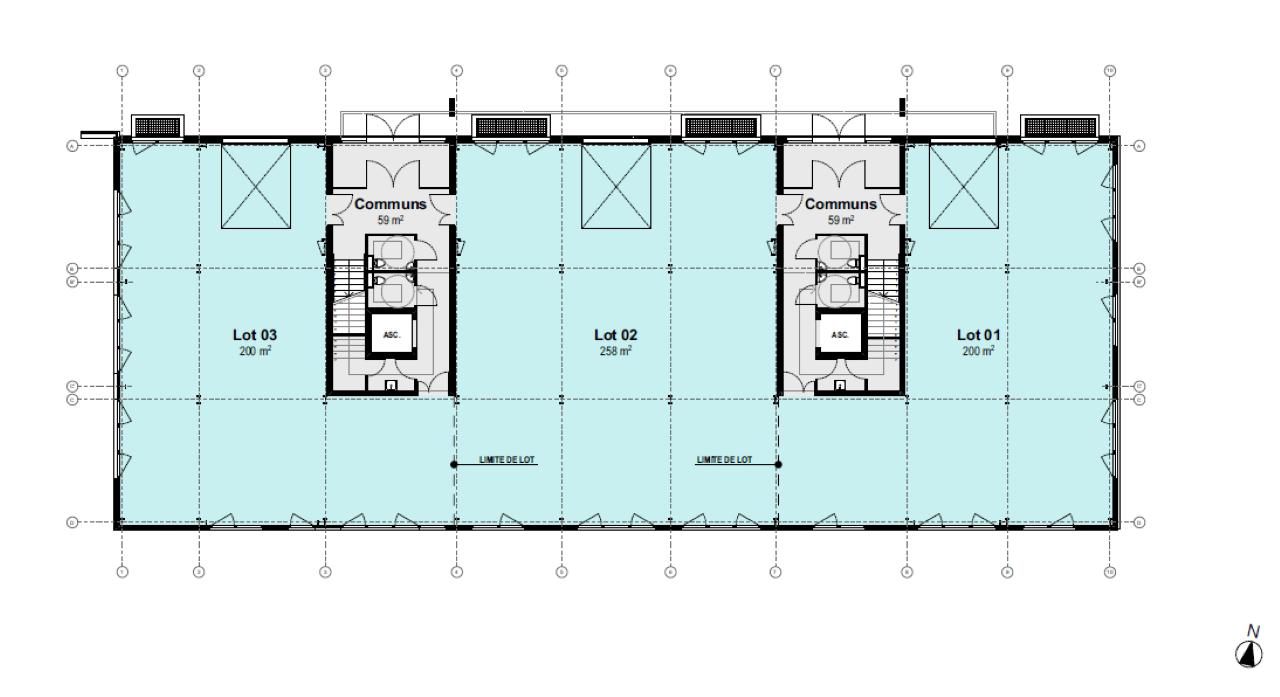
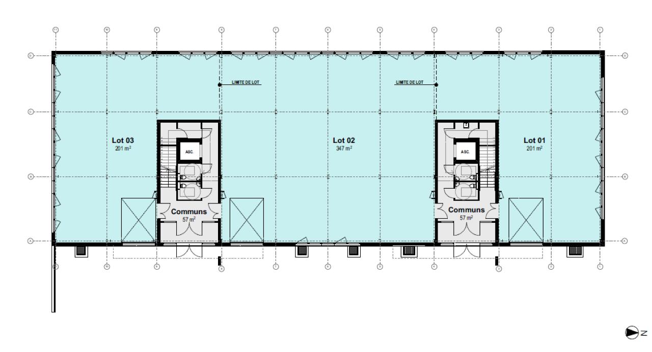
Divisible dès 69 m²
à partir de 159 €
HT/HC/m²/an
Disponibilité : Immédiate

Stephan POULAT
Description
VEELAGE DE DARDILLY
Situé au coeur de la Techlid et au pied de la gare TER du Jubin, parc d'affaires de 14 bâtiments à construire. Les bâtiments en R+1 peuvent accueillir en RDC des espaces mixtes d'activité ou bureaux. Les bâtiments sont neufs avec des façades beton lasuré, les plateaux sont livrés en open space.
Situé à 15 kilomètres au nord-ouest du centre de Lyon, le Pôle Economique Ouest du Grand Lyon constitue le second pôle tertiaire de l’agglomération lyonnaise.
Un territoire animé et actif avec 40 000 salariés et environ 7 000 entreprises implantées.
De nombreuses sociétés sont implantées sur TECHLID comme LDLC.com, Sopra, Acoem, DimoGestion, Véritas, Crédit agricole Centre-Est, Algoë, Archigroup, Tenesol,Vibratec, OPI, Boldoduc, Sanofi, Mixel, SEB, Materne, BrakeFrance…
La TECHLID est un vivier de compétences au carrefour de trois pôles forts : enseignement, recherche et innovation.
Richesse et qualité des établissements d’enseignement
Pôle technique et scientifique (École Centrale de Lyon, École Nationale Vétérinaire, CTTN-IREN…) et d’un pôle management (EM Lyon, ARDEMI, CESI…).
Parc de bureaux
Un marché de bureaux actif et attractif
Un parc d’immobilier d’entreprise supérieur à 1 150 000 m², dont près de la moitié en bureaux. (43.6%)
Services & prestations
Aménagements
-
Accès Pers. Mobilité Réduite
Equipements
-
Ascenseurs : 1
-
Charge au sol Rdc : 2,00 tonne(s)/m²
-
Climatisation : Réversible
-
Eclairage Bureaux : Luminaires encastrés
-
Faux plafond : Dal. fibres minéral.
-
Fenêtres : Double vitrage
-
Sols du bâtiment : Béton dalle quartzée
Hauteurs
-
Hauteur libre : 4,30 mètre(s) (rdc)
Structure du bâtiment
-
Charpente : Métallique
-
Murs : Béton isolé
Type / Etat du bâtiment
-
Etat de l'immeuble : Neuf
-
Etat des locaux : Neuf










