




Vente Bureau 235 m²
69570 Dardilly
235 m²
517 000 €
HT/HD
Disponibilité : Immédiate

Ludovic NE
Description
INNOVALIA - Bâtiment E
DARDILLY
Au cours de la TECHLID, dans l’ensemble immobilier INNOVALIA à DARDILLY
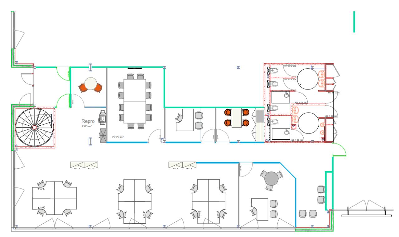
Dans un immeuble bien entretenue et des parties communes de qualité venez découvrir un plateau de bureau de 235 m² incluant la quote-part de partie commune entièrement cloisonnés et prêt à l’emploi ( salle de réunion, cuisine, open space, bureaux individuel…. ) câblage informatique et 10 parkings.
Offre rare à vendre sur Dardilly.
Services & prestations
Aménagements
-
Aménagement des bureaux : Cloisonnés
-
Sanitaires : Parties communes
Equipements
-
Ascenseurs : Bâtiment C/D/F/E
-
Climatisation : Air rafraîchi ventilo convecteurs/ réversible
-
Câblage informatique
-
Eclairage Bureaux : Luminaires encastrés
-
Faux plafond : Dal. fibres minéral.
-
Plinthes techniques périphériques
-
Sol bureaux : Moquette
-
Source chauffage : Electrique
-
Type de chauffage : Collectif
Prestations de service
-
Sécurité : Contrôle d'accès + barrière extérieure
Type / Etat du bâtiment
-
Etat de l'immeuble : Etat d'usage
-
Etat des locaux : Etat d'usage
Informations complémentaires
-
Immeuble situé au coeur du parc tertiaire INNOVALIA










