




14-18 Chemin du Tronchon
69570 Dardilly
752 m²
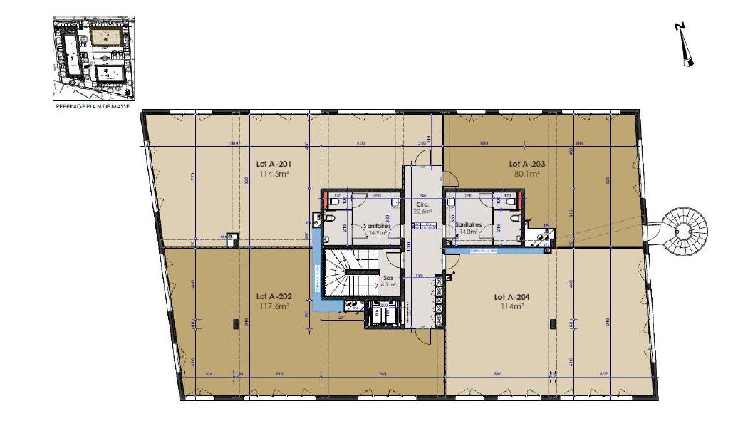
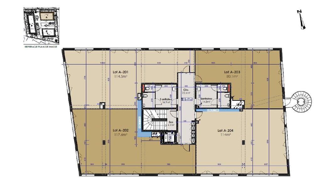
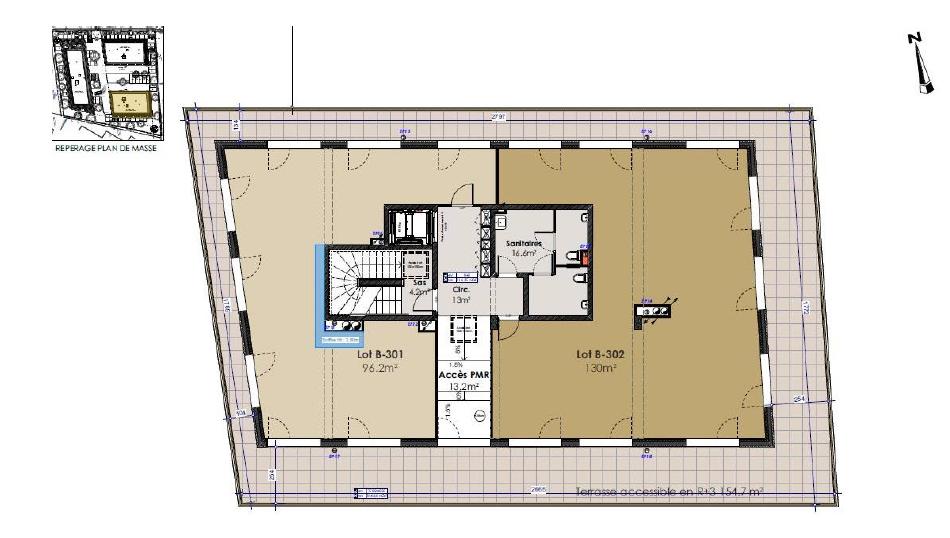
Divisible dès 112 m²
à partir de 165 €
HT/HC/m²/an
Disponibilité : Immédiate

Odine KLEIN
Description
@WORK - TECHLID
DARDILLY
BNP Paribas Real Estate vous propose à la location plusieurs lots de bureaux de petites surfaces situés au cœur de la Techlid, principal pôle économique de l’Ouest lyonnais. Ces espaces fonctionnels et modulables, implantés dans un environnement verdoyant et calme, sont parfaitement adaptés aux TPE, PME, start-ups et professions libérales souhaitant bénéficier d’un cadre de travail professionnel et accessible.
Les bureaux offrent de bonnes prestations : luminosité, flexibilité d'aménagement, terrasses et stationnement disponible sur site pour les occupants et visiteurs.
Le site bénéficie d'une accessibilité optimale :
- Proximité immédiate de l'A6 et de l'A89
- À seulement 15 minutes du centre de Lyon
- Bonne desserte par les transports en commun du réseau TCL
Situé au sein du secteur Techlid, le site profite d'un environnement économique dynamique regroupant de nombreuses entreprises innovantes, ainsi que d'un large choix de commerces, restaurants et services à proximité.
En choisissant 18 chemin du Tronchon à Dardilly, vos équipes s'installent dans un secteur stratégique, reconnu pour sa qualité de vie et son attractivité professionnelle.
Disponibilités et conditions locatives sur demande auprès de BNP Paribas Real Estate
Services & prestations
Aménagements
-
Sanitaires : Parties communes
Equipements
-
Ascenseurs
-
Climatisation : Air rafraîchi
-
Câblage informatique : Fibre optique
-
Faux plafond : Dal. fibres minéral.
-
Fenêtres : Stores extérieurs motorisés
-
Plinthes techniques périphériques
-
Sol bureaux : Moquette
-
Type de chauffage : Collectif Chauffage /Climatisation réversible par pompe à chaleur
Normes, Certifications et Labels
-
Catégorie ERP : 5
-
Certification : BREEAM
Type / Etat du bâtiment
-
Etat de l'immeuble : Neuf
-
Etat des locaux : Neuf
Informations complémentaires
-
Ventilation double flux
-
Ventilation double flux
-
Grande Terrasse sur le bâtiment B










