




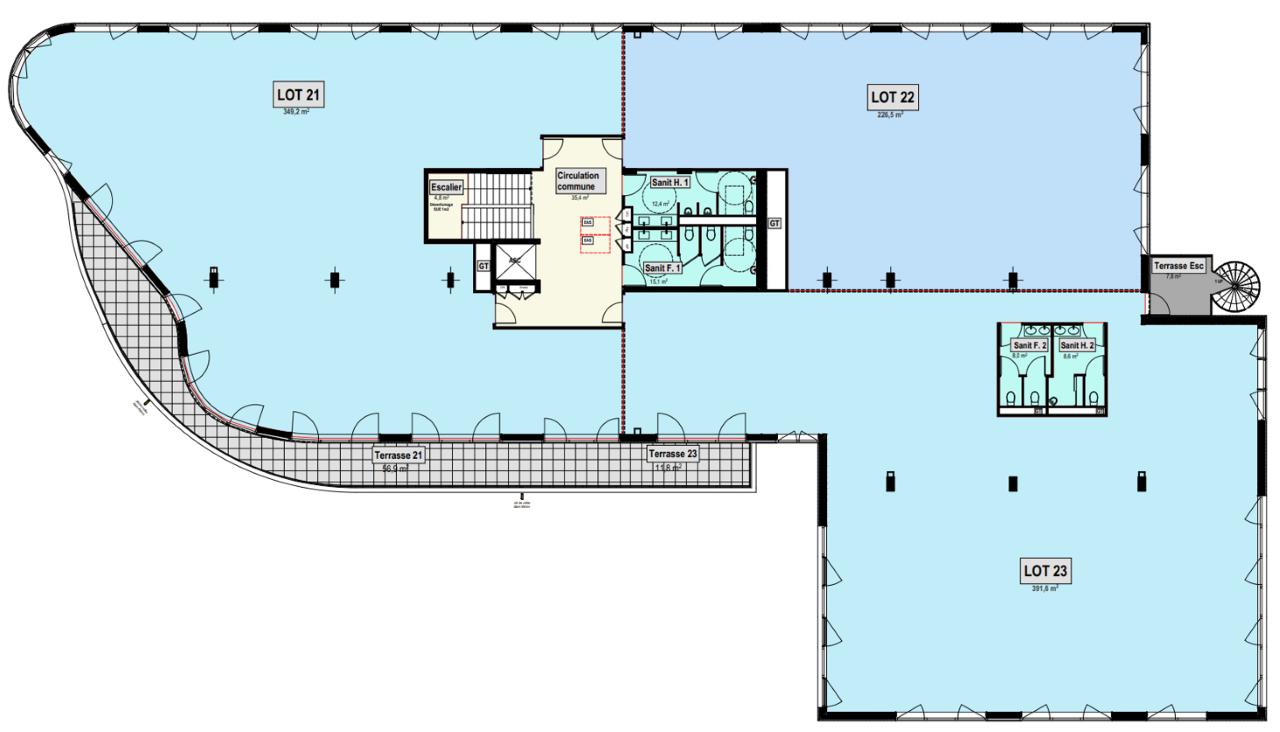
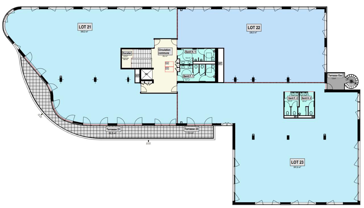
Vente Bureau 1 843 m²
69570 Dardilly
1 843 m²
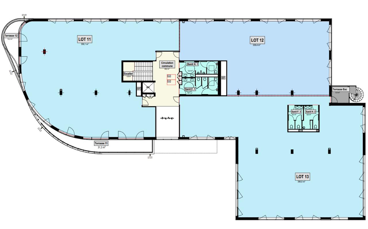
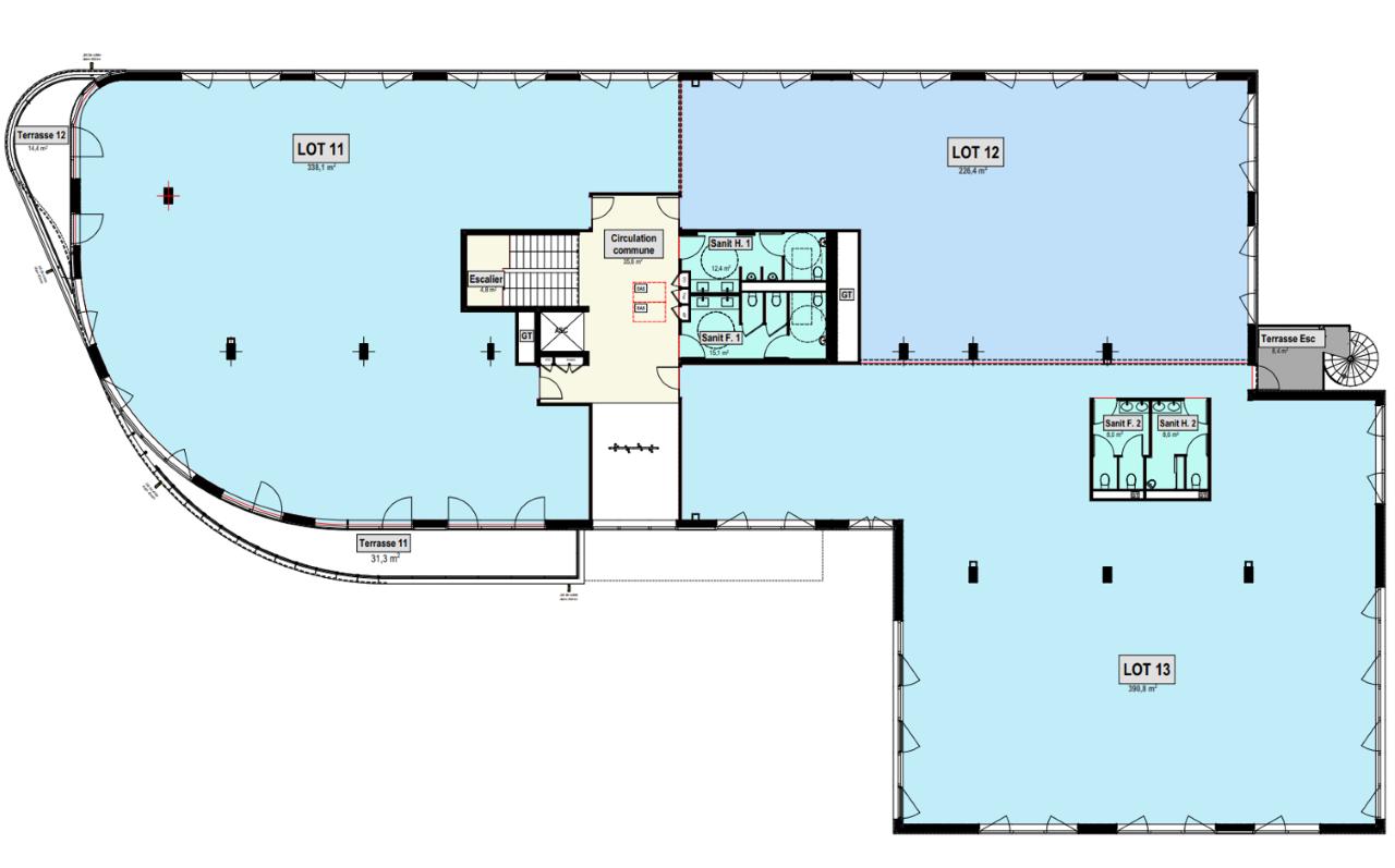
Divisible dès 246 m²
à partir de 701 100 €
HT/HD
Disponibilité : Immédiate

Ludovic NE
Description
SPARK
Dardilly
Au cœur de la TECHLID, pôle économique du Nord-Ouest de Lyon un immeuble neuf indépendant de qualité qui sera livré en T1 2025.
LAMOTTE PROMOTION et ARCHI GROUPE propose une offre de qualité qui sera disponible à la location et à la vente avec de nombreux parkings et terrasses.
Une offre rare à découvrir rapidement.
Le pôle économique ouest de la métropole lyonnaise comprend 14 communes: Champagne-au-Mont-d'Or, Charbonnières-les-Bains, Craponne, Dardilly, Ecully, Francheville, Marcy-l'Etoile, La Tour de Salvagny, Limonest, Lissieu, Saint- Cyr-au-Mont-d'Or, Saint-Didier-au-Mont-d'Or, Saint-Genis-les-Ollières, Tassin-la-Demi-Lune. L’ensemble de ces communes comptent près de 120 000 habitants.
Proche des Monts d'Or et des Monts du Lyonnais, ce territoire offre un cadre de vie et de travail de qualité, tout en étant au cœur d'une infrastructure de transport performante. Le secteur est parfaitement desservi par les grands axes de communication tels que la nouvelle route Métropolitaine M6, la liaison A89-M6, la rocade nord et les routes RD 306 et 307. Les transports en commun vous permettent également de rejoindre différents pôles d'activités via de nombreuses lignes de bus, notamment depuis la station de métro Gare de Vaise.
A forte domination tertiaire, la structure économique de Techlid se distingue par une variété de tailles d’entreprises et de secteurs d'activité. Des groupes leaders sur le marché, des start-up à la croissance exponentielle, de jeunes pépites en devenir, des entreprises traditionnelles au savoir-faire reconnu ... trouvent un terreau fertile pour leur développement et décident de se développer dans cette région. Environ 12 000 sociétés comptant 64 000 emplois sont implantées sur Techlid, dont notamment le Groupe SEB, Blédina, Materne, LDLC, Sève, Manitowoc, Bureau Veritas, Crédit Agricole….
Parmi les domaines d’activité les plus dynamiques, on trouve :
- l’informatique et le numérique avec la présence de Visiativ, Sopra Steria, LDLC, Dimo Software, ADP, Sword, DC For Data, Carl Software, NC2…
- l’ingénierie et les bureaux d’études avec la présence de Bureau Veritas, Apave, Okeenea, Adetel, BVQI, Sun Power, Acoem, Archigroup, Groupe Zebra, I-Ten, Piman, Algoé consultants, Byblos…
- l’alimentaire avec la présence de Blédina, Materne, Brake, Nutrisens, Sève et son Musée du Chocolat « le Musco », Mille et Un Repas, Duvel, Karen Chocolat, Wanimo…
- les biotechnologies, la chimie et les produits médicaux avec la présence de Sanofi Pasteur, bioMérieux, Belchim, Magnisense, Charles River, Antagène, Spineway, Arthrex, Thermo-Fisher, Cair LGL, GM Cosmetics…
- les machines, équipements et biens de consommation avec la présence de Mixel, Dinak, Barrière Automatique, VDI Group, Cup Services…
- le BTP avec la présence de Manitowoc, Neolife, Porcelanosa, Spie,…
De nombreuses entreprises évoluant dans des horizons différents créent également cette ressource vivante: TFMO, Boldoduc, Huttopia, Tesla, Emalec, Amoena, Monabee, Agripousse, Baguette Academy, Tilkee, in2Bones ... Et aussi les grands comptes: Sanofi, Biomérieux, Groupe SEB, le siège du Crédit Agricole, les start-ups, les pépites et de nombreuses petites entreprises.
Les entreprises de ce secteur privilégient également les établissements d’enseignement supérieur, les organisations scientifiques et techniques et les instituts de recherche. Ces structures peuvent les accompagner dans des projets innovants et constituer un vivier de talents pour leur recrutement. L'école centrale de Lyon, le Centre des hautes études industrielles, l'Institut technique et chimique, l'ISO Osteo School of Osteopathy, l'Institut Paul Bocuse, l'Institut français du textile et de l'habillement, l'EKLYA Company School, le campus Vet'Agro Sup ... contribuent à l'influence et au dynamisme économique de le Techlid.
Le marché de l'immobilier d’entreprise est dynamique sur Techlid puisque la demande des entreprises souhaitant s’établir s’additionne aux mouvements endogènes des entreprises en croissance. Chaque année, environ 30 000 m2 de bureaux sont placés, établissant Techlid un secteur tertiaire de référence de l'agglomération lyonnaise. Si le marché des bureaux est très actif, les ressources de la construction comprennent également de nombreux secteurs d'activités pour les petites et moyennes entreprises industrielles et artisanales, ainsi que des zones commerciales offrant des services aux résidents et aux employés. Le parc immobilier s'élève à 1 200 000 m2 au total, dont 45% de bureaux, 35% de locaux d’activités et 20% de commerces.
Dans un environnement paysager et verdoyant, une attention particulière est portée à l'architecture des bâtiments pour permettre leur une bonne intégration et offrir un réel confort de travail: lignes sobres, terrasses et balcons accueillants, jardins paysagers, espaces intérieurs bénéficiant de la lumière du jour… De plus, cette l'offre qualitative est accessible à un prix moyen bien inférieur à celui de la métropole. Pour illustrer à merveille ce cadre de travail, nous pouvons parler du Parc des Puy d’Or. Situé sur la commune de Limonest, il est le dernier développement tertiaire réalisé sur Techlid. Il regroupe de nombreuses sociétés s’étant fait construire leur propre bâtiment comme, Carl Software, LDLC, Sopra, Arcoba, Le Pôle économique Ouest du Grand Lyon. Ces entreprises s’étendent sur 13 hectares de terrain.
Voici quatre bonnes raisons pour s’implanter sur l’Ouest Lyonnais :
- la qualité du secteur et de l’habitat résidentiel
- la compétitivité des entreprises et le bien-être des salariés
- la bonne desserte en infrastructures de communication (routes, rails, télécommunications)
la présence d’une main d’œuvre qualifiée, en adéquation avec les emplois proposés
Services & prestations
Aménagements
-
Accès Pers. Mobilité Réduite : Ascenseur
-
Hall d'accueil : Carrelage, mur peinture, panneaux décoratifs, miroirs
-
Sanitaires : Sol carrelé, miroirs, mur peinture et faïence
Equipements
-
Ascenseurs : 630 kg / sol carrelage / portes finition inox
-
Charge au sol Etage : 350 kg/m²
-
Climatisation : Réversible Rafraichissement 5°C par rapport à l'ext
-
Distribution chauffage : Réversible
-
Distribution climatisation : Ventilation double flux
-
Eclairage Bureaux : LED avec détection de présence
-
Fenêtres : Alu laqué vitrage isolation thermique et phonique
-
Plinthes techniques périphériques : équipées de 3 PC tous les 2,70ml
-
Revêtement mural : Toiles de verres peintes
-
Sol bureaux : Moquette en dalles
Hauteurs
-
Hauteur sous-plafond : 2,70 mètre(s)
Prestations de service
-
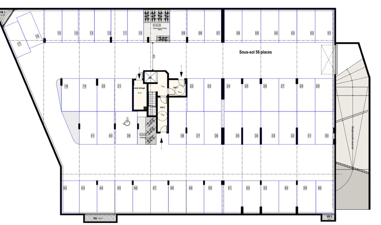
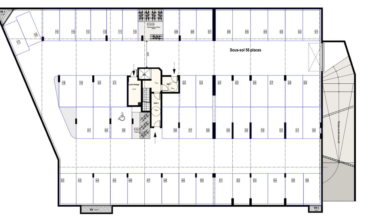
Parking : 70 Places 13 places en extérieur et 57 en sous-sol
-
Sécurité : Contrôle d'accès Interphone / vidéophone
Normes, Certifications et Labels
-
Label cible : HQE Construction TRES PERFORMANT
Type / Etat du bâtiment
-
Etat de l'immeuble : Neuf
Informations complémentaires
-
Ossature en béton armé, planchers en béton armé dalles pleines
-
Local vélos sécurisé
-
Espaces extérieurs aménagés paysagés










