




Location Bureau 506 m²
69330 Pusignan
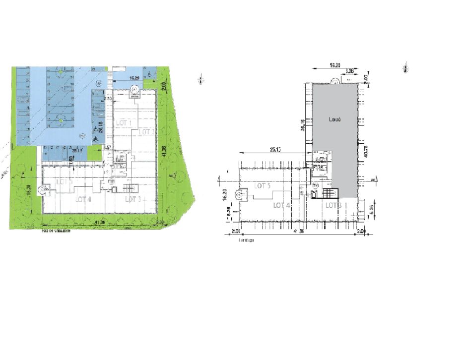
506 m²
148 €
HT/HC/m²/an
Disponibilité : Immédiate

Jeanne GREE
Description
CAP ARROW
PUSIGNAN
A proximité immédiate de l’aéroport St Exupéry et des grands axes routiers, dans un bel immeuble, ces bureaux en RDC sont très lumineux et fonctionnels. Stores électriques, cuisine aménagée et équipée, parties privées et communes en très bon état. Ces locaux, déjà cloisonnés et câblés, vous permettent un emménagement rapide. Les espaces se composent d’Open Spaces, de bureaux fermés, de salles de réunion, d’archives et d’un espace de convivialité. Les cloisons sont amovibles. Climatisation/chauffage réversible en faux-plafond. Possibilité d’acquérir le mobilier en place. Nombreux stationnements
Services & prestations
Aménagements
-
Aménagement des bureaux : Cloisonnés et câblés
-
Bureaux cloisonnés : Open space, salle de réunion, archives
-
Sanitaires : Parties communes
Equipements
-
Ascenseurs
-
Faux plafond
-
Plinthes techniques périphériques
-
Sol bureaux : Moquette et revêtement stratifié
Prestations de service
-
Parking
Normes, Certifications et Labels
-
Label actuel : RT 2012 et BBC
Type / Etat du bâtiment
-
Etat de l'immeuble : Neuf
-
Etat des locaux : Rénové
Informations complémentaires
-
Disponibilité immédiate, Stores electriques
-
Espace de convivialité avec cuisine, Locaux en bon état, entièrement aménagés










